EvenBuyer买手店,旧建筑与新时尚的相遇
本案所在的双流水泥厂位于西湖区转塘镇。上世纪70年代,这里是杭州近郊最重要的建材工业区,机械轰鸣,红火一时,直至1999年关停后沉寂。工厂废弃,而厂房建筑在时代的洪流中安然伫立,空间作为时间的见证者和记录者得以幸存。而今又二十年过去,曾经的双流水泥厂已被改造成为文创艺术园区,生产活动以崭新的方式重新延续。


▲ 厂区老照片
此次项目选址正是原双流水泥厂的熟料存放区域,四个巨大的圆筒结构一字排开构成建筑主体,内部互通相连。买手品牌EvenBuyer的全新店面在这里借建筑与设计的语言,讲述自身的风格标签与时尚态度。
建筑改造与室内设计由蒋杰室内设计工作室完成。旧建筑与新时尚的相遇为设计师带来灵感;最大程度地保留自然印记、融入当代极简的设计美学、引发跨时空的有趣对话,是设计的切入点。正如好食材往往只需采用最朴素的烹饪方式,置身沉淀着丰富内涵的建筑,恰到好处的室内设计,即可呈现美味佳肴。

▲ 轴测示意图
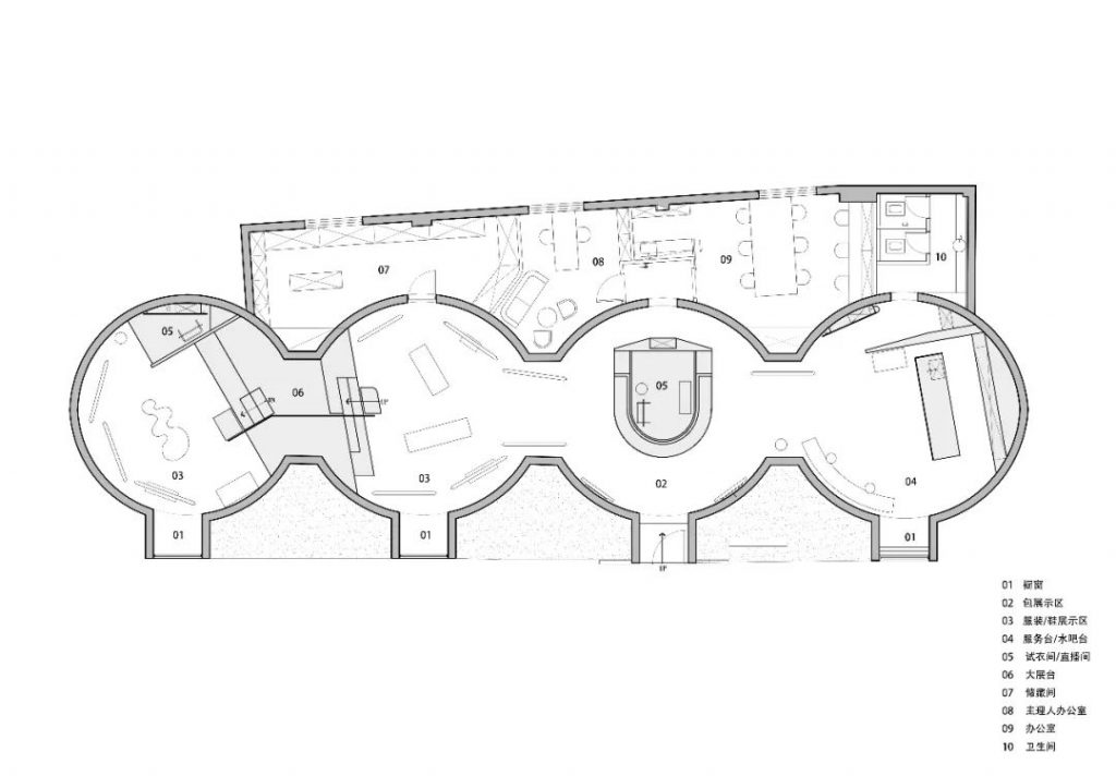
由于特殊的建筑属性,店面空间面积较大且呈长条形,而买手店的产品品类与数量繁多,设计师着力营造连贯而有韵律的空间氛围。通过在四个圆筒型空间中置入三个盒子,空间被分为三大部分。

▲ 入口
设计师利用外立面原有门洞,将其一作为商店主入口,而另外三个成为落地橱窗。门洞与建筑高层的四个小窗口相呼应,共同形成有趣的节奏感。

▲ 橱窗

▲ 飘檐
落地窗引入充分自然光,同时也用作橱窗,展示店家的当季推荐,窗贴的平面画面与产品相映成趣。统一的不锈钢波纹板飘檐与建筑原始水泥质感形成反差,首先为到达的访客带来视觉冲击,让好奇心引人进店。

▲ 入口圆弧陈列桶

▲ 包展示区
基于原建筑结构,空间布局中办公区域与店面入口平行相对。设计师在入口处置入漂浮的圆弧形层板,内部是兼顾试衣间、直播室的功能体块,材质上采用顶面发光膜及一块完整的镜面反射内部桶状空间增强纵深感,同时整个体块将办公区入口藏匿其后。



▲ 试衣间
除了用作隔挡之外,以层板为对称中轴,将进店后的动线一分为二。弧形路径也为空间带来更多生趣,并为品牌方创造了多角度展示核心产品的场景。层板的圆弧形状应空间形态而生。在完美融入的同时留有缺口,保持空间连通性,营造张弛有度、有呼吸感的空间感受。

▲ 吧台区
进店后向右是吧台区。设计师运用最简单的不锈钢方形体块将空间一分为二,隔出通往卫生间的通道。



▲ 吧台
向左是服装、鞋类陈列区,设计师在两个圆筒中间运用阶梯作为一个展台连续空间的体验感。

▲ 服装、鞋类陈列区
同样的对话方式在整个空间中延续。进入左侧服装、鞋类陈列区,空间让产品成为主角。落地式衣架配合展台用更为随意、松散的方式放置。

▲ 楼梯展台
而在左侧两个圆筒之间,一个巨大的跨越式楼梯展台完成了对空间的分割,同时又为其建立了新的联系。



▲ 展台细节
楼梯平台的高差阻隔了顾客的部分视线,激发更多的好奇心与探索欲,为距离入口最远的冷区引流。而高低错落形成的丰富视觉感受,也在长距离的动线上保证了空间的层次感与趣味性。展台加入大面积的镜子,在遮挡消防栓的同时,满足试衣需求并延续空间。

▲ 冷区
当人们走上展台时,又将解锁观察空间的全新视角。


▲ 细部
精致与粗粝、当代质感与原生肌理的对话。

▲ 材质
剔除粉刷面层后,建筑原有墙体呈现出原始毛坯状态,独特的肌理是时代的印迹。在此背景下,不锈钢及镜面材质注入强烈反差。

▲ 社交媒体传播
开业后的EvenBuyer,随即成为杭州新晋时尚打卡地标。
四十年前的水泥厂为城市建设提供原料,四十年后的「熟料空间」成为了都市先锋时尚的据点。从工业到文化的转变,在城市进阶的路径中,建筑获得了独特的意义。而在设计师手中,圆与方、粗粝与精致、原生肌理与现代材质、极简的设计语言与时下潮流单品,无不构成了有趣的互文及对「意义」的回应,并最终汇聚为这个张弛有度、富有韵律的空间。

▲ 分析图
项目名称:EvenBuyer
项目面积:320m²
项目地址:杭州市西湖区凤凰创意国际
设计公司:蒋杰设计工作室
主创设计:蒋杰
设计团队:潘楚楚
空间摄影:汪敏杰
竣工时间:2020.10
好设计网 www.haoooo.cn 欢迎投稿:infohaoooo@163.com
好设计网 www.haoooo.cn欢迎投稿:infohaoooo@163.com
