La Cipolla “窄” 店,四种不同的就餐体验
窄
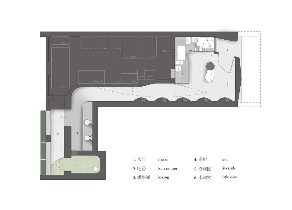
50平米的房子还要留一多半给到烘焙间,剩下的空间自然就很窄。
因为设备使用的要求,烘焙间占据了一侧最方整的无柱空间,公共区域被挤压的像一条长长的通道。点单,制作,就餐,所有行为就沿着这条窄长的通道展开。我们设想了四种不同的就餐体验:靠着曲线墙体,把身体藏进去;在Dark Room静坐;在沿河的高桌前被阳光包围;窝在”一人食”的小洞穴里。
窄,自前而窥后,谓之深远。





▲ 窄窄的公共区
房子的后窗对着城市里的一条无名小河。
我们不希望它是被直白的感知到。阳光板构成了一个半拱,隔绝了全部朝向河水的视线。你只有通过水面折射变化的光线,才能想象外面原来还有一片水,但也无从得知它的尺度,可能是河,湖,或是海。在半拱和实墙之间,留下了一条窄窄的缝。视线穿过绿色的玻璃,又是一条窄窄的水。


▲ 窄窄的水
返身回看,还是一抹日常的绿。
光

▲ 光的指引
窄窄的通道中,光是好的指引。它们穿过缝隙,透过材料,经过反射,跳跃到你的面前。通道既窄且长,但因为这份期待,也变得有趣起来。



▲ 光的穿越
最后一处隐藏的惊喜,是通道尽头角落里的小洞穴。在琥珀色的灯光中,你可以整个人蜷缩进去,把自己打开。我们特意选择了暖黄色的西班牙粘土,配上空间柔软的曲线,好像缩进了一个大面包里。


▲ 大面包
飞起来

▲ 贝果
起名字很有趣。
在设计的描述中,入口是一块岩石,从它的缝隙中切入。开放后很多路人给它起名字,叫的最多的是”贝果”,Cipolla很畅销的一款面包。在晴朗的日子,树叶的光影投射在”岩石”上,就又是另外一番光景。


▲ 反复练习的原型
名字大多是一种期待。我们决定以后还是叫它”贝果”好了,除了建筑师,应该很少人喜欢冷冰冰的岩石吧。
小彩蛋
设计中,我们用混凝土模拟了波浪墙面的形式,并观察它和身体的关系。


▲ 模型照片

▲ 完成的局部

▲ 轴测图

项目名称:La Cipolla
项目面积:50㎡
项目地址:苏州十全街926号
主持设计:夏慕蓉、李智
设计团队:虞芡、郑琴、暴佳英、殷瑜
空间摄影:WDi
好设计网 www.haoooo.cn 欢迎投稿:infohaoooo@163.com
好设计网 www.haoooo.cn欢迎投稿:infohaoooo@163.com
