M3作品,White House,开放舒适的设计
M3 Architect /
2017-06-03
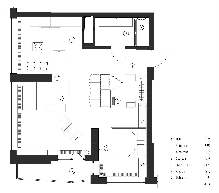
由M3 Architect设计的White House的主人是一位年轻人,IT技术专家,他很注重时间观念和空间给人的安慰感。



在功能布局上的考虑,制定了一个开放式空间设计,一个循环和动线,使能够最大限度地发挥空间。


设计强调了内部的细节。 考虑到生活的方式和节奏,客户的爱好。M3创造了最开放,舒适和明亮的空间。



好设计网 www.haoooo.cn 欢迎投稿:infohaoooo@163.com
好设计网 www.haoooo.cn欢迎投稿:infohaoooo@163.com
