1305 STUDIO作品,望湘怀想,上海South Memory餐厅
作为一家经营了15年的餐饮企业,面对日益竞争的餐饮市场,决定进行全新升级。在过去的一年时间里,业主委托1305 Studio为其设计改造了5家店。








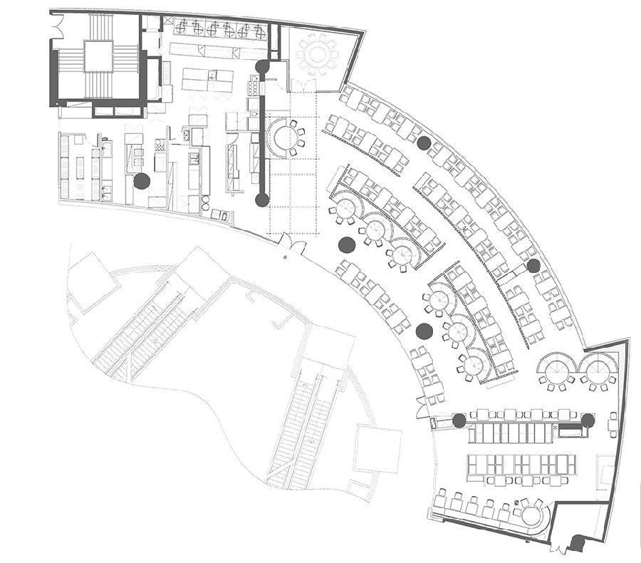
长宁龙之梦购物中心公共空间中地面流动的弧线作为导向设计,我们希望室内空间的内与外既有区分又能有某些联系。长宁龙之梦由于有三个不同的主入口,并分为红黄蓝三个颜色来区分三个主入口相应的中庭。我们的设计灵感也由此展开,原始平面特有的弧形也使得本次平面布置有别于以往的设计思维,新设计采用定制彩色地坪色彩叠加,达到地面整体统一融合的效果。流畅的图案使得原本枯燥的地面平面流畅自然散开、延续,成为本场设计的视觉焦点。







商场中每家店铺竭力花哨,所有餐饮店面外立面色彩纷杂,都希望从众多店铺中脱颖而出,让客户可以从很远的地方就可以看到,而我们在设计新店时力图通过简洁干净的外立面设计,以一种清朗的视觉效果呈现于整个商场之中。原有餐厅内部大面积窗户采光过于单调,而且户外的强光照射使得现在的室内空间较暗,室内外光比较大,为了整个空间的采光效果及视觉的舒适度,我们增加了轻盈的格栅,既达到适当的遮光,同时又烘托整个空间,与整场空间中使用的彩色纱染相互映衬。






看过照片的人多会好奇以为染纱是玻璃贴膜,所以在我看来,很多设计不能只看照片,而是去到实地现场才是最直观的感受。好与不好,一目了然。在今天看来,固定染纱的不锈钢过于笨重, 另外在施工过程中地面未能保护好,实际现场呈现的效果一定不是照片这般精致的。诚然,望湘园能做到今天15年,在这个餐饮时代大潮里求新求变是必然。那份对家乡味道的念想大概也是他们的一种坚持和坚守。






好设计网 www.haoooo.cn 欢迎投稿:infohaoooo@163.com
好设计网 www.haoooo.cn欢迎投稿:infohaoooo@163.com
