Fernanda Marques作品,Panorama,极简主义美学别墅
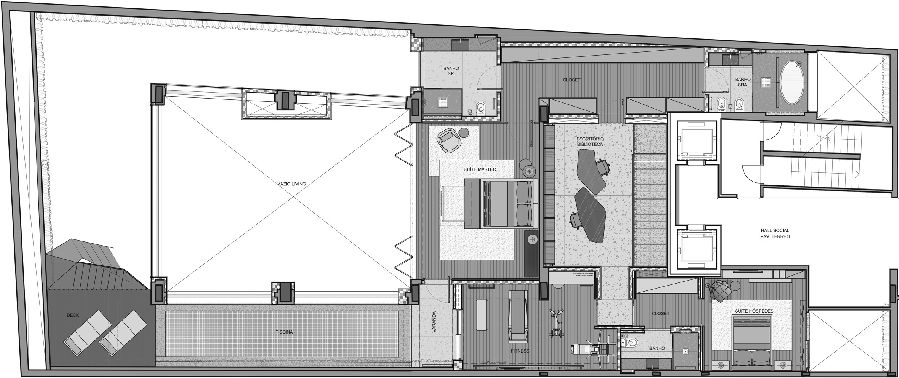
巴西建筑师Fernanda Marques在一栋名为Panorama的双层公寓中增加了游泳池,同时在一个富裕且垂直密集的社区的一栋公寓楼翻新了477平方米的单元。


该项目旨在为一对没有孩子的夫妇设计,其部分原因是客户希望将游泳场所纳入其公寓。

“费尔南达·马克斯(Fernanda Marques)张开双臂接受了这一愿望,他们决定将游泳池的前部和中央部分放置在起居室内,这样除了享受休闲之外,还会产生紧张感,”建筑师的工作室说,总部设在圣保罗。

建在一片银色的户外空间中,通过双层客厅的厚玻璃窗可以看到10米长的游泳池。细长的游泳池可在家中的二楼进入,或通过外部花园内的翻转楼梯进入。

“建造游泳池结构是该项目最具挑战性的方面,”马克斯说。“为了达到这个结果,使用了非常厚的进口玻璃,并且需要专业人员来安装它。”

游泳池挤入私人城市住宅的类似项目包括胡志明市的一所房屋和雅加达的房屋。

全景酒店的游泳池俯瞰着宽敞明亮的客房,拥有大理石表面和流线型装饰。巨大的窗户提供了一个强大的连接到花园,高高的墙壁披在茂密的树叶。

在客厅之外,家的下层包含一个餐厅和厨房。主人和客人卧室以及健身房和办公室位于二楼。

在其中一间卧室中,一面墙被切开以显示起居室的景色。卧室内衬玻璃栏杆,并有可折叠的白色面板,可根据需要关闭空间。

在整个住宅中,建筑师采用了极简主义审美观,以关注客户的艺术收藏品,这是该项目的另一个关键要素。

“他们拥有我非常敬佩的艺术家的作品,这些作品直接涉及空间问题,因此可以看出它们在项目中的重要性。”

家庭的照明设计经过精心设计,以增强艺术。在较低的层面上,几个区域配备了轨道照明,“随着收藏的发展,更多的艺术空间将会出现”。


好设计网 www.haoooo.cn 欢迎投稿:infohaoooo@163.com
好设计网 www.haoooo.cn欢迎投稿:infohaoooo@163.com
