杭州 MR.MAIMAi 麦丘梵,享受安静与精致
啊嗯设计 / 中国 杭州
2018-12-30
这是MR.MAIMAi麦丘梵品牌的另一个空间,位于杭州一个写字楼的二楼,可乘坐户外扶梯到达。主要针对写字楼的上班族,在工作之余静享面包和咖啡,“休憩似乎是一种静态”。对于一个60平米的周正的方形空间,设计师希望用“动态的翻转的曲线”,对功能区域进行形式化。

设计师在就餐区、通道做了相应的曲线设计,在不干扰通行的情况下,在人们活动的一侧或上方,导入那些动态的线条,设置“铜的1/4弧形和石材的1/4弧形”;设计希望使用大理石来处理这些动态的线条,石材在曲面部分翻转之后产生一种“小落差的序列视觉”,整体空间动态静止。此外,设计师还设置了铜管扶手来区隔购买区和就餐区。落座工业复古的铜桌椅,和铜制公园长椅,客人就餐时,“入眼皆是风景”,享受安静与精致。


在动态的大理石的边缘,用铜结构作为勾勒线,嵌入大理石体块中,利用铜的造型缝合这一种动态;并且与大理石柜台上的铜制垃圾桶和纸巾盒做组合。柜台背景基本是一个平立的体块,同样用动态的线条,在这个体块上形成一种动态。

在材料上使用一种常规的搭配——大理石与黄铜组合,以及黑色石材。



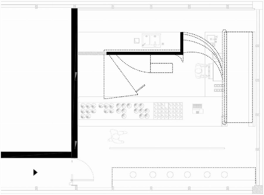
▼ 平面图

大面积的黄铜吊顶,空调出风口用黄铜包裹,有一面整体的黑色石材墙体,和到腰线的1.3米墙体,其余保留原始的铝合金玻璃窗立面。
好设计网 www.haoooo.cn 欢迎投稿:infohaoooo@163.com
好设计网 www.haoooo.cn欢迎投稿:infohaoooo@163.com
