北京铃木食堂丽都店 ,有差异的文艺集合体
“铃木食堂”是诞生于北京历史核心区的生活品牌,已经成为胡同复兴运动中最具持久性的标志之一。自2010年创立至今,“铃木食堂”已经超越最初的餐厅功能,而发展成为包含精品咖啡,零售,以及画廊在内的文艺集合体。通过定期举办展览和工作坊,吸引了来自中国和日本的大量艺术家,设计师和手工艺人。从2012年开始,余留地与品牌紧密合作,在六个环境各异的社区里创造出别具一格的空间。
▼铃木食堂外观

临近著名798艺术区,铃木食堂丽都店位于住宅社区的底层裙房。该街区正因为缺乏吸引人的租户和沉闷的建筑风格而陷入萧条。设计的主要目标是创造一个市集般的目的地,从而成为欢聚的场所,并给邻里注入活力。
▼铃木食堂丽都店主入口

外立面由深灰色调的特制织物所覆盖, 经过特殊处理的表面散发着金属般光泽。像所有铃木食堂的店面设计一样,余留地团队坚持发掘传统材料的潜力,通过改进施工工艺,使新空间恰如其分的置身场所文脉之中,同时又呈现引人好奇的特质。
▼透明感的入口空间由复合木板与钢板构成

▼外立面被特殊工艺加工的金属质感织物覆盖

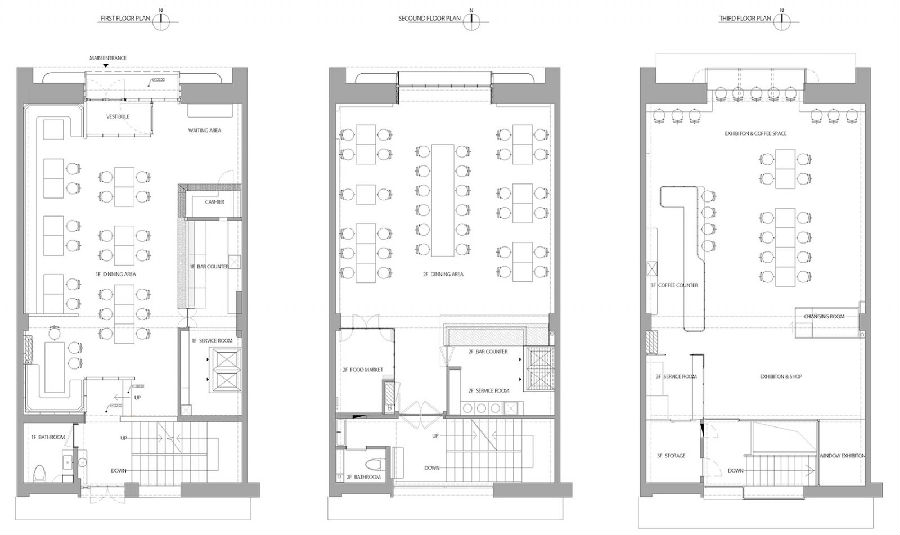
一楼的开放就餐区被若干私密的角落所环绕。整个空间的焦点是一个亭式结构的轻饮吧台,同时连接着位于楼下的厨房。悬置在抛光混凝土天花下的定制灯架由黄铜管连接,照映着白色调的马赛克地面和暖色调的木质桌椅。设计团队通过在原有墙体层叠的粉刷表面进行雕凿,产生出斑驳的白色浅浮雕效果,仿佛降雪后的北方山峦。
▼首层是以木质的厨房盒子为中心的开敞平面餐堂

▼亭子一样的吧台和厨房盒子

▼墙面层叠的旧涂料被重新雕琢成一幅主题为“雪降”的壁画

▼街景通过门斗的过滤,被带入首层餐堂

▼为铃木食堂丽都店特别设计的地面马赛克图案


▼通往二楼的楼梯间与相邻的私密角落

▼从楼梯间看一层就餐区

访客可以从通往二层的楼梯间看到社区内部的花园和儿童活动场。占据二层的是一个阁楼般的空间。通过具有拥抱感的木墙围和轻巧的金属灯架系统,创造出一种节日般的气氛。两个附属功能,定制厨房和食物商店,被可滑动开启的门扇定义为房间里的房间。
▼二层如阁楼般的餐厅客座区

▼阵列悬挂于白色金属珩架上的灯组创造一种节日般的气氛

▼二层拥有独立的开放厨房以满足团体活动的需求

▼被折叠滑动门扇区隔的食物商店

三楼包含咖啡店,零售和小型展览空间。平面可根据需要自由调整,仿佛一个隐世匠人的工作坊。南北两侧都设置开窗,为频繁举行的活动和展览提供充分的采光和通风。咖啡吧台由整张铝板制作,为三楼多变的室内布置提供简洁明亮的背景。
▼楼梯间成为过渡空间,连接餐厅和具有混合功能的三层

▼一个微型画廊悬置在楼梯间上方

▼自然光从看到邻里的窗户中漫射到空间之中

▼咖啡吧台由整张铝板制作而成

▼可以俯瞰街景的北侧飘窗是最受欢迎的座位

“有差异的归属感”是余留地团队在设计丽都店时追求的核心价值,这也贯穿于过去六年工作室为铃木食堂设计的各家分店。通过对有限空间的精心规划和传统材料的创造性处理,每一家铃木食堂都分享着令人熟悉难忘的亲和感。而对于街道景观“显而不张”的回应,铃木食堂为其根植的每一个地点带来新鲜的特质和期待。
▼铃木食堂丽位置地图

▼各层平面图

▼剖面透视图

项目名称:铃木食堂丽都店
项目地址:北京市朝阳区将台路
建筑面积:400平方米
建筑公司:余留地
设计主持:宋方舟,岳峰
设计团队:赖智薇,魏丹,宋蕾,蒲洁宇,冯莹
品牌标识设计:广煜
摄影师:梁志刚
好设计网 www.haoooo.cn 欢迎投稿:infohaoooo@163.com
好设计网 www.haoooo.cn欢迎投稿:infohaoooo@163.com
