杭州 LUCKY PIGGY餐厅,纯净的轻食空间
LUCKY PIGGY是杭城知名的餐饮机构,山葵家餐饮公司,旗下新开辟的一个轻食品牌。有别于山葵家传统的日式风格,LUCK PIGGY定位于年轻人,产品线由正餐转向轻食和甜品。因此,在店铺设计上,也需要进行转变和突破。
▼店铺外观&招牌

本案旨在强调店铺的专业度以及亲和力,在设计上尽量做到去装饰化,达到干净纯洁的效果。因此,我们希望达到的是“轻”的空间效果、及“便利”的功能体验。“轻”,体现在材料的选择上,浅灰色的波纹铝板、同色系的水泥砖,白色人造石及乳胶漆的应用,目的都是希望达到清爽、干净的设计效果。在这里,可以消除紧张感,完完全全放松,享受一顿美食,可能是一份意面,也可能是一块覆盆子蛋糕,和朋友消磨一个美妙的午后。
▼室内概览,墙面大面积采用了波纹铝板

在店铺外立面,采用了波纹铝板制作的玻璃门,旨在营造一个聚合的空间氛围感,客户在就餐时,能够不受商场喧闹的烦扰。而“便利”,更多地是在平面布局上的考量。就餐区域划分为明显的两个区域,吧台作为空间的功能以及视觉重心,同时可服务于散座及卡座区域。除去传统的餐桌椅及卡座,我们还设置了吧台及高桌,提供不同的就餐形式,同时丰富了空间的竖向层次。
▼散座区域,顶面暴露了原始建筑的管线和设备

▼收银台细部

▼散座区座椅细部

在设计细节上,去除了过多的装饰性元素,希望能够用建筑的手法,对空间进行“整理”。亦可以说,是空间体块上的整合,功能及美之间矛盾的取舍,以及细节收口等细部的处理。例如,在吧台前方的散座区域,顶面的处理,本案选择暴露了原始建筑的管线和设备,但将它收拾到干净的程度,表面经过处理和喷涂金属漆,克制了装饰性的元素,又能达到想要的设计效果。明装筒灯吊装的走线,采用了金属网将它们“整理”到干净的效果。
▼卡座区域 & 吧台高桌

▼卡座区细部,材料的运用营造了纯净的空间效果

粗粝的水泥柱体、地面水泥砖的运用,都在强化这一设计理念。以及墙面大面积采用了波纹铝板。这种建筑材料在室内中空间中,应用得并不多,但在本案中,它能够营造的纯净的空间效果。看似这些处理手法,是保留原始的建筑的质感,实质上是一种细致的考量与设计。同时,这些材料,与木饰面及鱼骨拼的地板,所形成的亲和感,形成奇妙的对比。
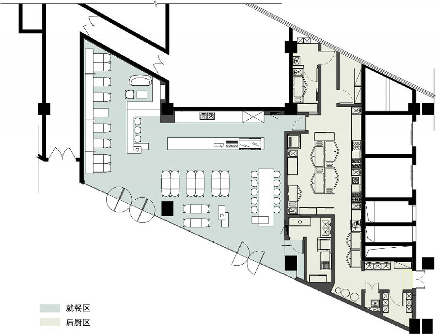
▼平面图

▼立面图

项目名称:LUCKY PIGGY 轻餐厅
建筑公司:界建
项目年份:2018年6月完成
主创及设计:刘安、孙凌昕、李志超
项目地址:杭州临平
建筑面积:240㎡
摄影师:稳摄影
合作方:Partners
软装:刘茉然;施工:巨银装饰
客户:杭州山葵家品牌管理有限公司
好设计网 www.haoooo.cn 欢迎投稿:infohaoooo@163.com
好设计网 www.haoooo.cn欢迎投稿:infohaoooo@163.com
