悉尼西部酒店,远离城市的惬意体验
西部酒店是悉尼市中心最新建成的酒店,充斥着绿色植物的庭院为客人们带来远离烦嚣的舒适环境,独特的客房能够满足每位客人的需要。其室内设计由Woods Bagot事务所完成。西部酒店坐落在悉尼港和CBD之间的新兴地带,整体设计有意强调了一种内向式的空间体验。八层高的体量中央设有一座热带雨林式的迷你庭院,成为整个建筑的关键元素,并同时与酒店大堂和Solander餐厅相连。从客房可直接俯瞰到庭院的美景。“晴天时,灿烂的阳光会源源不断地涌入庭院,而在下雨时,植物散发出的芬芳将使你感受到自然的气息。” ——Woods Bagot建筑事务所酒店业务部负责人Jacqui Senior
▼ 热带雨林式的迷你庭院

酒店共包含128间客房和4间套房,另设有餐厅(由来自纽约朗廷酒店的比利时籍厨师David Vandenabeele担任行政总厨)、鸡尾酒吧和会议区。三层高的露天花园中庭为客人们提供了一处放松身心的绿洲,在带来隐蔽私人空间的同时,也为花园内部引入一丝街道上的生活气息。设计团队从Fitzpatrick + Partners设计的宝石般的建筑外观上汲取灵感,以现代化的语言诠释了澳大利亚景观中蕴含的色彩与纹理特征。充满设计感的元素遍布了室内空间的每个角落,丰富的色彩与肌理共同折射出悉尼别具一格的海港风情。
▼ 礼宾部和接待台

客人在进入大堂时便能看到前台后方的热带植物景观。炭黑色的砖墙和几何拼接的暖色木地板共同营造出沉浸式的氛围。大堂的天花板处悬挂着一款特别定制的灯具,犹如漂浮在空中的云形装置。
▼ 定制灯具犹如漂浮在空中的云形装置

临街的酒店餐厅为客人提供各种类型的休闲餐饮。餐厅的黑色板条天花板采用了极简的裸露式设计,与丝绒材质的座椅以及大理石材质的地面形成鲜明对比。与餐厅相连的大堂酒吧设有一个宝石绿色的水磨石整体吧台,在为绿色植物提供背景的同时,也将餐厅和酒店大堂连接起来。
▼ 临街的餐厅

▼ 大堂酒吧

▼ 吧台和座位区


▼ 材料细部


▼ 电梯厅

▼ 客房走廊

▼ 室内房间采用了柔软的深色地毯、胡桃木和黄铜装饰以及特别定做的床头板


▼ 室内细部



▼ 装有玻璃的钢制隔墙划分出卧室和客厅的区域

▼ 卧室

▼ 细部


▼ 浴室


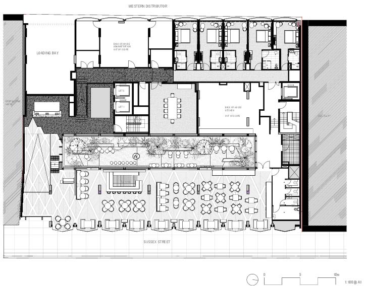
▼ 首层平面图

▼ 套房标准平面

▼ 客房标准平面

▼ 客房标准立面

▼ 餐厅立面图

酒店客房的内部环境呈现出精致的轻工业美感,为客人们带来远离城市的惬意体验。材料和形式等细节均经过了细致的考虑,采用了柔软的深色地毯、胡桃木和黄铜装饰以及特别定做的床头板。浴室的设计优雅而前卫:天然石材、烟色玻璃和设计款家具形成和谐的搭配。套房内铺设着蜂蜜色调的镶木地板和手工编织的嵌入式地毯。装有玻璃的钢制隔墙划分出卧室和客厅的区域。
好设计网 www.haoooo.cn 欢迎投稿:infohaoooo@163.com
好设计网 www.haoooo.cn欢迎投稿:infohaoooo@163.com
