墨西哥度假住宅Casa Meztitla,一个自然中的建筑
岩石砌成的房子低伏在树荫下覆满了植被的岩石坡地上。是自然环境里的一个纯净的空间。 内向的居住空间向外打开,与自然融为一体。只有偶尔出现,透过枝叶繁茂的树林的五颜六色的九重葛花,和树林上缘露出的巨大的白色盒子向外界透露着建筑的存在。

建筑位于距离墨西哥城南边90公里的小镇特波茨兰郊区,一个名为Meztitla的片区。建筑师被赋予了很大的权力,包括基地也是由他亲自挑选的。这里地价不高,却能坐拥El Tepozteco国家公园震慑人心的自然景观,同时也满足业主对便利交通的需求。建筑将作为度假屋以及退休后的修养住宅使用。
业主是一对60余岁,从市市场和数据分析行业的老夫妇。建筑拥有足够的内部空间,便于他们邀请家人和朋友前来团聚。

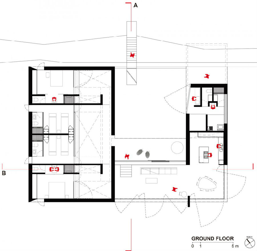
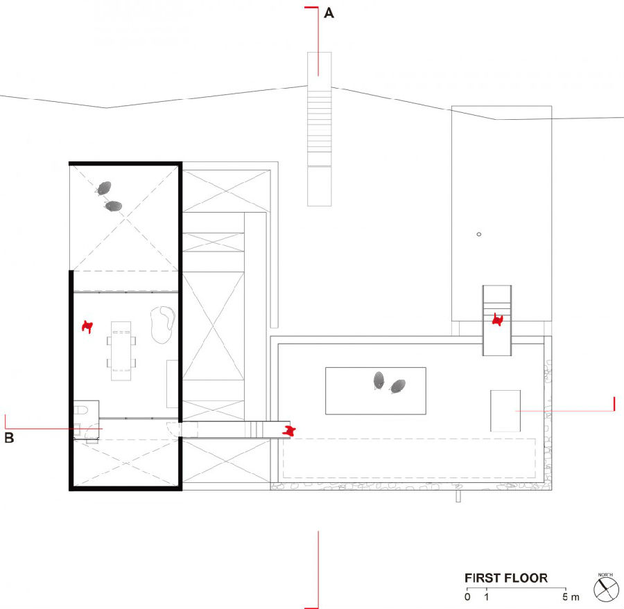
建筑空间被分为四个部分:公共部分包括了起居室和餐厅,一个开放式厨房,位于建筑中部,望向项目唯一人工草坪的门廊,以及覆盖了约280m3的饮用水源的楼板;后勤部分包括了一个烤架,厕所,浴室,洗衣房以及储藏空间;卧室部分分为两间主卧和两间客卧,除了共享的室外平台外,位于尽端的两间主卧还各自拥有一个私人平台;位于二楼的工作室则需要通过屋顶平台前往,其两侧各有一个室外平台。







设计的重点并不在于各区域内部空间的功能,而是在室内室外空间无法割裂的联系:在不能的功能区间移动,必然会经过室外空间;除了后勤区域外,所有的空间都是开放型的,室内室外只有一步之遥。建筑的内部空间通过各式各样的外部空间串联。炎热的亚热带气候促使建筑采用了这种与自然环境紧密衔接的布局,让建筑、生活与自然共生。

建筑采用了本地开采和加工的,最基础的矿物材料:地基、地窖和主要的结构由混凝土制成;火山石和水泥砖块砌起了墙体,再以白色的水泥和石灰混合物粉刷。同样的材料了也用于了粉刷室内的墙壁和天花;抛光混凝土地板平整耐用;所有的木质部件都以木油和打蜡收尾;可旋转的巨大幕门采用了钢制框架和钢化玻璃。


室内则选用了由天然实木、浅色的布料、钢材和聚丙烯为原料制成的家具。吊床、吊床摇椅和木头椅子则给空间带来了墨西哥传统的热带风情。
材料的选择既经济,又实用,让这座位于亚热带雨林里的建筑美观却又易于维护。时间在建筑上慢慢留下自己的痕迹,建筑逐渐与环境融为一体。



建筑位于一个极其壮美的自然环境中,气候也十分温和舒适,建筑师认为建筑不应该自我封闭,而是向自然敞开怀抱,保持不间断的联系。而在业主对私密空间的坚持下,这种开放性折衷转变为可旋转的玻璃幕门。每个人都可以根据自身需求,调整空间的开放程度,同时与自然保持持续的视觉联系。此外,旋转大门也是一个非常有表现力的建筑结构。









Casa Meztitla是一个自然中的建筑。在这里,有难得的休闲气氛,有舒适的热带气候,有热情的阳光,有自然的味道,有跨越了漫长岁月的景观,还有永恒的El Tepozteco山脉。 这是一个和谐的建筑,一个完整的故事。
好设计网 www.haoooo.cn 欢迎投稿:infohaoooo@163.com
好设计网 www.haoooo.cn欢迎投稿:infohaoooo@163.com
