美国野墅,一幅壮丽的风景画尽收眼底
这栋约90平米大的小住宅坐落于亚利桑那州南部的San Rafael山谷内,距离最近的城市Tucson两小时车程,而向南15英里便是美墨的边境。居住者在远离喧嚣的同时也远离了便利的现代生活,所有能源必须自给自足。建筑的选址在风景与安全中找到了平衡, 既坐拥眺望远方开阔草原和延绵山脉的无敌视野,同时,大地色的建筑深藏在丛林之中,不易被狩猎者、探险家或潜在的移民所发现。而鉴于其临近边界,可步行到达的地理位置,业主对整体结构的稳固性也有了更高的要求。

18英寸厚的浇筑岩墙壁厚重而低调,方形的体量完全融入了本土的橡树从中,俯瞰着山脚下广袤的冲积平原。这种当地常见的材料由轻质红色火山岩粉末,水泥和水混合、夯实而成。稳固的墙体支撑起整个建筑结构,敦厚的墙体保温隔热,维持着室内温度的稳定。



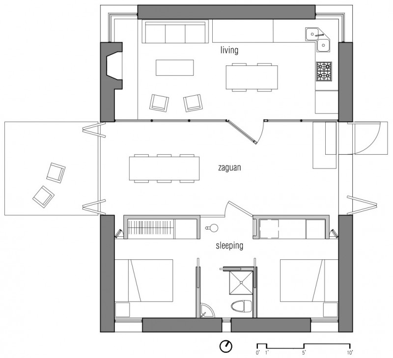
针对业主对室外生活和休息空间的特殊要求,建筑师对当地特有的空间结构-Zaguan进行了改良和利用,而室内空间绕其而建,开合自如的格局成为这所Casa Caldera的最大特色。

Zaguan两端的巨大金属折叠门将屋顶之下的生活空间和其外的自然相连接。东侧的门框框出一张真实比例的画作,而在西侧,远处的谷地和山脉尽收眼底,如同一幅壮丽的风景画。在白天,灿烂的阳光和习习微风穿堂而过,而在晚上,合起的大门带给了居于其中的人们无限的安全感。不同的季节、用途和生活需求产生了多样的开合方式,这也可以看作是居住者与自然的互动和回应,不断地调整着建筑与阳光和微风的关系。在气候温和的季节,Zaguan将成为一个半开放的放松、用餐和休息之地。
Zaguan成为了与家人、友人共度休闲时光的最佳场所,在似乎亘古不变的永恒风景中,捕捉时光的流逝。










▼ 总平面图

▼ 平面图

▼ 剖面图

在夏季,微风吹过Zaguan,再通过巨大的落地玻璃门和墙上的小窗户穿过内部空间;而在冬季,附近的树木则成为了无限量的燃料库。清澈的水源来自深入地底的水井,而太阳能维持着必要电器以及夜间的少量照明。此外,在整个建造过程中仅产生了极少量的建筑废料。
好设计网 www.haoooo.cn 欢迎投稿:infohaoooo@163.com
好设计网 www.haoooo.cn欢迎投稿:infohaoooo@163.com
