乌得勒支乡野小屋,与自然完美融合
Zecc / 荷兰 乌得勒支
2016-02-23
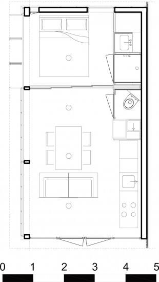
一座坡屋顶的休闲小小屋,紧凑开放,为风景而生。小屋位于乌得勒支乡野,由Zecc建筑工作室和室内设计师Roel van Norel合作,采用石板和木材打造。最终完成的小屋静静的位于风景中,完美与自然融合。小屋的屋顶和一侧墙面被石板覆盖,另外三个立面可以开放的拥抱自然与阳光。小屋起居室所在的山墙采用了钢窗架,大玻璃落地窗直面景观,侧面玻璃墙外安装了一整面百叶窗,可以调整与景观的关系。起居室和卧室之间的滑动门可以让整个空间连成一气,卧室上方还一个小阁楼。主要的功能家具和区域都集成在石板墙的那一侧。
















在这个简约的空间中,每一尺寸都经过了精心的设计。
好设计网 www.haoooo.cn 欢迎投稿:infohaoooo@163.com
好设计网 www.haoooo.cn欢迎投稿:infohaoooo@163.com
