蒙特利尔SSENSE新旗舰店,集文化、社交和零售为一体的场所
SSENSE成立于2003年,是一家加拿大的线上时尚平台和电子零售商,业务遍布全球。该公司由线上商店起家,如今决定开设一系列线下实体商店网点。蒙特利尔空间是该公司于2015年设计的概念试点,由此产生的商店项目在零售行业中创立了一个全新的范本。它不是传统意义上的商店,而是一个集文化、社交和零售为一体的场所,以实体店的形式体现了该公司品牌以数字化为基础的多样性。顾客们可以在商店中体验空间、聚会、试穿他们在网上看到的心仪的衣服,甚至参与到与时尚和艺术相关的文化节目中去。
▼ 旗舰店外立面,保留并翻修了原有的砖石外墙

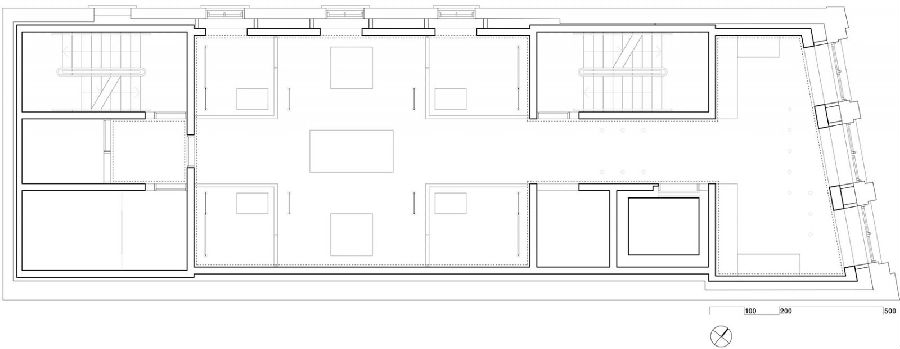
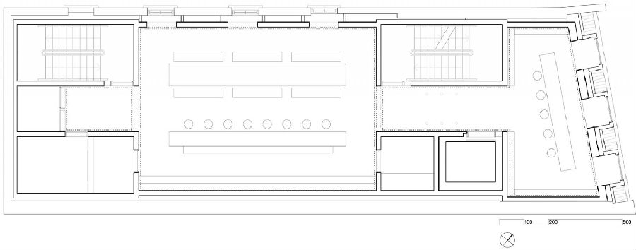
该项目是一个改造项目,原址是一座建于19世纪中期的废弃建筑,位于蒙特利尔最古老的区域Vieux-Montréal的Rue Saint-Sulpice街上。建筑师保留并翻修了历史悠久的砖石外墙,将内部改造为了一座五层高的新建筑。这种处理提高了原建筑外壳的结构稳定性。将混凝土核心筒结构最小化,从而在每层楼创建两个主要房间,以便于为一系列策划的活动提供简单的场地。建筑底层设有双层通高的入口大堂,顶层则设有玻璃屋顶的咖啡厅。
▼ 室内展示区,采用轻质的展示构件,由与室高同高的钢缆支撑

▼ 室内展示区,喷砂面混凝土与轻质展示构件和谐共处

▼ 试衣区,喷砂面混凝土墙面与钢制隔板创造出一个简洁的空间

▼ 顶层的咖啡厅,设有玻璃屋顶

▼ 总平面图

▼ 首层平面图

▼ 三层平面图

▼ 五层平面图

▼ 正立面图

▼ 侧立面图

▼ 剖面图

新建的部分全部由黑色喷砂面混凝土现场浇筑而成,为展示构件提供了一个永久性的空间环境。建筑师将展示构件设计成轻质结构,由与室高同高的钢缆支撑,以便轻松地安装和拆卸,创造出一种暂时性空间,符合快速变化和不断提高的市场需求的概念。
好设计网 www.haoooo.cn 欢迎投稿:infohaoooo@163.com
好设计网 www.haoooo.cn欢迎投稿:infohaoooo@163.com
