日本埼玉住宅 Current,错落堆叠的折扇
河野有悟建筑計画室 / 日本
2018-12-13
狭长基地上的一个单层两户住宅。

客厅/餐厅、榻榻米转角和庭院的线性布局为每个家庭提供了一个30米长的主要生活区域,视野开阔。这一空间两侧的私人房间的设置创造了家庭之间的距离感,即使他们从私人区域面向公共空间。





30米长的主要起居空间和两侧的私人房间覆盖着重叠错落的屋顶,仿佛属于几个住宅群。虽然该建筑是一个单独的住宅,但从街道上看,它非常像是一排房子。


长长的、广阔的屋顶上有天窗,引进了阳光,也可以改善通风。设计使通风不受压力或风向的影响,风能够根据特定的天气或者季节的温度和风向有效地流通。



▼ 分析图1

▼ 分析图2

▼ 分析图3

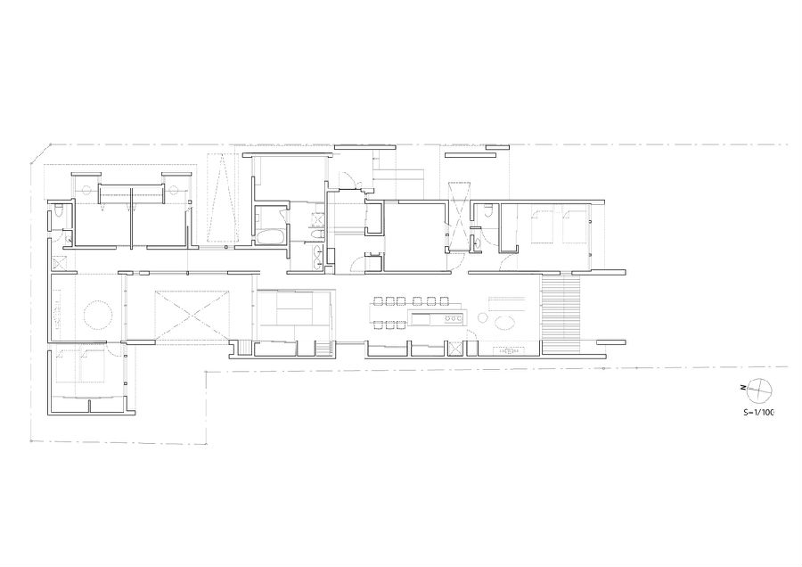
▼ 平面图

地址:Saitama, 日本
建筑面积:265.0 平方米
基地面积:498.91 平方米
建筑师:河野有悟建筑計画室
结构工程:Scube Co., Ltd.
设备工程:Limited company Comodo
摄影师:Seiichi Ohsawa
好设计网 www.haoooo.cn 欢迎投稿:infohaoooo@163.com
好设计网 www.haoooo.cn欢迎投稿:infohaoooo@163.com
