意大利 Silena 酒店,自然主义的亚洲风格

noa* / ·意大利
2018-07-25

“穿越沼泽真令人害怕……”——德国女作家Annette von Droste-Hülshoff,1842年。

沼泽向来是神秘之地,充满了秘密和游移不定的情绪。这种场所精神正是本案的灵感来源。由noa*事务所设计的Silena酒店是由原先的”Moarhof”酒店扩建和改造而来,位于Valser山谷的边缘,海拔1300米的场地被高沼地环绕。

▼ 酒店外观


充满神秘气息的四星酒店”Silena”以沼泽色的外观融入了周围的景观,宛如从不稳固的地表中升起,呈现出宁静、稳固且具有灵性的特质,同时兼具了十分精致的细节。古老的自然环境和富有东南亚气息的室内装修(业主特别要求)成为酒店中最关键的两个因素。

建筑的外层表皮模仿了生长于沼泽中的植物,如有生命一般将酒店大楼的整体包裹起来


原始建筑最古老的部分位于酒店的西南侧,在2017年被重新设计之后,建筑师对这一部分进行了拆除,仅保留了支撑结构和悬臂式的天花板,以迎合自然主义的亚洲风格。在2011年加建的东南翼楼也被保留下来。大地色的铝板立面象征着周围的沼泽地带,同时使新老建筑形成视觉上的关联。建筑的外层表皮模仿了生长于沼泽中的植物,如有生命一般将酒店大楼的整体包裹起来。

铝板立面细部


▼ 入口立面


酒店的首层是新建的健康中心,有机的弧形墙面与周围景观形成连接。健康中心包含桑拿区,美容区,两个休息室以及原先就有的室内游泳池。南边设有一处露天休闲客厅和一座半户外的游泳池。重新设计并扩建的酒店餐厅位于健康中心的楼上,设有厨房和宽敞的户外露台。此外,餐厅的东南侧还增设了一间可以饮茶的图书馆。

位于首层的健康中心


▼ 休息室

▼ 半户外游泳池


▼ 天花细部


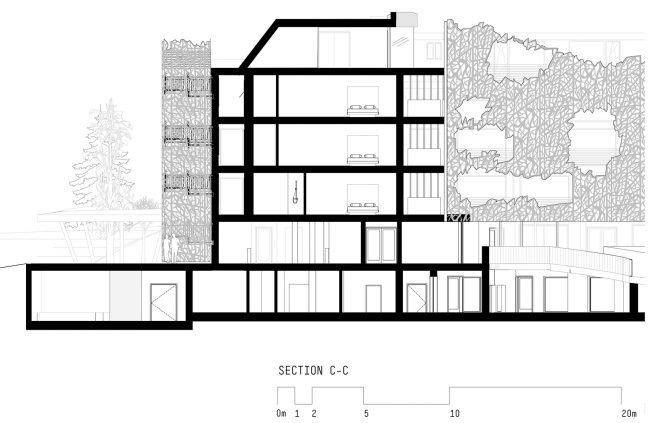
新设计的客房位于翻修后的二层和三层,每间客房的面积均超过30平方米,并配有独立的阳台。酒店四层是完全新建的楼层,增设了额外的客房,以及一个带有专属桑拿房和放松空间的套房。五层也是新建的楼层,拥有轻盈的木制结构,与首层的外观形成呼应。屋顶露台设有全景桑拿、放松室、休闲客厅以及种满苔藓和青草的屋顶花园。新建筑的屋顶景观与遍布着植物的山地和沼泽地形成了无缝式的衔接。

有机的弧形墙面与周围景观形成连接

▼ 走廊

▼ 桑拿室


▼ 室内水池

Noa*事务所将外观设计的理念融入到室内设计当中,为29间新客房、阅读室、套房、健康中心、餐厅、大堂、休息室以及图书馆赋予了沼泽元素和充满自然感的东南亚气息。客房内的壁纸加入了梦幻的蓝色元素,为客人带来温柔和释然的感觉。带有天蓬的床铺和白色的羽绒床品也赋予客房以浪漫的气息。淋浴间和浴缸被设置在起居空间内,营造出熟悉而亲密的氛围。环绕在淋浴间周围的木制屏风装饰着与壁纸相似的图案,将整个空间变为一件和谐的艺术品。厚实柔软的窗帘和布艺为客人带来惬意蓝色的时光,使思绪徜徉在白昼与梦境之间。

▼ 客房内部

▼ 厚实柔软的窗帘和布艺带来惬意蓝色的时光


▼ 淋浴间和浴缸被设置在起居空间内,营造出熟悉而亲密的氛围


▼ 洗手池区域


▼ 客房内的阅读区

▼ 室内细部


在扩建的餐厅内,客人们聚集在桌边,在立柱周围形成一座座岛屿。蓝丝绒座椅偶尔装饰着印花的面料,展现出优雅的情调。摆放着葡萄酒和奶酪的柜子不时勾起人们的食欲。

餐厅

▼ 可以品茶的图书馆

▼ 休息区域


▼ 夜景



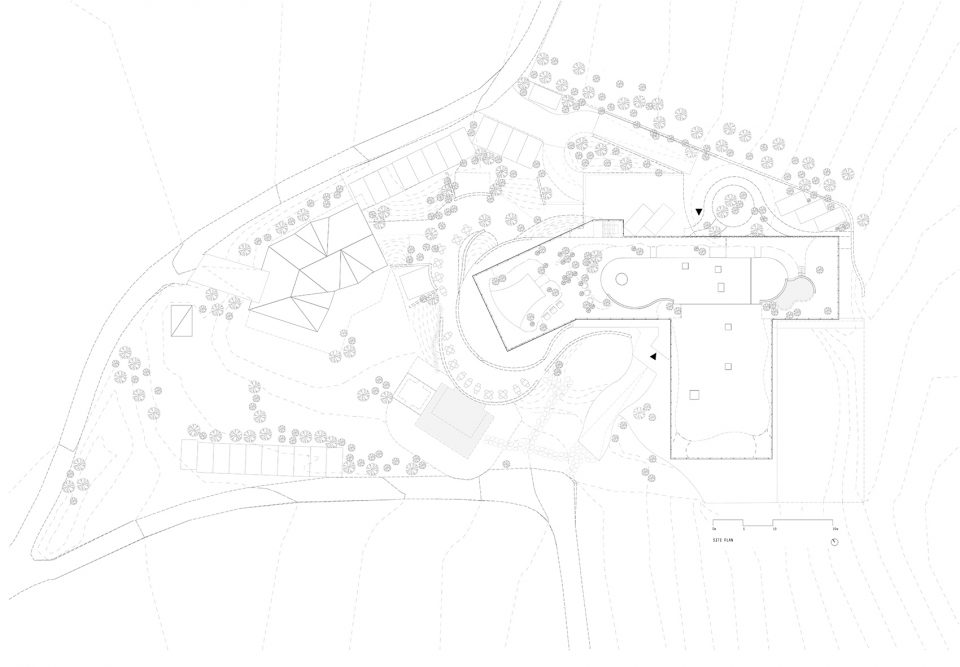
▼ 场地平面图


▼ 首层平面图

▼ 二层平面图

▼ 五层平面图

▼ 北立面图

▼ 南立面图

▼ 剖面图


位于首层和顶层的桑拿区和健康区也展现出强烈的自然气息。墙壁和天花板引入了沼泽地和蕨类植物的景观意象。图书馆呈现出浓厚的亚洲格调,榻榻米使客人可以轻松地席地而坐,从而改善阅读体验。大堂和休闲客厅的冥想空间设置于前台附近,设有蓝色的高背躺椅。

好设计网  www.haoooo.cn      欢迎投稿:infohaoooo@163.com

好设计网  www.haoooo.cn
欢迎投稿:infohaoooo@163.com