月桂音乐中心,手摇风琴筒风琴的抽象化符号
WY-TO事务所与toit et joie公司合作设计了这个名为“月桂音乐中心(the studios laumière)”的建筑,该建筑是一次国际招标项目的一部分,旨在通过社会和文化创新项目重塑巴黎。该方案改造了现有建筑,为19区这个充满活力和艺术气息的街区提供了一个新的音乐欣赏之地。整幢综合性的建筑既可以为音乐家们提供住所,同时也是为专业人士和业余爱好者提供培训和音乐创作的场所。


▲ 主立面所展示出来分割形式的是抽象化的手摇风琴筒风琴
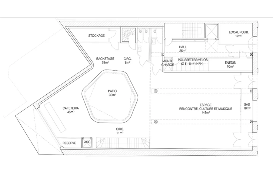
该项目由建筑师设计开发,内部包含有多重功能,可以作为当地社区的表演和活动场所。建筑的设计目的是要将原配电中心的地下室和一楼改造成一个动画艺术中心。每层楼都配有相应的室外空间,可以将自然光引入每个协作空间。

▲ 每层楼都配有相应的室外空间
主立面不仅仅是对音乐浪潮的隐喻,它还代表了手摇风琴筒风琴的抽象化符号,桶形风琴是一种流行的街头乐器,与巴黎的古老街头形象相联系。立面面板采用穿孔的形式,孔的位置是根据当代作曲家特别创作的乐谱生成的,当地居民和路人将能够通过一个专门的应用程序播放这首音乐。

▲ 专门为专业人士和业余人士打造的场所
建筑内的某些功能有特定的声学要求,借助一个非平行的隔断系统来增强音效,从而形成一种真正独特的建筑形式。月桂音乐中心通过在上下七层空间中铺设轻质的木结构来形成隔音工作室,专门为音乐家提供无干扰的乐器练习空间。

▲ 所有的合奏空间都能享受到自然光
该项目还想通过重新利用和更新现场的现有资源,引入可生物降解的材料,以此成为生物气候设计的典范之作。建筑通过在建筑物顶部的温室中种植本土植物,并通过培育蜂巢来实现自然授粉,从而振兴城市的生物多样性。

▲ 该项目振兴了城市生物多样性

▲ 巴黎第19区新的音乐鉴赏之地

▲ 月桂音乐中心既可以为音乐家们提供住所,同时也是培训和音乐创作的场所。

▲ 该项目是生物气候设计的倡导者

▲ 原有的配电中心改造成动画艺术孵化器

▲ 一楼可改造成向当地社区开放的表演和活动场所

▲ 立面面板穿孔形式是根据当代作曲家特别创作的乐谱生成
项目名称:月桂音乐中心
项目区位:法国,巴黎
建筑设计:WY-TO事务所与toit et joie公司联合设计
好设计网 www.haoooo.cn 欢迎投稿:infohaoooo@163.com
好设计网 www.haoooo.cn欢迎投稿:infohaoooo@163.com
