宁静之家,演绎古朴素雅的清水混凝土美学

FORM/Kouichi Kimura Architects / 日本
2019-02-21

本次项目的场地位于交通流量庞大的公路沿线。用地周围扩展出来一部分地块,与同一业主经营的混凝土工厂和业主父母居住的传统日本房屋相邻。整体环境给人一种杂乱无章的印象,因此业主希望这座房子既能扩大视野又能挡住周围不良的环境视线。因此建筑师给出的设计方案将轴线与北侧立面对齐,从这一侧你可以获得最宽阔的视野,同时空间布局上从入口一直到最后方的露台都能形成自己的延伸性。对称的立面形式由一系列的体量构成,其中内凹的部分就是入口。位于中心的墙体又厚又有分量感,能够增强建筑的纵深感。这面墙体还起到“视线遮蔽”的作用,用于阻隔外部行人的视线干扰。

进入门厅后,高大的体量创造出的空间从顶部照亮,形成粼粼水光。空间通过无缝的玻璃侧壁分隔开,形成视线穿透,将外部的景观引入室内。两面质感粗糙的墙壁形成特有的方向引导性和厚重感,同时令两墙之间的空间形成一条通往起居室的通道。在通道中,门的位置可以灵活地打开或者关闭,以产生不同的空间体验。

相互连接的生活和餐饮空间设置在一个巨大的空间内,仅通过天花板高度和地板高度的不同来划分。同时,精心设计的采光窗口会形成一系列不断变化的阴影和纹理,构造出具有深邃感的空间。

从入口一直到整个区域的最末端,建筑师想要创造的空间是一种将风景和光线融合在一起的开放空间。因此建筑师布置了一个可以用作客厅延伸部分的房间,并在外侧建造了一个环绕房间的大露台。

露台上的瓷砖采用与室内一致的材料,以产生扩大的感觉,同时增强房间内外的连续性。通过北侧的玻璃幕墙,业主可以欣赏到被墙的水平线框选出来的景色,使房子给人的印象更加丰富。沿着轴线展开的空间序列产生了舒适而宁静的氛围,给日常生活带来了具有精致感的美学。

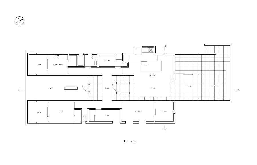
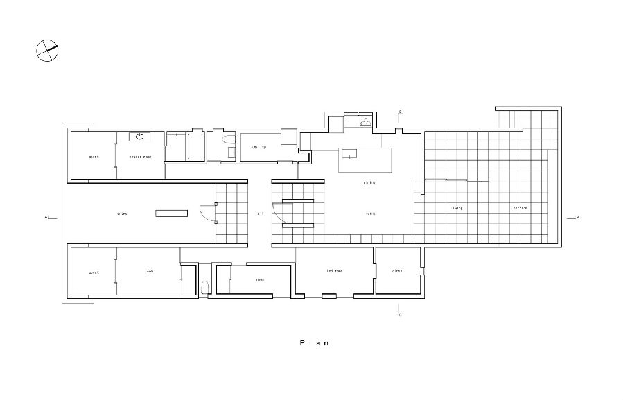
平面图

▼ 剖面图

建筑分类:住宅

项目区位:日本

用地面积:845,69平方米

建筑面积:158,65平方米

建筑设计:FORM/Kouichi Kimura Architects

项目时间:2019年

项目摄影:Norihito Yamauchi, Yoshihiro Asada

好设计网  www.haoooo.cn      欢迎投稿:infohaoooo@163.com

好设计网  www.haoooo.cn
欢迎投稿:infohaoooo@163.com