喜茶郑州正弘城茶空间店,传统书法艺术与喜茶品牌精神的高度契合
饮茶自从汉代出现以来,时至今日其作为传统文化之一依旧在中国人的生活中扮演着极为重要的角色。从传统的茶道到年轻人喜爱的新式茶饮“喜茶”,MOC DESIGN从这些变化中看到传统文化随着时代推进而催生出新的形式的更多可能。
在这个茶饮空间中,MOC DESIGN通过将中国传统书法艺术用年轻人更关注的现代手段重构,探索传统书法艺术在新时代语境下的可能性,从而达成空间设计与喜茶在品牌精神的高度契合。




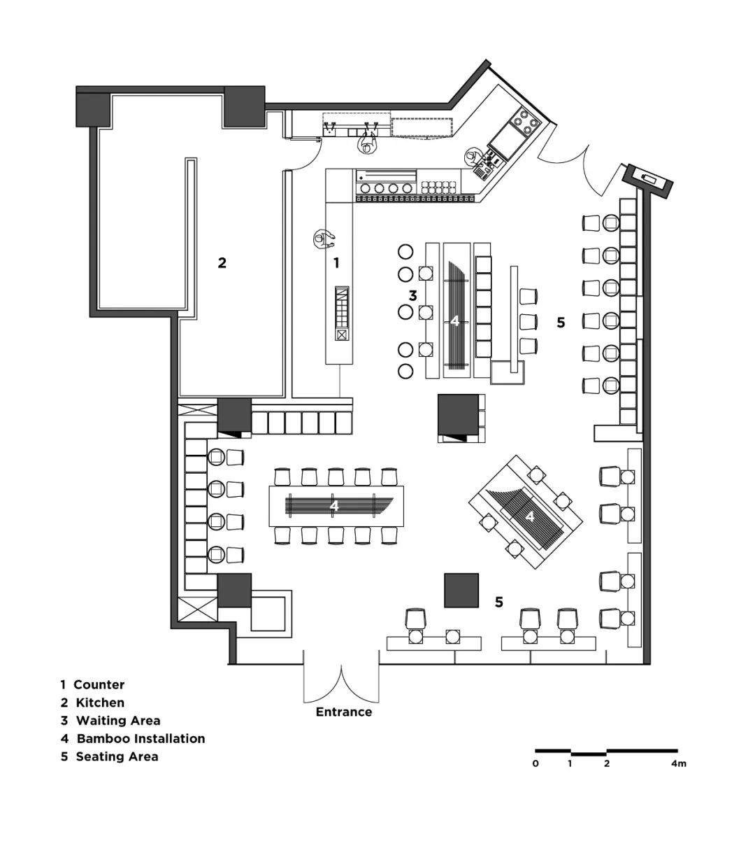
▲ 平面图

▲ 轴测图
茶是中国古代文人交流时必不可少的饮品,亦是挥洒水墨之际,激发灵感的妙物。
中国的书法艺术以水和墨为介质,讲究的是在简单的线条中传递丰富的精神内核,正如茶一般,总能品出不同的况味。




▲ 艺术装置演化
书法的基本元素是笔触。落墨或干或湿、或浓或淡、或遒劲或悠扬,期间蕴含无尽的内涵。MOC DESIGN将书法艺术中水墨笔触的印象,以艺术装置的形式在空间中立体化呈现。
白色的空间为纸,悬浮于空间中的黑色竹子构成的艺术装置,如同在三维空间中落笔挥毫。





▲ 墙面设计演化





黑色竹子构成的笔触艺术装置,“悬浮”于白色的空间中。通过竹子的疏密排列,构成浓淡相宜的立体笔触。




随着时代不断前行,当新式茶饮延续了茶文化的生命,MOC DESIGN也与喜茶一道探寻传统文化与当下年轻人连接的更多可能。
项目名称: 喜茶郑州正弘城茶空间店
项目地址:中国 郑州
项目面积:250㎡
设计单位: MOC DESIGN OFFICE
主创设计:吴岫微、梁宁森
完成时间:2018.11
项目主材:白色铝单板,竹子,镜面不锈钢
装置制作:藝和園
项目摄影:直译建筑摄影
好设计网 www.haoooo.cn 欢迎投稿:infohaoooo@163.com
好设计网 www.haoooo.cn欢迎投稿:infohaoooo@163.com
