内利森砖艺术展示馆,演绎“砖美学”

Architectengroep PSK, UAU Collectiv / 比利时
2019-05-09

内利森砖业由一家石厂构成,自1921年以来一直在附近的采石场运作,该公司从一家小规模的家族企业转变为一家现代化的国际公司。公司增长迅速,成为砖业先锋的雄心要求它建造一座高性能的建筑,所有的产品都可以得到专业展示。这条野心之路造就了一个复杂而创新的建筑,共分为三个部分。

1.jpg

2.jpg

3.jpg

理念

底层呈U形向街道开放,对游客来说是透明的。接待处和几个行政办公职位在。较高的层具有平行四边形的形状,中间有一个开放的空间。这层陈列室可以围绕开放空间组织一场游览。顶层仍然以U字形提供行政服务,向工业用地开放。通过交错地将这三层放在一起,内外部空间合并。

4.jpg

5.jpg

6.jpg

7.jpg

综合体成为公司的新名片,国际形象也被转译成内部概念。在博物馆式的参观中,参观者发现砖成为了艺术品,这在真实和虚拟现实中都是如此。

8.jpg

9.jpg

10.jpg

体验

这家家族公司的第四代希望体验在新建筑中占据中心地位。体验是为了游客,但当然也是为了雇员。在初步设计过程中,开展了一项基于所有服务和个人雇员的项目研究,改进了现有的工作场所,并在讲习班中概述了各种不同的设想。这除了是建筑的积累外,还作为各项方案的积累。

因此,底层的内部服务部门以开放式景观办公室的形式获得一个中心位置。除了开放的一面,也注意隐私,创造自在的气氛。高质量的材料创建了抓人眼球的办公环境,家族企业为此感到自豪。家庭气氛也通过等候区的视频墙牢牢吸引住人。员工的工作状态在这里都会呈现给来访者。不同游客的流线在底层是分开的。例如,单独的入口,招待司机受到咖啡角的热情服务。

11.jpg

12.jpg

13.jpg

一楼的陈列室是以博物馆的路线为基础展开的,但除此之外,还根据人们希望进行的对话类型,提出了各种咨询方案。咨询室与工作区、豪华酒吧为公司构成了一个重要的会面场所。除了砖的触觉,体验也促成了客户的数字体验之旅。一个特殊的应用程序被开发出来,人们可以在展厅里找到最喜欢的砖石。除此之外,还有几个触摸屏,帮助访客在体验参观结束时能够得到选择的石头的概述。在180°屏幕上,可以在建筑模型中实现,可视化整体呈现惊喜。

14.jpg

15.jpg

16.jpg

17.jpg

顶层是大部分的办公室,以玻璃墙呈现开放的氛围。透明度在体系结构和工作环境中都发挥着重要作用。各种办公室设计舒适,有开放的壁龛,用于个人物品或装饰。这层楼还另外设置两间更衣室。

18.jpg

19.jpg

20.jpg

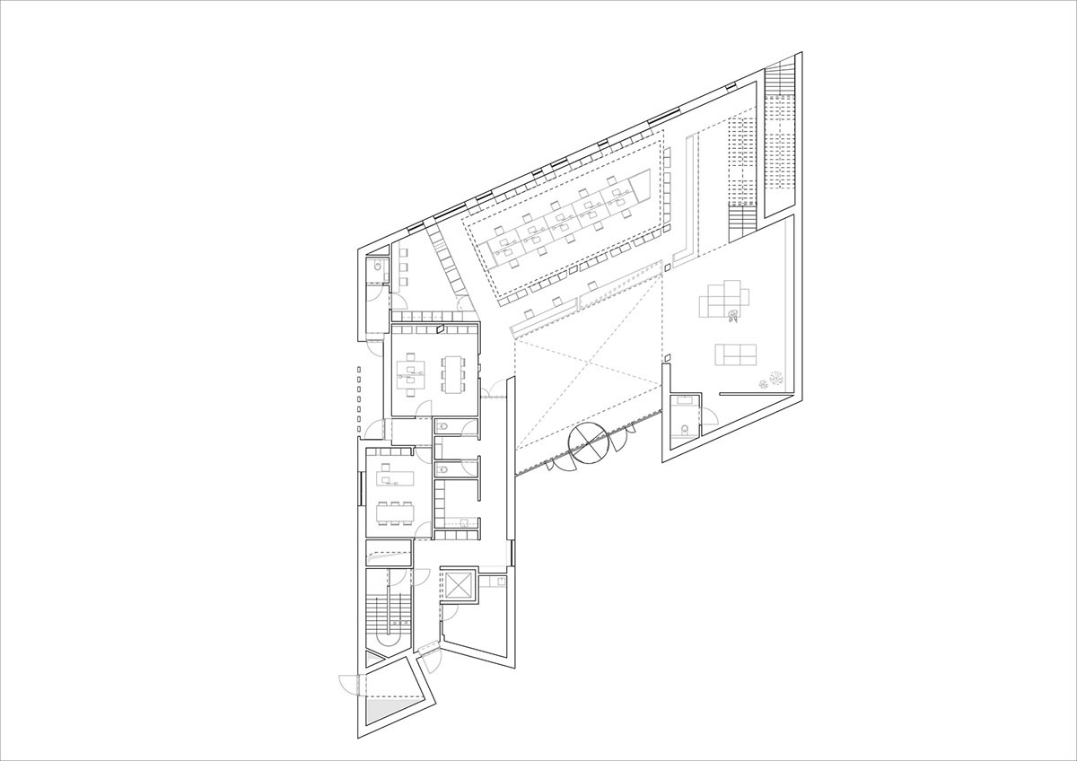
▲ 一层平面图

21.jpg

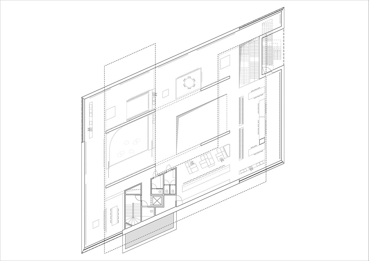
▲ 二层平面图

22.jpg

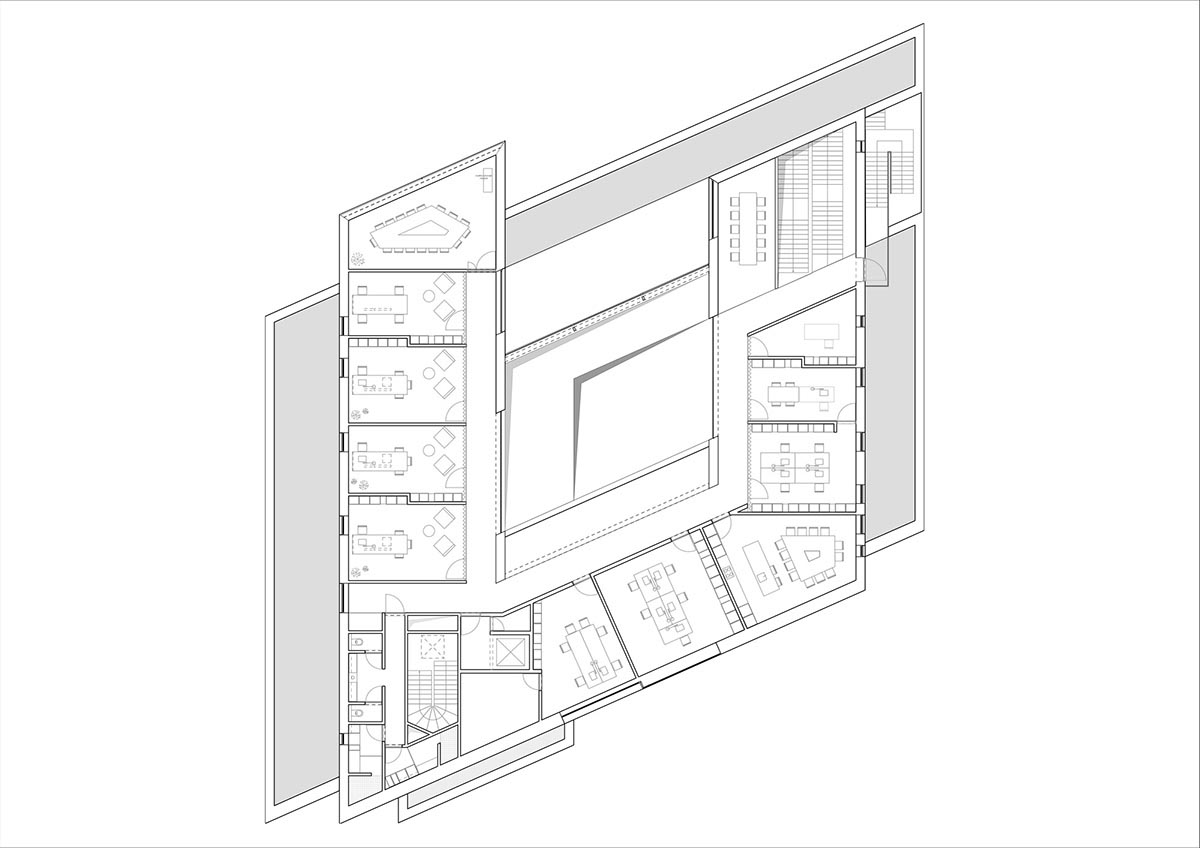
▲ 三层平面图

类别:办公设施

建筑面积:2143.0 m2

地址:Lanaken, 比利时

建筑师:Architectengroep PSK, UAU Collectiv

主创建筑师:UAU collectiv - Massimo Pignanelli, Tom Latet & Anne Geerits, Architectengroep PSK - Guido Ieven, Ward Crabbé & Marc Verheylewegen

摄影师:Philippe van Gelooven

项目年份:2019

厂家:Kalwall®, OWA

结构承包商:Gebroeders Caelen

设施承包商:Herwey

承包商:First Impression

HVAC承包商:Imtech Belgium

电气承包商:Maintain Elektro

电梯承包商:Schindler

窗户样式:Merode Interieur

家具:Marres Interieur

媒体:Primetime Communication Group

结构工程师:V2S

市政工程师:IKP Engineering

咨询顾问:V-consult

调查员:Patrick Janssen

好设计网  www.haoooo.cn      欢迎投稿:infohaoooo@163.com

好设计网  www.haoooo.cn
欢迎投稿:infohaoooo@163.com