澳大利亚邦迪海边Totti’s餐厅,营造宁静舒适的氛围
Akin Atelier / 澳大利亚 新南威尔士
2019-05-25
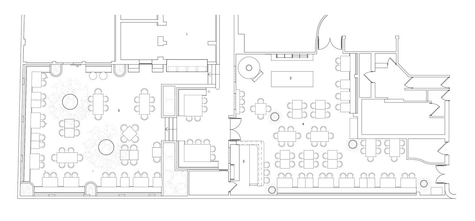
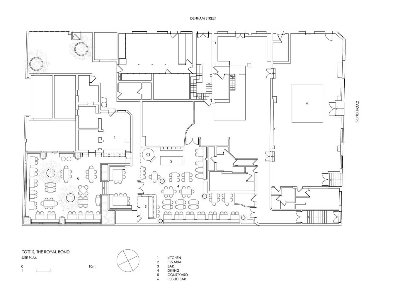
Akin Atelier设计位于了澳大利亚新南威尔士邦迪的Totti’s餐厅,185个座位的空间由两个主要用餐空间组成。小酒吧是一个超大的白色粉刷空间,裸露的木质横梁天花板和空隙让房间沐浴在自然光中。



酒吧通向Totti’s庭院。户外空间采用了一种宁静的色调,主要由沐浴在阳光下的白色和绿色组成,透过重建期间栽种的两棵50年树龄的橄榄树,营造出与邻近住宅区的私密性。









▼ 平面图


项目名称:Totti’s Restaurant
项目类型:餐饮空间/餐厅
项目面积:395平方米
项目位置:澳大利亚新南威尔士
设计公司:Akin Atelier
设计团队:Kelvin Ho
摄影:Murray Fredericks
完成时间:2018
好设计网 www.haoooo.cn 欢迎投稿:infohaoooo@163.com
好设计网 www.haoooo.cn欢迎投稿:infohaoooo@163.com
