西班牙AM红砖住宅,赋予了空间生命和色彩
Horma / 西班牙
2019-06-01
该住宅最初由两个主体组成——与主立面相连的住宅和占据基地底部的谷仓。在它们之间,其他空间元素随着时间的推移而出现,填补了必要的空间。

为此,天井将成为主要元素,能够照亮、连接空间,并赋予了房子必要的特色,在过去、现在和未来之间建立对话。一层是公共空间,整个地块的大小为5米宽和22米长。



立面没有改变现有的空间节奏,只是干预底层窗户的深度,用一个有植被的露台取代了原来的,改善了住宅的私密性,同时可以让整个公共区域通风。在材料上,住宅采用中性色调,强调自然光和原始元素的几何形状,为庭院留下了独特之处,庭院由垂直砖砌而成,贯穿整个表面,种植着丰富的植被,赋予了整个空间生命和色彩。因此,砖、植被和自然光等主要元素造就了这个空间。











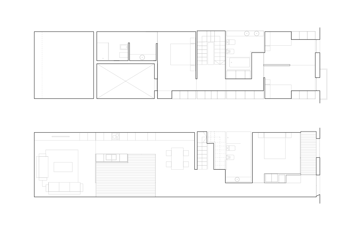
▼ 平面图

▼ 剖面图

▼ 轴测图


项目名称:AM House
项目类型:住宅空间/私人住宅
项目面积:240平方米
项目位置:西班牙
设计公司:Horma
摄影:Mariela Apollonio
完成时间:2018
好设计网 www.haoooo.cn 欢迎投稿:infohaoooo@163.com
好设计网 www.haoooo.cn欢迎投稿:infohaoooo@163.com
