北京BMLZ别墅,庭院式办公场所
该项目是为一家建材公司设计的建筑综合体,该建材公司主要从事进口地毯和家用吸音材料等方面的贸易。这是一个改造项目,现有建筑共四层(包括一层地下室),我们对其进行了更新和扩建。


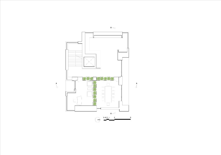
由于一层地面的情况不同,地下室的南侧设有开放式空间,而北侧则常年照不到阳光。在进行扩建部分的设计的时候,我们需要仔细考量推敲,以免破坏现有空间的自然采光。为此我们研究了很多模型,例如几个中空体量围绕着一个中心庭院排布或是分散式的体量布局,最终我们决定采用一个简单的方盒子体量作为设计主体。因此,一方面,建筑的外型就像是一个在墙上和屋顶随机开洞的简单方盒子,另一方面,四个分散的庭院也丰富了建筑平面构成。



因为小庭院的开洞受到限制,故而身处其中的我们时常有一种置身于室内的错觉,然而与此同时,我们还能看到大树,享受到透过树叶的阳光,这时就又觉得自己是处于室外了。当然,现有的空间都能享受到充足的阳光。这也就表明,室内和室外发生了有趣的互换,或者说,室内外空间完美地融为了一体。






一层办公区域的天花板被设计成了锯齿状,为了将原有的屋梁隐藏起来,我们在天花板上安装了假梁。我们将灯光设置在了天花板的凹角上,当用户打开电灯照明时,灯光便仿佛来源于锯齿状天花板,不仅为办公室空间增添了一抹韵律感,也使办公室充满了充足且均匀的光线。




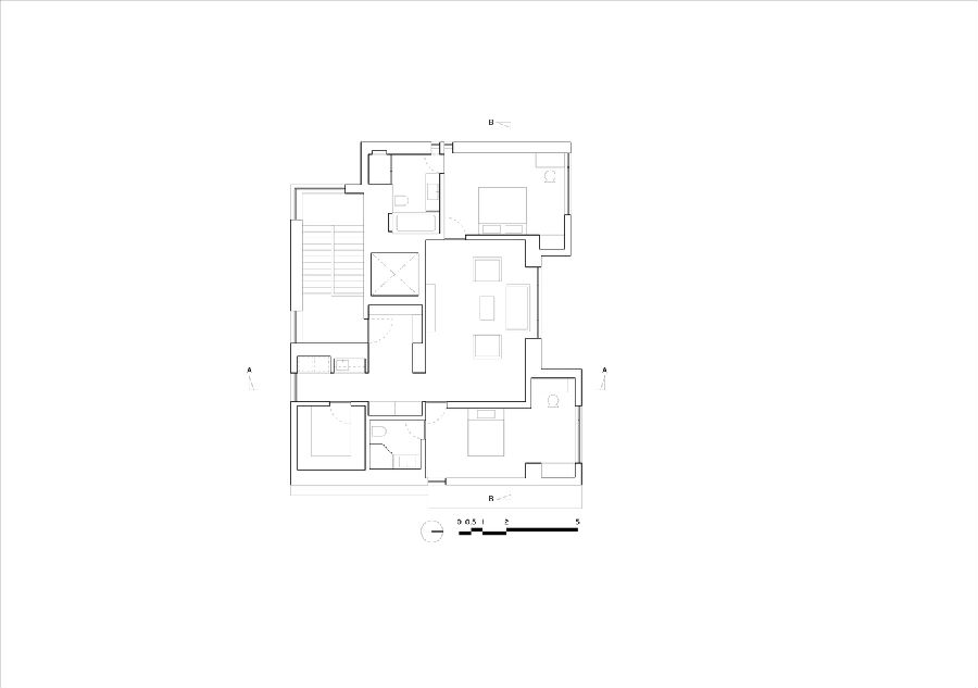
建筑的二层则是画廊、会议室和董事长办公室,所有房间都通过玻璃隔板来进行分隔,变成独立的一部分。这些玻璃隔板形成了凹凸的折线形,同时隔板形成的凹型空间中央挂着生机勃勃的常春藤。在走廊黑色玻璃的映衬下,不规则的凹形玻璃反射出室内的景色,同时给用户的日常生活增添了些许不平凡的色彩。




建筑的三层则是以灰色为基调的简约居住空间。间接照明布置均匀,照亮了墙和天花板,使室内空间笼罩在一层暖光之下,营造出一种舒适的居住氛围。














客户:BONUS&LAMBIENT
建筑面积:740.0 m2
地址:北京,中国
建筑师:Tsutsumi & Associates
设计团队:Yoshimasa Tsutsumi, Siming Li, Weiwei Shi, Lin Song, Jun Cui
照明设计:Lightmoment Co., Ltd (Keigo Tanaka, Yoshihiro Kanamori)
设施规划:北京东洲际技术咨询有限公司(Hoshiaki Ishikawa, (Hoshiaki Ishikawa, Katsunori Takebayashi, Ryuji Yamazaki)
结构设计:北京炎黄联合国际工程设计有限公司(Liansheng Bao, Yanhui Liu)
摄影:Hiromatsu Misa, Yuming Song
厂商:BASF, Bosch, Toto, Tandus, York, Union, Agrob Buchtal
项目年份:2017
好设计网 www.haoooo.cn 欢迎投稿:infohaoooo@163.com
好设计网 www.haoooo.cn欢迎投稿:infohaoooo@163.com
