古鲁奇作品,Menya Musashi,面屋武藏
古鲁奇 / 杭州
2018-07-05
项目描述来自建筑师:古鲁奇设计团队在杭州所打造的“麺屋武藏”来自日本东京,作为日本拉面界的殿堂级名店,此次落地杭州,设计者用简约的线条去演绎日本建筑层迭的屋檐,再将空间重新划分与组合,试图将日本日落时分挂满灯笼的老街带入这间面屋之中。


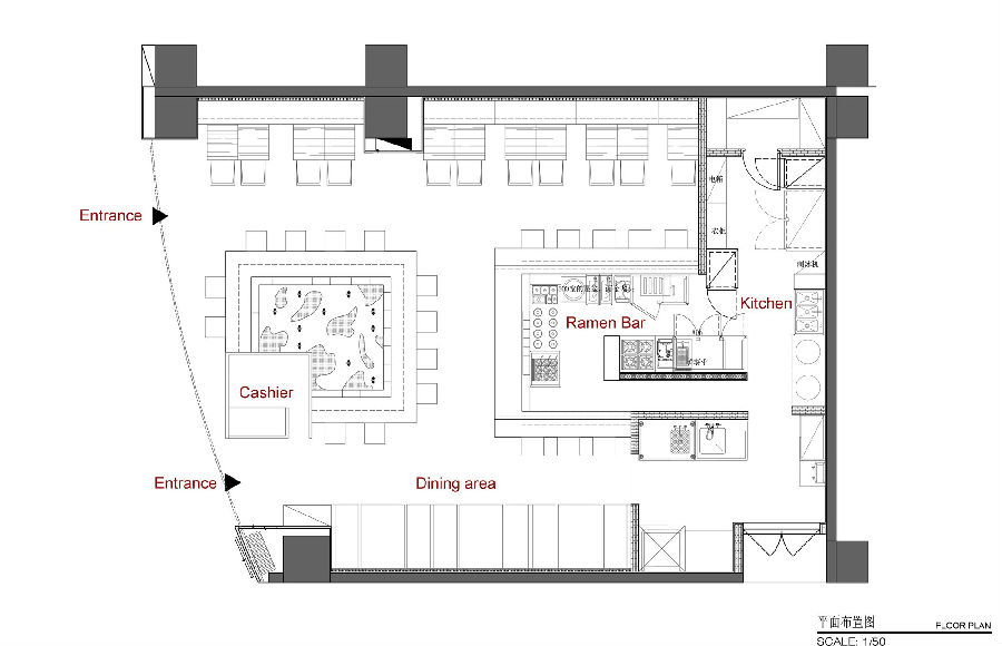
进入店内大量的木格栅,木色与白色的使用,带来了强烈的日式风格冲击。中央的环形就餐台,用苔藓与石块营造出千山万壑的枯山水微景观。这个区域之中不仅将空间的关系带来的生动的点缀,也让人与食物,与空间的发生了更多情绪上的互动。







与大多数日本拉面馆一样,麺屋武藏也采用了开放式的厨房,不同的是厨房与明厨相互隐现,横帘内热火鲜料地煮面使得食客多了一份期待,布帘外的明厨,厨师精湛技艺的展示,使得食客与实物和烹饪者之间多了更多的互动,或欣喜,或惊羡。



如同深夜食堂那般,围炉而坐的人们各有各的故事,却因这一份美食聚集于此,共同感受屋檐下这碗面的温暖。




面屋武藏作不僅僅是想要為食客提供美味的實物,古魯奇的設計也並不僅僅是完成一個尋常的餐飲空間的。我們更想為都市人提供一種狀態——生活——在繁忙的工作之餘,在一碗熱氣騰騰的食物之間,還可以串聯進相聚,串聯進互動,串聯進情緒與情感的渲染。



哪怕只是一碗面的時間,我們也希望可以慢下來,得到一個輕緩的呼吸,一個片段的白日夢境!重迭的屋簷,錯落的居所,橫簾下的一碗美味拉麵。
好设计网 www.haoooo.cn 欢迎投稿:infohaoooo@163.com
好设计网 www.haoooo.cn欢迎投稿:infohaoooo@163.com
