意大利摇摆住宅,在周围环境中体现特色
摇摆住宅是一个家庭住宅建筑。建筑位于一块拥有复杂环境的场地,距离米兰50公里,因其周围的多层建筑而突出。

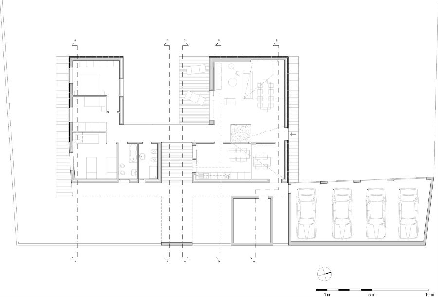
由于这种混杂,房子试图保护自己尽可能减少对外开口,以补充较大或较小的露台,封闭而又开放,以更合适的方式为内部空间提供充足的光源。

建筑外覆层重申了这一原则。 加拿大的灰色花岗岩覆盖整个建筑物,象征着保护的想法。

建筑物向上打开的形式:
屋顶折叠的间距寻找提供了天顶光,在客厅、厨房和尽头的“冥想室”中产生三个光堆。
屋顶的间距交替,“摆动”着屋顶部分的线性空间。


所以在内部空间中,光的重要性被强调。 从类型学的角度上来看,该项目根据家庭结构的变化和近代生活空间的使用,来调查新的组合可能性,这些变化似乎近年来发生了根本性的变化。

意大利建筑师 Cesare Cattaneo在“基督教家庭的住宅”中假定建筑生物的增长假说; 在我们的时代,家庭演变的设定的新范例,需要深入反思该新类型的住宅模型的地位。

方案的提出还设计到了房屋的一些关键空间,而且具有能够在将来生长的空间结构中生长的生物体,以适应未来的布局。

因此,该项目不是完全饱和的建筑体量,以矩阵的方式,有计划的留下一定空隙,并沿着南北轴布置房间,等待完成并且在未来再添加的方式利用这些空间 。

材料产品描述. 建筑覆盖重申了这一原则。 加拿大的灰色花岗岩覆盖整个建筑物,象征着保护的想法。





地址:Como, 意大利
建筑面积:150.0 平方米
建筑师:ifdesign
景观建筑师:Franco Tagliabue Volontè, Ida Origgi
厂家:Vetro G, Lombarda Graniti, Mutina
好设计网 www.haoooo.cn 欢迎投稿:infohaoooo@163.com
好设计网 www.haoooo.cn欢迎投稿:infohaoooo@163.com
