杭州天目山民宿,简单、舒适而朴实的居住环境
场地概况:本项目坐落于风景秀丽的天目山南靡大有村,民宿依山而建,青翠缭绕,建筑由一幢2层老式木结构瓦房和一幢2层混泥土结构新建房组成。设计的目的是将此打造成一个集会议、居住、餐饮、休闲为一体的综合民宿度假空间。
▼ 改造前外观

现状分析
场地中有三大场域特点,一是新旧共存的建筑结构和肌理,旧的木构、泥墙、黑瓦,新的钢筋混泥土、落地玻璃、屋顶花园,一新一旧,共同构成了本项目丰富而独特的空间感受;二是裸露的崖石,新建场地开挖露出的崖石突显在空间内部,沟壑纵生的崖石肌理增添了一份自然狂野。
▼ 新旧建筑共存

▼ 裸露的崖石

设计策略
对于老式木构建筑,考虑到其独特性,改造以保护和尊重其原有的外观和结构为基础,保留和修复原建筑夯土墙,门窗适当优化以改善室内采光和通透性,提高居住质量;结构上在一层通过加固钢结构来应对因植入新的生活的空间而增加的荷载需要。对于新建建筑,充分保留场地特色,突出其自然野趣,加大玻璃面,强化视觉景观。内部装饰设计既要突出传统的乡土性和趣味性,又要满足现代居住的舒适感。总体空间材质以传统夯土泥墙面、浅色艺术漆,灰色水磨石,及木色为主,营造简单、舒适、朴实的居住环境。
▼ 改造后外观





接待
在对建筑主体结构及材质进行保留和修复的前提下,根据功能需要,重新规划内部空间,拆除原来内部墙体,将客房分立两边,入口接待、等候、休息等功能居中布置。置入的黑色钢结构、白色楼梯、木色书架、竹子格栅等多样材质及造型,在强调新旧对比的同时,也求得不失平衡和融合。
▼ 接待前台



▼ 置入的白色楼梯

休闲区
我们将餐厅、水吧、书吧、会议、休闲等多种公共空间置于新建房的底层,这样既符合功能流线、满足来客的生活需求,同时还能充分利用和展现其裸露的崖石景观,营造自然野趣的公共空间,也以此希望除了为来客提供舒适的居住体验,还可以提供更为全面、有趣的生活体验。


▼ 围合的书架墙面,给古朴的空间增添了一份雅静





客房
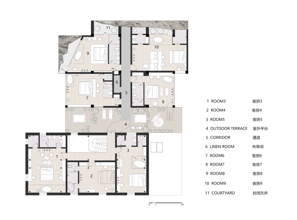
根据业主需求我们设计了九间不同布局的客房,其中老房区五间,新房区四间,老房区的客房设计原则是以保留和修复原来基础结构、泥墙肌理为前提,适当加大窗户,改善采光,增加舒适度,优化室内居住环境,营造传统的生活氛围。







新房区设计上强调将外部自然环境引入室内,一方面充分利用现有条件,挖掘和凸显场地崖石景观野趣的特点,另一方面通过加大玻璃面,强化视觉景观,将外部自然景色引入室内,获得一种自然、舒适、野趣的居住体验。


▼ 裸露岩石的引入室内,增添一份野趣







▲ 总平面图

▲ 一层平面布置图

▲ 二层平面布置图
项目名称:天目山民宿改造设计
项目地址:杭州·临安·天目山大有村
项目面积:1000m²
设计公司:杭州巨合建筑设计事务所
主要材料:夯土墙、木饰面、水磨石、艺术漆
好设计网 www.haoooo.cn 欢迎投稿:infohaoooo@163.com
好设计网 www.haoooo.cn欢迎投稿:infohaoooo@163.com
