陕建菏泽广州路壹号院,令人惊喜的光影色变化空间
随着中国快速的城市化进展,越来越多的开发商开始进入三四线城市拓展市场,展示中心成为各个开发商展示其品牌实力和设计理念的重要载体。开发商希望通过优秀的展示中心的设计来吸引客户并对其产品的销售起到重要的推进作用。

▲ 事建组创始人温群老师手绘

大部分展示中心往往功能单一并在完成其售楼功能后往往面临被拆除或者重新改造的结果造成严重的资源浪费。

本项目是对展示中心这一特殊功能的建筑进行重新思考并希望通过设计使其更为可持续并成为未来社区以及城市的公共建筑。




本项目位于菏泽市开发区广州路与闽江路交汇处,由于其特殊的区位,希望通过人性化和可持续的理念为当地居民提供一个令人感动的城市公共空间。

▲ 温群老师的手绘大镜头





建筑理念以上世纪二十年代反应当时的社会及技术变革的艺术形式至上主义为原型,意在表达信息时代物理空间及虚拟空间之间相互影响且相互依赖的关系,信息时代生活中越来越多的行为在非重力状态下网络中的虚拟世界中完成。




因此建筑中的物体被设计成一种不稳定的漂浮状态。

有的物体在空间中与玻璃外表皮碰撞并留下痕迹形成独特的建筑形象。


建筑立面采用通体高透的超白玻璃的运用使得整个建筑内部的物体、空间、材料、色彩对外部城市空间一览无余,形成了一个区别于传统售楼处建筑并且充满活力的城市公共空间。


空间中大量使用了不同反光度和肌理的不锈钢金属板,形成空间中人与空间、物体、光、影像、色彩和材质变化丰富的互动。在空间中每时每刻都会体验到令人惊喜的光影变化,仿佛置身于虚拟世界。



本项目作为对现实世界中售楼处这一特殊的地产现象的重新解构和思考,试图通过设计摆脱售楼这一单一的功能,让其能够更多的为当地的民众服务,提升公共生活品质,引领人们对未来美好生活的向往为社区做出积极的贡献。



▲ 总平面图

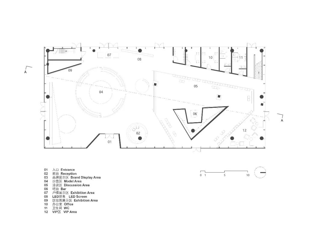
▲ 首层平面图

▲ 二层平面图

▲ 立面图

▲ 剖面图

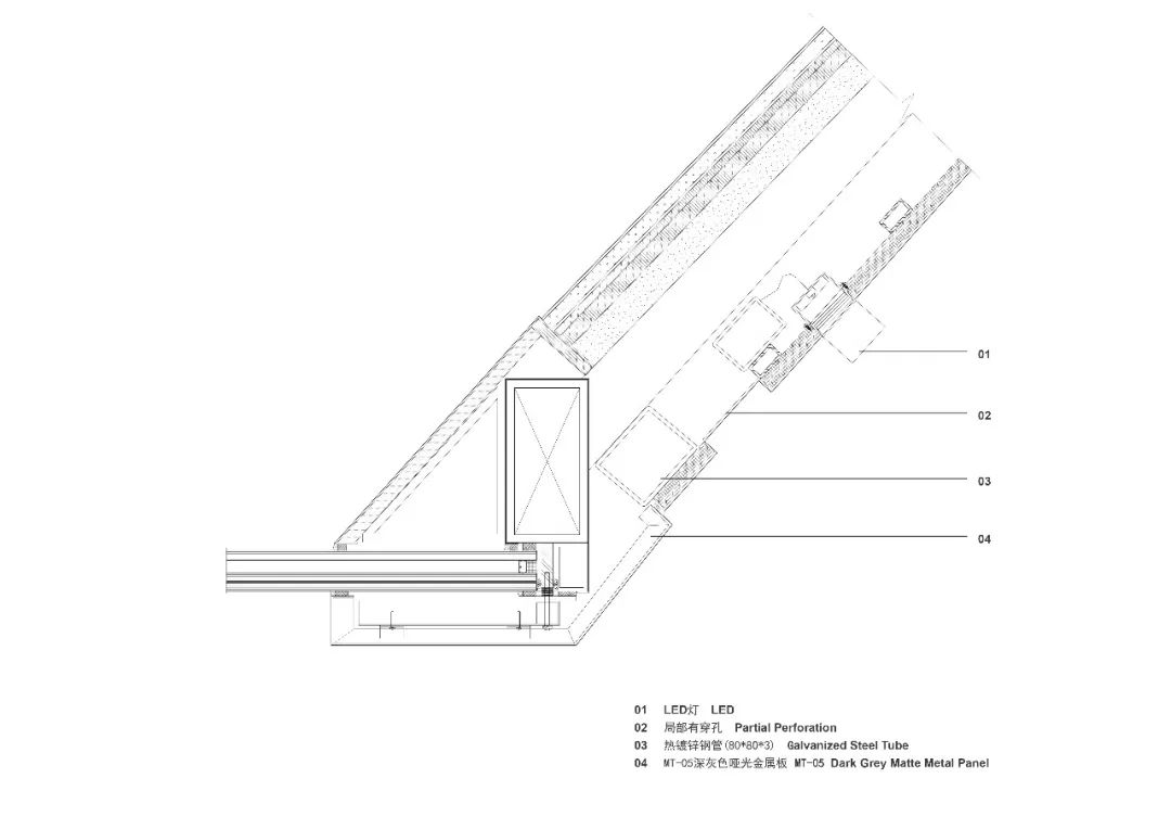
▲ 主入口节点图

▲ 沙盘区节点图
客户:陕西建工集团有限公司
建筑面积:1560m²
项目地址:山东省菏泽市广州路与闽江路交汇处西南角
主创及团队:温群霍明旺、李根、杜婧、刘晨、杨开琦 、常晓丹、牛卓君
合作方灯光设计:Puri Lighting Design
结构配合单位:山东大卫国际建筑设计有限公司
品牌蜂窝板:美斯乐(北京)家居装饰有限公司
不锈钢:佛山市正采不锈钢有限公司
吸音板:Gabriel 加布里埃尔,上海彩缤实业发展有限公司
摄影版权:黄礼刚
设计/完成年份:2018 – 2019
好设计网 www.haoooo.cn 欢迎投稿:infohaoooo@163.com
好设计网 www.haoooo.cn欢迎投稿:infohaoooo@163.com
