飞逸视觉摄影工作室,一场回归自然的梦幻旅行

青水空间设计 / 中国 合肥
2019-08-05

与其拍摄一个东西,不如拍摄一个意念,与其拍摄一个意念,不如拍摄一个梦幻。——曼.瑞

1.jpg

当十年前第一次看见蜷川实花和James casebere的作品,我被惊艳了……而这种记忆一直在我脑海,直到遇见这样一次项目机会——飞逸视觉摄影工作室设计!

希望在空间中折射出不同摄影大师的作品,就像一种影子或者思绪,哪怕是一瞬间,将他们对光,空间,自然,色彩的捕捉和艺术化能呈现在这样一个摄影工作室中。

“摄影家是一个旅行者,穿梭于主观与客观两极间的艰难旅行中,只要需要,就可以在任何地点停下脚步去开拓未知的领域–细江英公”

海洋, 星空,水波,壁桓,我们开始一场回归自然的梦幻旅行……

2.jpg

▲ 入口空间

海洋是生命的起源,入口参照蜷川实花的作品设置亚克力橱窗,营造浪漫的氛围

3.jpg

4.jpg

▲ 走廊空间

星空是梦幻的开始,仰望星空是人们对自然和未知世界的探索和好奇,沃尔夫冈.提尔曼斯的星空摄影是艺术对自然最好的捕捉,设计中通过mini筒灯将星空的符号嵌入天花。

5.jpg

6.jpg

▲ 前台接待

体块的组合变化,丰富的材质拼配可增加趣味的空间艺术,钛金钢板与水磨石的结合,干净而纯粹。

水波与壁桓,自然与建筑在光与影中构成了整个世界,水波纹钢板倒影出建筑的波浪起伏,远处的光线昏暗而明晃,仿佛在召唤前方的人。

7.jpg

▲ 服装展示

“摄影师必须是照片的一部分–纽曼”就像设计师必须是作品的一部分

8.jpg

▲ 拍照互动

半圆与镜面的结合,将空间延伸和闭合,几何形的运用和整体的构图相呼应。引用桑法的一句话“照片就是你的镜子,就是你”

9.jpg

▲ 试衣区

水波纹钢板与镜面组合,无限延长的视觉感受将空间延展和放大。

10.jpg

对于生与死的爱,那就是摄影——荒木经惟

11.jpg

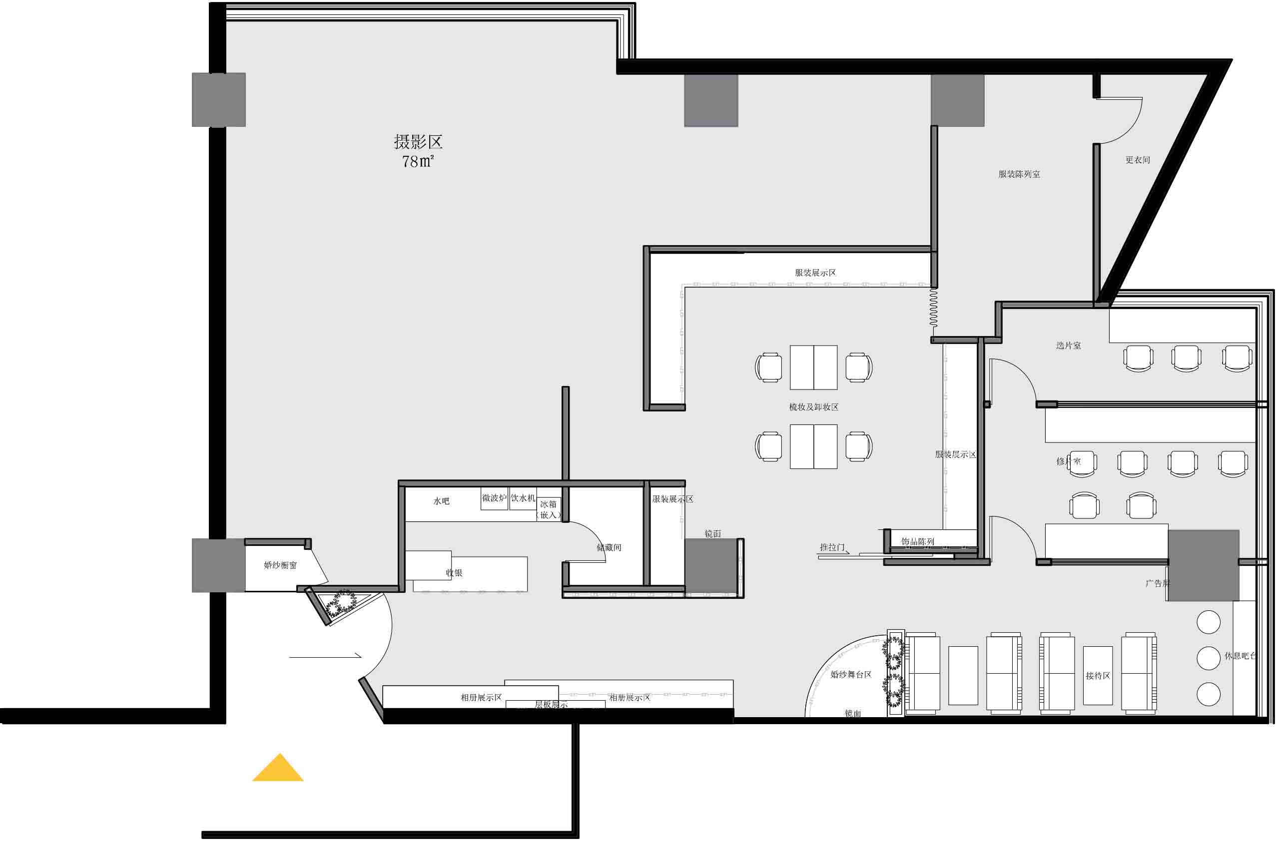
▲ 平面图

项目名称:飞逸视觉摄影工作室

项目地址:合肥之心城36楼

项目面积:200平方米

设计公司:青水空间设计工作室(上海&合肥)

主案设计师:惠天

主要材料:钛金钢板,水磨石,水泥漆

摄影:K11建筑摄影

竣工时间:2019.07.21

好设计网  www.haoooo.cn      欢迎投稿:infohaoooo@163.com

好设计网  www.haoooo.cn
欢迎投稿:infohaoooo@163.com