深圳心海城售楼处,现代空间里的东方诗意美学
这个空间主要是探寻一种现代空间里的东方诗意美学,“随风而逝”。总体格调在一个大的灰色调基础之上,加了一层四种材料组成的格栅表皮,用四种木通过不同尺寸的多层叠加、起伏形成一个有机的空间序列。恰恰是这种如东方水墨晕染的效果,增加了整个空间朦胧而宁静的诗意之美。看似简约的视觉形态里,却有着极其丰富的视觉变化,这便是一种东方哲学含蓄之美的表达方式。运用这种以繁入简的方式把整个空间处理的简洁而富有变化,同时最大化的和建筑之外的景观形成了一种有机的呼应和渗透,正是这种处理方式让建筑由外而内,由内及外的产生了无论是在视觉和情感上连续思维的互动性,情境有融,这也是我们东方美学意识的根本状态,这种根本状态便是现代设计的出发点和灵魂开端。


所以,这个现代空间视觉形态里的一切视觉是要内外相互感知而成,舍弃任何一种因素去审视其实都是有问题的。基于这个基础之上,这层木质水墨渲染表皮才会有其意义,才会有其丰富的朦胧之美,才会有其诗意。相由心造,造心也才会有相,这个也是尝试用现代手法唤回中国传统的审视空间的习惯。先产生心,再有空间,再有内外,再有一切。所以造心便会有相,无心便会无相,更无诗意。


这个抽象的东方诗意空间,体现的是一种随风而逝的婉约之美,安静简约的视觉里有着复杂的结构,宁静的空间里蕴藉着复杂的消逝情感,就如一缕风一样拂过整个空间。这一缕缕有着多种情愫的风,穿过整个空间,然后随风而逝。






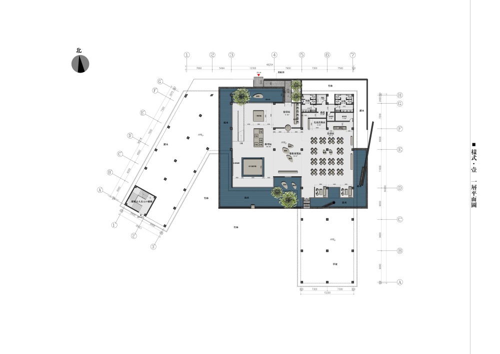
▼ 平面图

▼ 手稿






项目名称:随风而逝
空间性质:售楼处(销售中心)
建筑面积:1930 平方米
项目位置:深圳坪山 心海城
主创设计师:冯羽
设计公司:大羽营造
公司官网:www.devebuild.com
主要材料:科技木
摄影师:马琪
客户:深圳市心海控股有限公司
好设计网 www.haoooo.cn 欢迎投稿:infohaoooo@163.com
好设计网 www.haoooo.cn欢迎投稿:infohaoooo@163.com
