杭州PASTO PAFE意面餐厅,打造充满趣味的空间
本案位于杭州大悦城,我们希望将常规的餐饮商铺打造成一个充满趣味的所在。“与业主的交流过程中情绪和思路相互感染,也被他们执着和善意所打动,自然的出现了案子里的画面,设计由此展开。”

▲ 前场区
在一个空间里,即使纵横关系错杂,也尽量规避超过两种色系的主色。粉色系与墨绿色分布在餐厅的不同区域,相互呼应,视觉效果碰撞却自然。


▲ 卡座区
定制的家具很好的呈现了这次设计的主题。


▲ 吧台与休闲区
圆弧元素的不断穿插以及巧妙变形,使得空间立体活泼,法国风味的热情与浪漫尽显其中。


▲ 收银台区域
收银台使用小马赛克砖,更显精致耐看。圆弧形态的设置以及色块的分割比例,都经过了反复推敲。

▲ 休闲区
马卡龙式的形状配色更是满足了对我们青春的一切幻想。


▲ 陈列墙
趣味墙画呼应了这次的配色关系,活泼点题。
关于配色关系的选择,很多人都知道撞色设计和对比体验,但在实际的运用上经常会面临颜色过于冲突和矛盾的境地,反而使得画面很焦躁。这个时候有个合适的方式就是将配色关系的饱和度都降低一个维度,这样对冲的关系就会相对缓和一些,下一步就是互相调整几个颜色的明度关系,然后慢慢的去平衡彼此的度最后达到最合适的点。

▲ 洋红色的拱形门

▲ 与拱门相邻墨绿色的造型墙

▲ 店内大面积使用的粉色色块

▲ 分解展示图

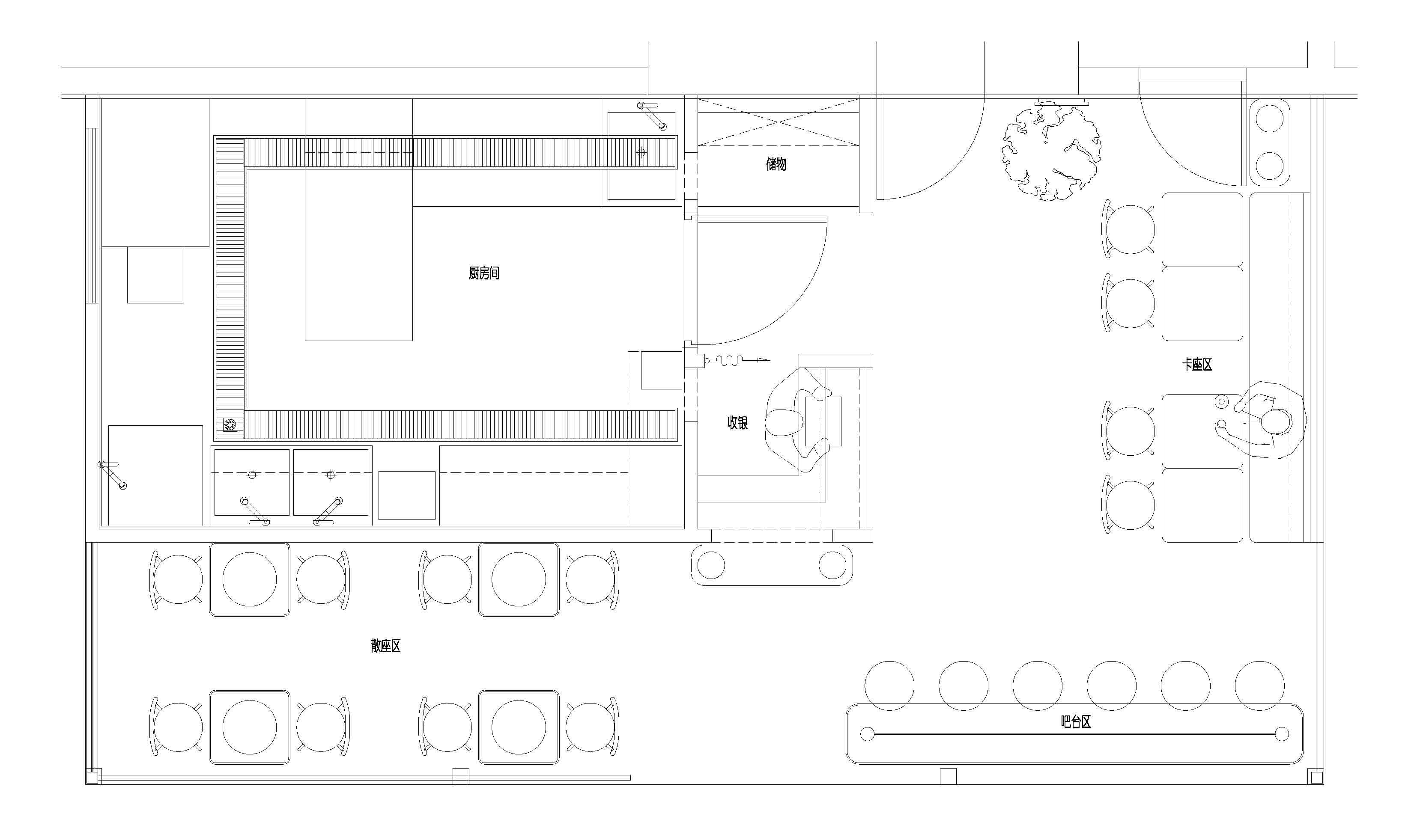
▲ 平面布局图
项目名称:PASTO PAFE
建筑面积:45平方米
项目地址:杭州大悦城6楼
设计单位:DA-STUDIO
主创设计:辛举鹏、顾月宏
摄影师:陈铭
主要材料:水磨石、乳胶漆、绒布、金属板
完成年份:2018.09.10
好设计网 www.haoooo.cn 欢迎投稿:infohaoooo@163.com
好设计网 www.haoooo.cn欢迎投稿:infohaoooo@163.com
