台北南希的LOFT公寓,挑战原始的空间感

Studio In2 / 中国 台北
2019-08-28

“南希的公寓”以其主人的名字命名,曾经接待了一系列幽闭恐怖的房间,但现在有固定装置和家具,有助于“破坏视觉比例,挑战原始的空间感”。在观看电影Honey,I Shrunk the Kids之后,Studio In2受到了大量的启发,试图在公寓内部进行尺寸和空间分布。

1.jpg

2.jpg

3.jpg

工作室敲了几个非承重墙,打开了公寓的平面图。不同的生活区域由略微超大的元素描绘一个大的弯曲的存储单元将入口通道与起居室分开。然后安装了高大的滑动门,遮住了一楼的客房。它们可以向后滑动,露出一扇窗户,厨房和用餐区充满了自然光线。这个空间也可以通过配有LED灯的结构光束照亮,LED灯贯穿早餐岛的中间。

5.jpg

6.jpg

7.jpg

8.jpg

在夹层楼的楼上,一个小房间已被拆除,允许一个短的走道连接主卧室和阅览室。它的前面是玻璃栏杆,可以在公寓的天花板上形成清晰的视线。虽然Studio In2试图通过将表面涂成白色来照亮公寓的其他部分,但卧室的天花板和后墙都采用深色木材衬里,以提供更舒适的感觉。还可以移动一组凹槽玻璃以从邻近的敷料区域关闭卧室。在夹层空间的有限天花板高度上使用一个大推拉门的设计理念也受到16:9电影格式的启发 – 宽度创造了一个大而梦幻的视角,就像看电影一样。

9.jpg

11.jpg

12.jpg

13.jpg

15.jpg

16.jpg

17.jpg

18.jpg

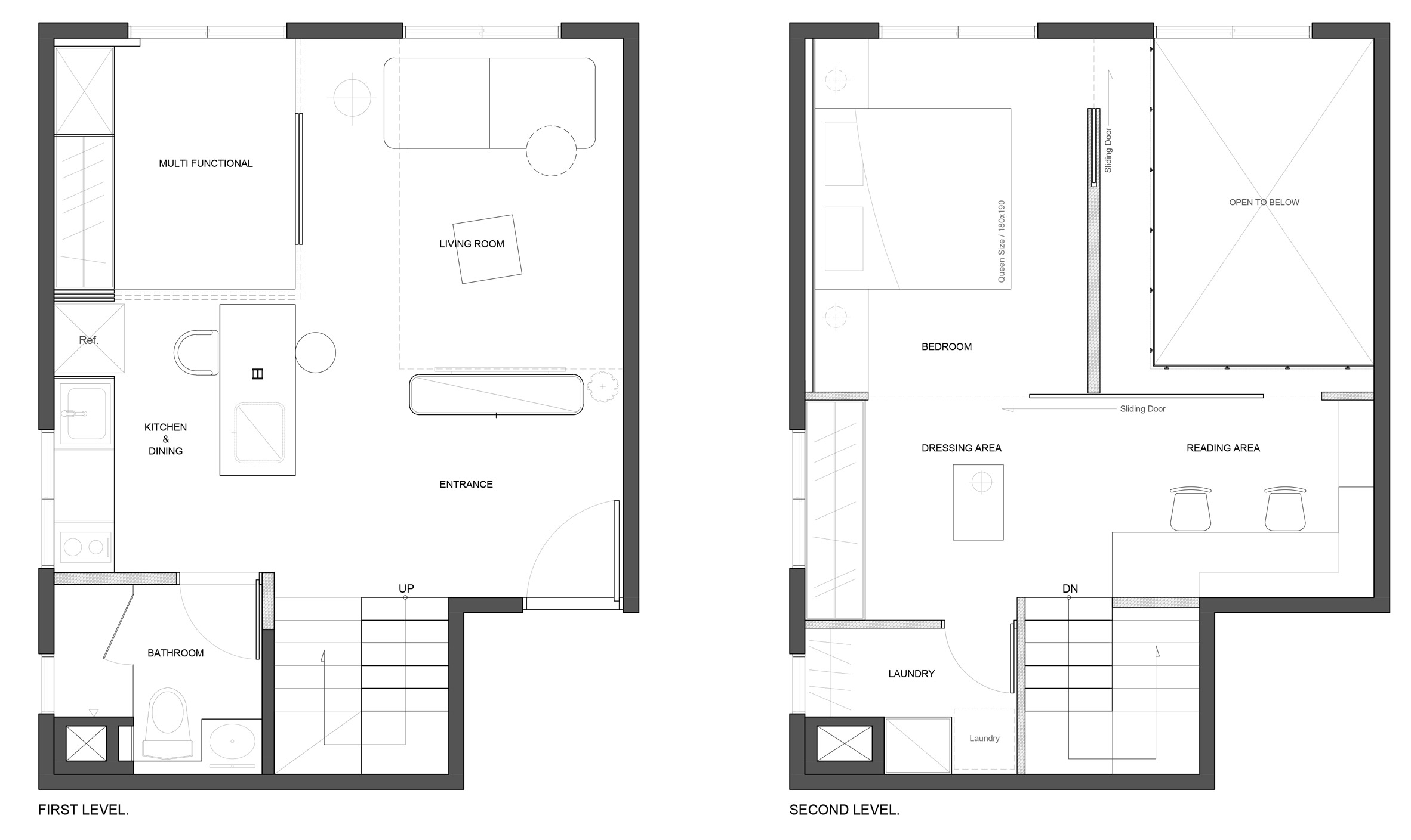
▲ 平面图

空间名称:南希的公寓

空间类型:住宅空间、小户型公寓、LOFT

空间面积:66平方米

空间地址:中国台湾 台北市

设计公司:Studio In2

空间主材:木地板、混凝土涂料、瓷砖、长虹玻璃、磨砂玻璃、超白玻璃、烤漆板、木饰面板、乳胶漆

空间摄影:Jackal Liu

好设计网  www.haoooo.cn      欢迎投稿:infohaoooo@163.com

好设计网  www.haoooo.cn
欢迎投稿:infohaoooo@163.com