北京“共生院”,胡同大杂院改造后的微更新

清筑建筑 / 中国 北京
2019-09-15

“共生院”的实施从单一主体走向多方协作,是深入探索共生院实施模式的有益尝试。位于大栅栏的茶儿胡同22号院便是由多方协作完成,产权主体希望将疏解腾退后的房屋进行有机更新。

1.jpg

▲ 庭院西向人视

2.jpg

▲ 建筑南立面

清筑建筑已经在胡同中尝试实施过多种形式的“共生院”,茶儿胡同22号院是从自主设计运营转向技术输出的一次全新尝试。

3.jpg

 ▲ 西南角人视

茶儿胡同22号院是典型的胡同大杂院,已经有建筑师进行过一次改造,运营主体策划设置的功能与其不同,所以需要进行第二次改造。

4.jpg

▲ 半开放庭院人视

为保证胡同的安静,希望引入高素质人才入住,并控制入住人数。

大杂院若要达到和谐共生,需要院内居民一起商议院落使用,当院落公共区域由居民共同商议达成共识并进行“微更新”后也可有效控制私搭乱建的蔓延。

5.jpg

▲ 通过院落居民共同商议的公共区域设置凉棚

大杂院改造过程中需要与邻里不断地进行协调沟通,以达到与胡同居民的共生。

6.jpg

▲ 建筑与庭院关系

茶儿胡同22号院的再改造充分尊重原建筑师的外立面设计,对胡同风貌加以推敲,在设计上不做变动,与院内居民达成共识,设计凉棚供院内居民使用,室内从实用性出发,以拎包入住为目标。

7.jpg

▲ 东北角人视

清筑建筑在茶儿胡同尝试了多处“共生院”的改造,希望这些改造可以为片区居民带去参考,以期能提升片区的整体居住品质。

8.jpg

▲ 室内望向庭院

11.jpg

▲ A户型客厅

10.jpg

▲ A户型客厅

11.jpg

▲ A户型客厅

12.jpg

▲ A户型客厅

13.jpg

▲ A户型二层卧室

14.jpg

▲ A户型洗手台

15.jpg

▲ A户型二层卫生间

16.jpg

▲ B户型客厅

17.jpg

▲ B户型厨房

18.jpg

▲ B户型厨房

19.jpg

▲ B户型楼梯

20.jpg

▲ 梁架

21.jpg

▲ 梁架

22.jpg

▲ 壁灯

23.jpg

▲ 院落示意图

24.jpg

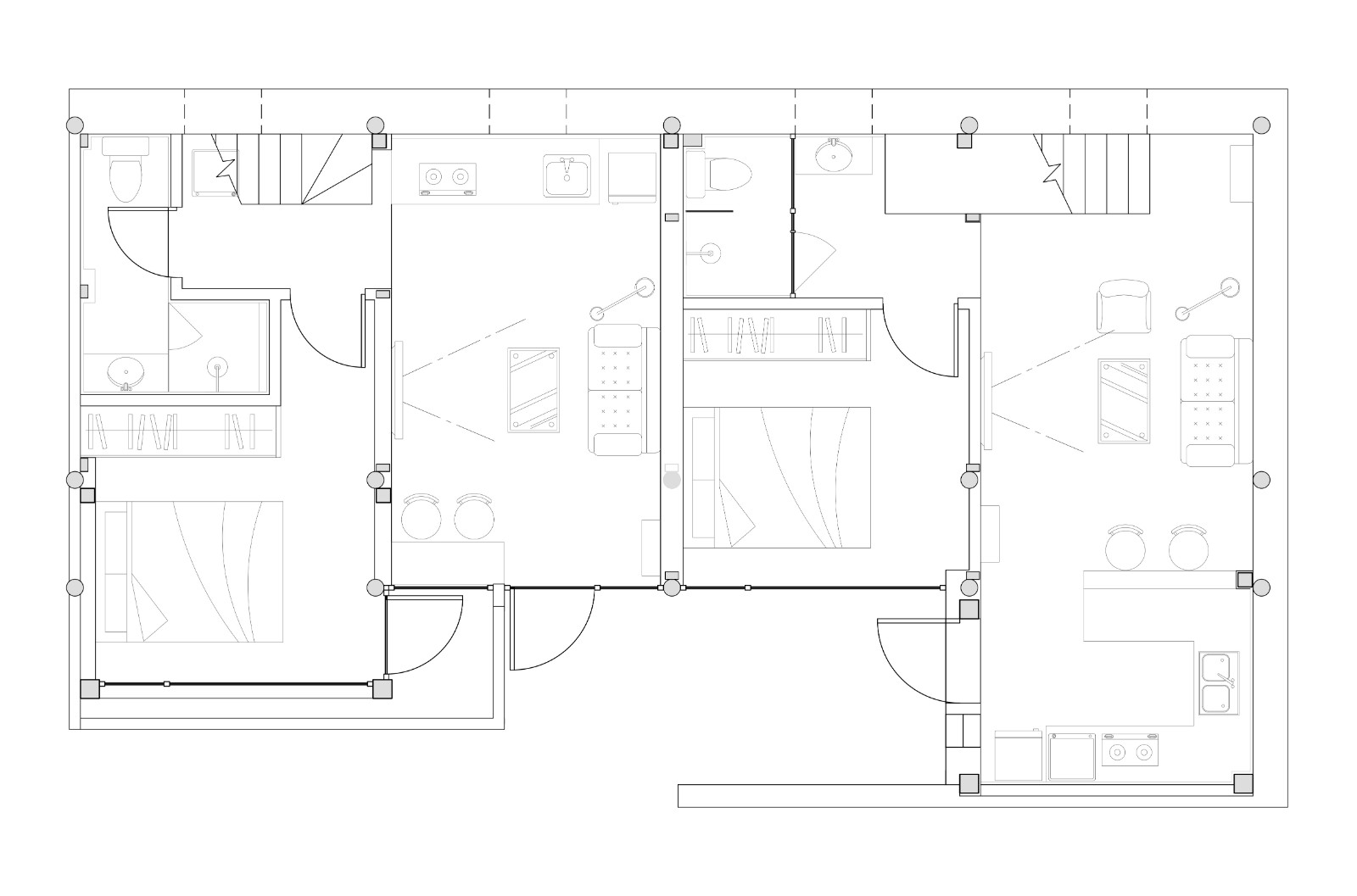
▲ 一层平面图

25.jpg

▲ 二层平面图

项目名称:共生院

项目类型:居住

项目面积:113㎡

项目地址:北京茶儿胡同

建筑设计:刘军,段常续

建筑设计:北京清筑建筑设计有限公司

主要材料:砖、玻璃、瓷砖

空间摄影:刘军

设计时间:2019.05-06

完成时间:2019.08

好设计网  www.haoooo.cn      欢迎投稿:infohaoooo@163.com

好设计网  www.haoooo.cn
欢迎投稿:infohaoooo@163.com