朝日集团员工宿舍 KAEDE,个性的集群居住空间
这是一个为公司单身人士创建的公寓。每个员工都有自己的爱好和生活方式,我们计划把这个公寓打造为一个便于他们建立亲密关系和社区的地方。

▲ 沿街立面

▲ 入口
这块地位于一个老居民区。我们把建筑分成六个体量,建筑一共三层,降低了高度,以呼应周围房屋的比例。

▲ 建筑与居民区的关系

▲ 六个相互联系的体块
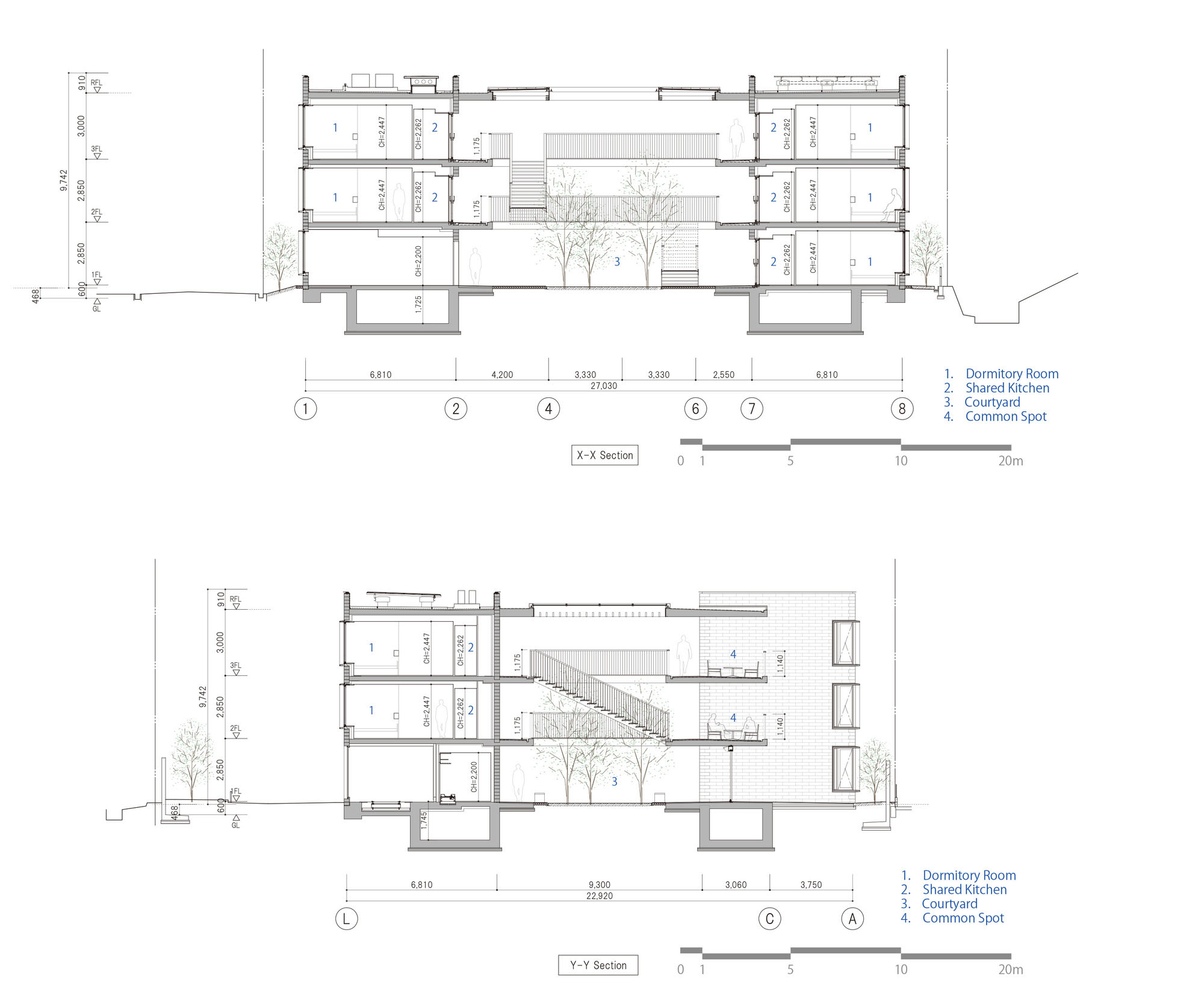
我们围绕着庭院周围布置建筑,并在中间建立了一个名为“公共场所”的开放空间,它将把光和风引入公共空间,成为居民进行交流的第二客厅。我们在那里里打造了成两个小型私人房间和一个共享厨房,人们可以在共享厨房里做饭和吃饭,共享厨房可以通过一扇大的滑动木门向公共空间打开。

▲ 入口立面

▲ 入口

▲ 入口墙面

▲ 庭院天井



▲ 庭院

▲ 从楼梯上看天井上方


▲ 走廊

▲ 共享厨房

▲ 公共空间

▲ 房间
他们可以与朋友在共享空间分享他们在共享厨房制作的菜肴。共享厨房将建立人与人之间的联系,社区将在此形成。公寓有多种空间类型,包括独立的房间、开放公共空间等。我们希望建筑能让每个居民选择一处他们觉得舒适的空间,并与其他人保持各种各样的关系。

▲ 立面夜景

▲ 庭院夜景



▲ 走廊夜景

▲ 总平面图

▲ 一层平面图

▲ 二层平面图

▲ 三层平面图

▲ 屋顶平面图

▲ 立面图

▲ 剖面图

▲ 结构图

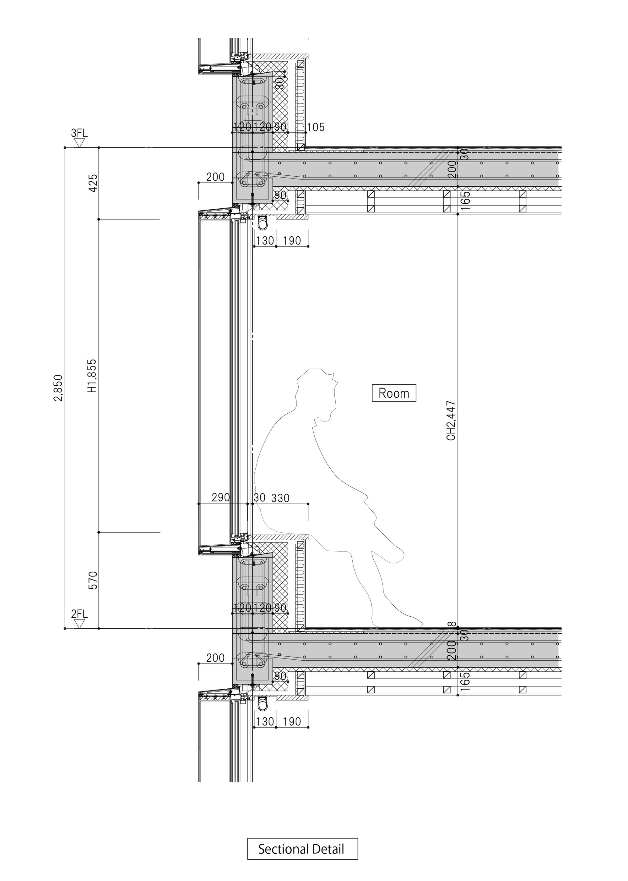
▲ 细剖图

▲ 细剖图
项目类别:公寓
项目面积:1063.12平方米
项目地点:日本,大阪府,丰坂
首席建筑师:河井四雄+靖国神田+大松顺介
设计公司:Takenaka Corporation
空间摄影:Tomoki Hahakura
制造商:Graphisoft、Union、Tamiya
景观设计:Masayuki Mukouyama+Takeshi Tsuchio
客户:Tomoki Hahakura
项目年份:2019年
好设计网 www.haoooo.cn 欢迎投稿:infohaoooo@163.com
好设计网 www.haoooo.cn欢迎投稿:infohaoooo@163.com
