鲁瓦图海景3号房,宛如印度洋上的一顶渔夫帽

Alexis Dornier, Tim Russo / 巴厘岛鲁瓦图
2019-10-23

“海景3号房子”是乌鲁瓦图(Uluwatu)冲浪别墅群的一部分。这座有四间卧室的别墅坐落在巴厘岛乌鲁瓦图的悬崖边的山顶上,俯瞰着广袤浩瀚的印度洋。由于地块的倾斜性质,大型多坡面的木质屋顶覆盖在场地上的整个建筑。

1.jpg

2.jpg

屋顶中央设置了一个宽敞的天窗,照亮了中间宽敞的客厅。当主要的生活空间向室外泳池旁的露台和花园延展时,房子的中央核心与主轴线相一致,从连接逐步抬高的入口台阶开始,贯穿整个生活空间,一路通向大海的方向。

3.jpg

4.jpg

5.jpg

6.jpg

7.jpg

8.jpg

9.jpg

这座别墅拥有一个高耸而开放的环境。建筑没有人们常见的“吊顶”,但揭示了每个房间独特的菱形几何的风格。

10.jpg

房间的划分贯穿整个多边形楼层平面,形成从楼层到天花板和屋顶锥角之间不同的空间形态。这座别墅的特色是由标志性的冲浪艺术家安迪·戴维斯定制的艺术品。

11.jpg

12.jpg

13.jpg

14.jpg

15.jpg

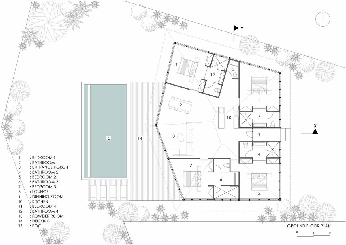
▲ 一层平面图

16.jpg

▲ 屋顶平面图

17.jpg

▲ 南立面图

18.jpg

▲ 西立面图

19.jpg

▲ 剖面图X-X

20.jpg

▲ 剖面图Y-Y

项目类型:度假屋

建筑面积:360.0 m2

项目地址:印度尼西亚,KECAMATAN KUTA SELATAN

建筑设计:Alexis Dornier

室内设计:Alexis Dornier, Tim Russo

项目施工:Bali Construction

合作方:Uluwatu Surf Villas

厂家:FRANKE, Grohe, LG Electronics, Sika, Toto, Acor, Tecnogas

空间摄影:KIE

项目年份:2019

好设计网  www.haoooo.cn      欢迎投稿:infohaoooo@163.com

好设计网  www.haoooo.cn
欢迎投稿:infohaoooo@163.com