圣安德鲁斯海滩别墅,与自然环境的对话
从以往到现在,圣安德鲁斯海滩别墅展示了建筑的持久潜力及其对气候和自然沙丘多样性的反应能力。圣安德鲁斯海滩别墅经过20年的增建和大型扩建、各种调整,加上饱经风霜的铜绿,已融入自然中。结合调整后的景观,成为一个整体的大环境背景。别墅既是起伏的景观的主要框架、又自然成为起伏景观的一部分,根据快速变化的天气模式,通过执行各种阴影序列来即兴并调整其个性。其主要思想是对自然环境的联系和回应,即自然与建筑之间的对话与交流。


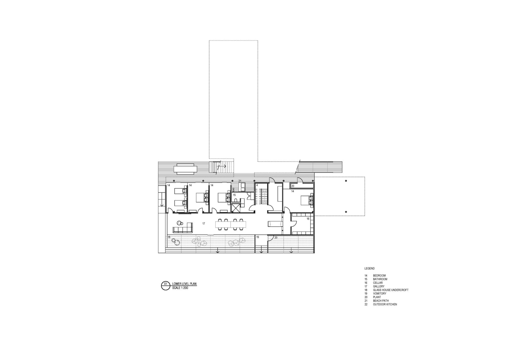
圣安德鲁斯海滩别墅是一个令人信服的案例,随着时间的推移,项目进展缓慢,超出了最初构想的意图。在第一期建设中,住宅被分割成两个主要部分(居住和睡眠),有一个3米的分叉入口,用于横流通风,并在游客到达时向其展示广阔的位置。入口门廊通向一个24米的大甲板,沿甲板全长的是向下台阶,雄伟的规模适当地降落在柔软的沙滩上。通透的主西南面的金属和玻璃立面,在高处吸引着沙丘景观,使室内的每个点都可以感受到压倒性的自然体验。




别墅其余的电枢则是装在一个 Jarrah 雨幕上,雨幕上有旋转和铰链,可以让光线渗透到室内。二期撤退到北面防风区,增设了一块甲板延伸到主入口槽,包括一个游泳池,小屋和远处的温室。渐进式设计的高潮占据了地下空间,在那里,第三个小气候被创造在几乎被淹没的空间。宁静的空间完全被保护起来,这是一个完美的休憩之所,有四个额外的卧室,一个连接画廊和一个内部的温室,占据了楼梯下的空间。在玻璃围墙内,Jarrah台阶支撑着周围的沙子和挖掘过程中发现的软石灰岩巨石。









具有讽刺意味的是,在最后阶段,建筑材料的不断恶化反而激发了室内材料的选择和细节处理。许多生锈的内衬变成了墙面和复杂的细木工构件。稀有的饱经风霜的木材在内部被重新利用。每一个细节都被不断地借用和重新诠释——从内部未经处理的木材衬里的斜边到超大尺寸的45度折叠的钢板楼梯栏杆扶手,这些扶手反过来又成为折叠的书房桌子和柴火仓库。平凡而精致的材料被受侵蚀和弹性的表面彰显,强调世间万物的自然属性。这三期建设使项目达到平衡,让居住在这里的人体验到南方暴烈的天气,幸福的北方日光和保护性的地下遮蔽空间。









▲ 总平面图

▲ 底层平面图

▲ 上层平面图

▲ 轴测图
项目类型:独立住宅
建筑面积:360.0 m2
地址:圣安德鲁斯海滩, 澳大利亚
建筑设计:Woods Bagot
主创建筑师:Nik Karalis
景观设计:Garden Effects
项目顾问:Remato Construction
厂家:Custom made, Archi-Clad, Roderick Vos, Unifor, Edra L Homme et la Femme, Depadova, Graphisoft SE, Knoll Bertoia Side, De Pas, Sheer-Form, Cassina Cab, Everist Timber, Remato Construction
摄影师:Trevor Mein
项目年份:2019
好设计网 www.haoooo.cn 欢迎投稿:infohaoooo@163.com
好设计网 www.haoooo.cn欢迎投稿:infohaoooo@163.com
