海氏国际集团北京办公室,释压主旋律

PLAT ASIA / 中国 北京
2019-11-11

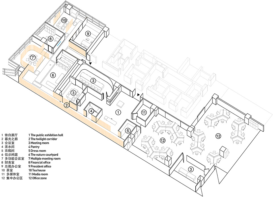
项目位于北京亦庄的高层商务写字楼,是一家跨国企业的北京总部办公空间。空间自西向东由集中办公区,馀白展厅区,暮光之廊区,和信步闲庭区四个部分组成。设计关注办公空间中人的心理感受和释压途径,期望以此实践提出一种面向未来的办公空间设计趋势。

1.jpg

办公空间除了发生创造、输出的行为,产生收获,认可的正向情绪,事实上,负面情绪常会不期而遇。我们的项目就以这种应对负面情绪的目的作为起点,在当代大密度空间、高速率节奏、多信息流量的城市中,面对如何在熙攘忙碌的办公室释放压力,建筑师基于工作这一日常行为进行思考,为了释压,克服消化工作中可能的精神重负,在非日常的场景中更容易获得身心的放松启发了我们,因此,当办公空间能同时激发日常与非日常两种生活方式,负压将得到承载空间。

2.jpg

3.jpg

4.jpg

馀白展厅是进入场地的首个空间,也是和其西侧日常的办公区颇具反差的非日常公共展厅空间。这里集合大小两间会议室,茶水间,衣帽间和多媒体室五个功能体块。这一展厅理念源自业主公司主营业务的启发:贸易是一种易物的过程,其中伴随并最终形成文化的传播和呈现。故此,空间以美术馆中五个独立的混凝土展厅体块为原型,被隐藏入口的体块形成馀白空间,点以长凳和艺术品展台,混凝土表皮的可塑性让展厅空间更具场景化,仿佛置身真实的美术馆,人是空间的主角。极简的结构肌理和灰色调的线条勾勒以宁静的氛围和内敛的处理让人获得一种精神的重置,馀白空间纯粹无焦点,以足够的尺度触发偶然的邂逅絮语和静思冥想的归属感。

5.jpg

6.jpg

作为非日常的另一表达维度,精神的自由度容纳于展厅空间,行为的自由度和多元的交流事件则发生在以自然庭院为理念的信步闲庭区。空间以山水石池为象征底色,阡陌纵横;休闲吧台,多功能会议室,财务室,茶室和总裁办公室秩序性地布陈石池中,分散的石子构建界限也模糊界限,呼应整体性也表达自由性,材料天然细碎的属性让游弋成为空间主旋律。会议室如岛屿般独立于石池,出入一块墨色汀步,格栅闭合可开私密性会议,打开则是开放的多功能舞台,这一共享空间强调了信步闲庭的社交属性;半开放的茶室两侧格栅林立,惬意舒适,虚实之间的通透和私密恰如其分。庭院区贯穿南北的中轴打开视野,区域西侧的VIP入口以走廊形式接入主步道闲庭信步的漫游路径。

7.jpg

8.jpg

9.jpg

10.jpg

空间北侧是俯瞰城市风景,狭长且具有透视感的格栅廊道,从馀白展厅到信步闲庭的室内唯一通道。我们以极致夸张的手法延长这一走廊,沿着玻璃幕墙的整面格栅将城市景观虚化,缓和冰冷的玻璃钢结构大楼立面,将自然光线剪入室内。薄暮时分,阳光倾洒,在地面刻出一道道阴翳,源自自然的时光变幻给穿越悠长廊道以仪式性的行为体验。暮光之廊赋予空间一种精神意象和哲思意味,徜徉其中,带来一种细腻深刻的空间感知,撷珍光影,行驻之间,获得精神的恢复。漫长的走廊也激发出访客对廊道尽头的好奇心,偶发的趣味性给了空间更多想象的可能。

11.jpg

12.jpg

13.jpg

▼ 轴测图

14.jpg

项目名称:海氏国际集团北京办公室

项目类型:办公空间、总部办公室、精品办公室

项目面积:604平方米

项目地址:北京市亦庄大族广场

设计公司:PLAT ASIA普拉特建筑设计

主创设计:郑东贤

项目设计:刘国伟

设计团队:练敬韵、肖东升、刘鑫威

主要材料:木格栅、混凝土涂料、石塑地板、石子

空间摄影:存在建筑-建筑摄影、PLAT ASIA

好设计网  www.haoooo.cn      欢迎投稿:infohaoooo@163.com

好设计网  www.haoooo.cn
欢迎投稿:infohaoooo@163.com