南京“悦舍食单”空间,赋予文人风雅与美味隽永
“悦舍食单”甜品店+茶室位于南京秦淮区“老门东”,因地处城南中华门以东,故称“门东”, 自古就是江南商贾云集、人文荟萃、传统民居聚集之地。历经多年发展,成为集旅游观光、休闲娱乐、文化传承为一体的历史文化街区。


悦舍食单经营“新中式”下午茶,其融合了本土文化、节气食材和现代技法,出品具有东方美味与美学的当代创意甜品。悦舍食单得名源自《随园食单》,其老店地处袁枚的随园旧址附近,新店则毗邻李渔的芥子园旧址。两百多年前居住于南京的两位文人自是赋予了悦舍食单以文人风雅和美味隽永。




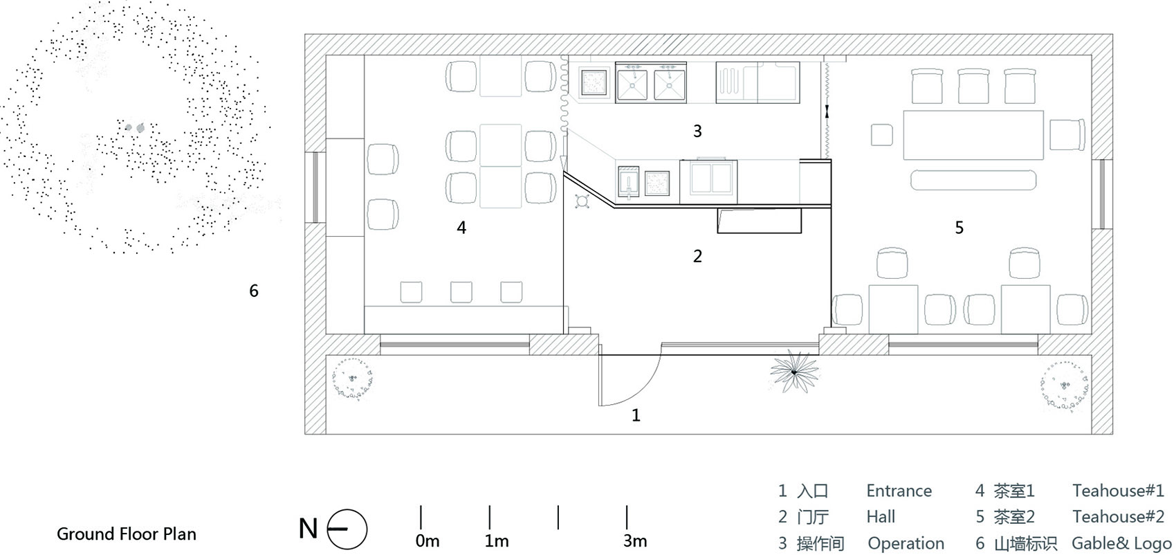
此项目为三开间的传统民居形制,设计在方寸之间强化了三开间的空间格局,入口居中为门厅,后为操作间,左右两间为茶室区域。门厅以微微抬起的白色盒子区隔空间,让两间茶室对望,空间因隔而深远。一扇木门、一个橱窗、一个景窗、一个折叠窗台,以多样通透的方式与巷道、临宅老墙对话。空间就是文人的诗,此设计希望用类似罗兰巴特“一种没有凭借物的语言”的语汇去呈现。

“不下堂筵,坐穷泉壑”,茶室承担文人与自然连接的无限遐想,是其自我逃逸的隐居原型。于今人,尤其是都市人,茶室几近成为从世俗烦扰和日常劳累中短暂抽离的唯一日常空间。一碗茶汤配一枚点心,便可让我们回归源于农业文明的前世,身心与山川雨露同在。


▼ 平面图

项目名称:“悦舍食单”甜品店+茶室
项目类型:餐饮空间
设计面积:65平方米
项目地址:南京市老门东中营35号
设计公司:悦设空间
主要材料:装饰水泥(邦喜建材)、橡木、木地板、玻璃
家具品牌:宅匠
空间摄影:悦舍食单、悦设空间
好设计网 www.haoooo.cn 欢迎投稿:infohaoooo@163.com
好设计网 www.haoooo.cn欢迎投稿:infohaoooo@163.com
