长江美术馆,承载着历史的记忆
长江美术馆,位于山西省太原市东北角的长江村。2016年,长江村像中国其他千万个村落一样,因城市建设的原因被抹为平地。承载着人们日常生活记忆的土地,发生了断裂式的变化。美术馆作为公众共享的文化空间,将以当代的方式回应、纪念这片土地上所发生过的故事。

▲ 项目区位
美术馆位于新建社区南端边界,与城市紧邻。所以,建筑怎么连接社区和城市是我们关注的问题之一。


美术馆西南侧主楼梯从城市街道开始向上爬升,通向二层户外活动平台。平台成为一个被架起的广场,再通过北侧的连桥延伸到社区。
这条外部穿越的公共流线,完全独立于馆内的展览流线,二者共同服务于城市公众和社区居民。









在美术馆内部,一个底部直径5.7米、高16.4米的“光塔”是整体空间组织的“锚固点”。“光塔”既是起点也是终点。人们对这个空间的体验从底层开始,参观路径中会有两次对望,结束于沿“光塔”外层环绕而下的螺旋楼梯。








在展览空间内,自然光经过天窗柔化过滤,再透过1.9米见方、1.9米深的井字梁格构渗入展厅,形成一种匀质的、笼罩性的光线。








连接二层与四层的外挂楼梯、内院的角窗、四层展厅西南角的竖向开缝,为沉浸于展览当中的人们提供了回眸城市的瞬间。







在我们看来,长江美术馆就像一块坚硬的砖,在这个特定的空间和时间的坐标点上,沉默并注视着周边喧嚣和变化着的城市。


▲ 草图1

▲ 草图2

▲ 草图3

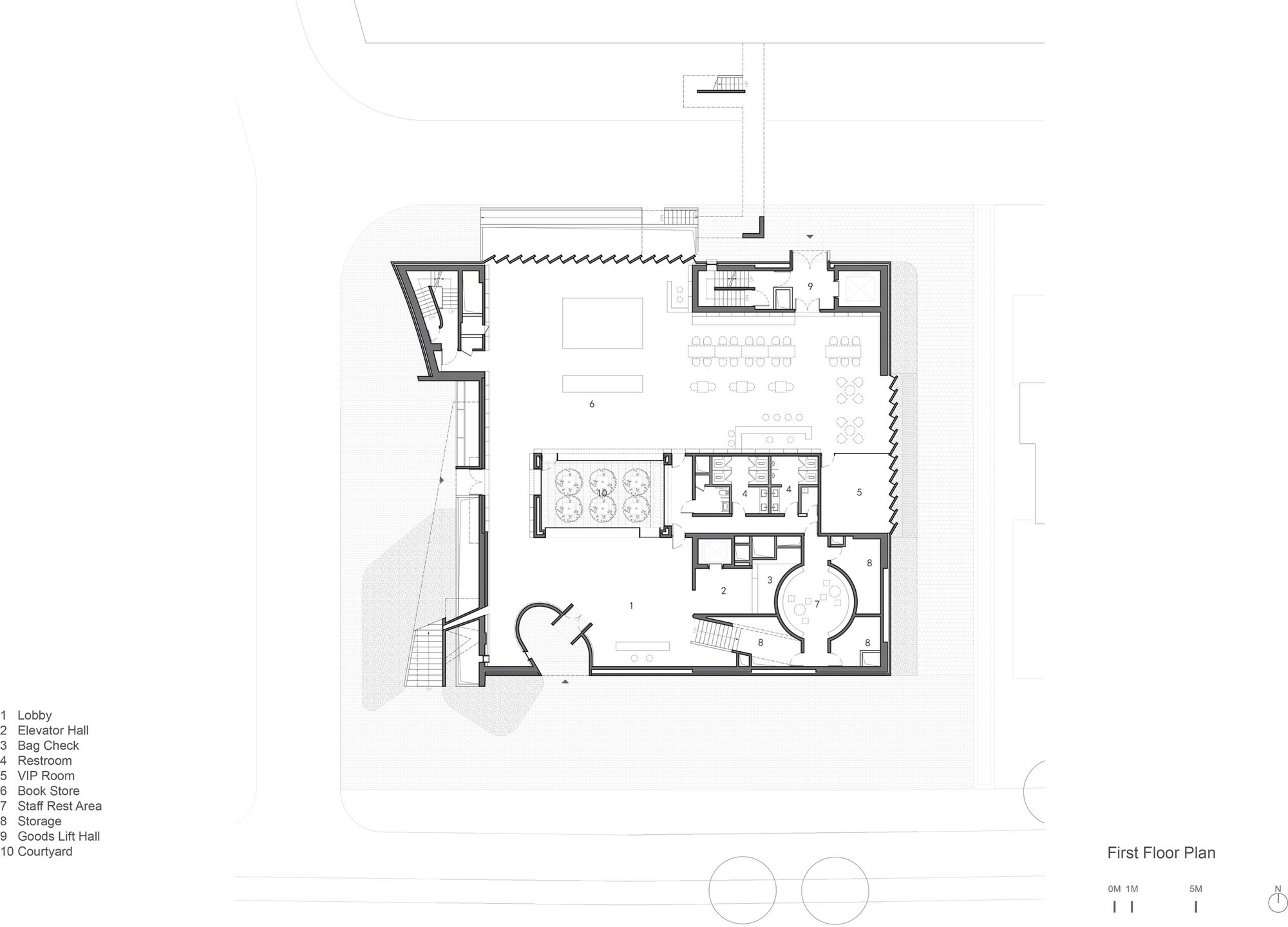
▲ 一层平面图

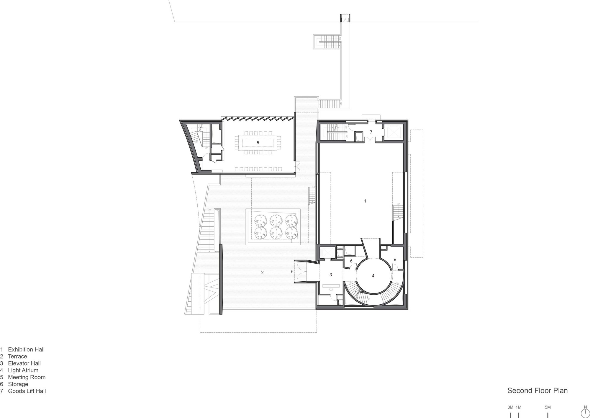
▲ 二层平面图

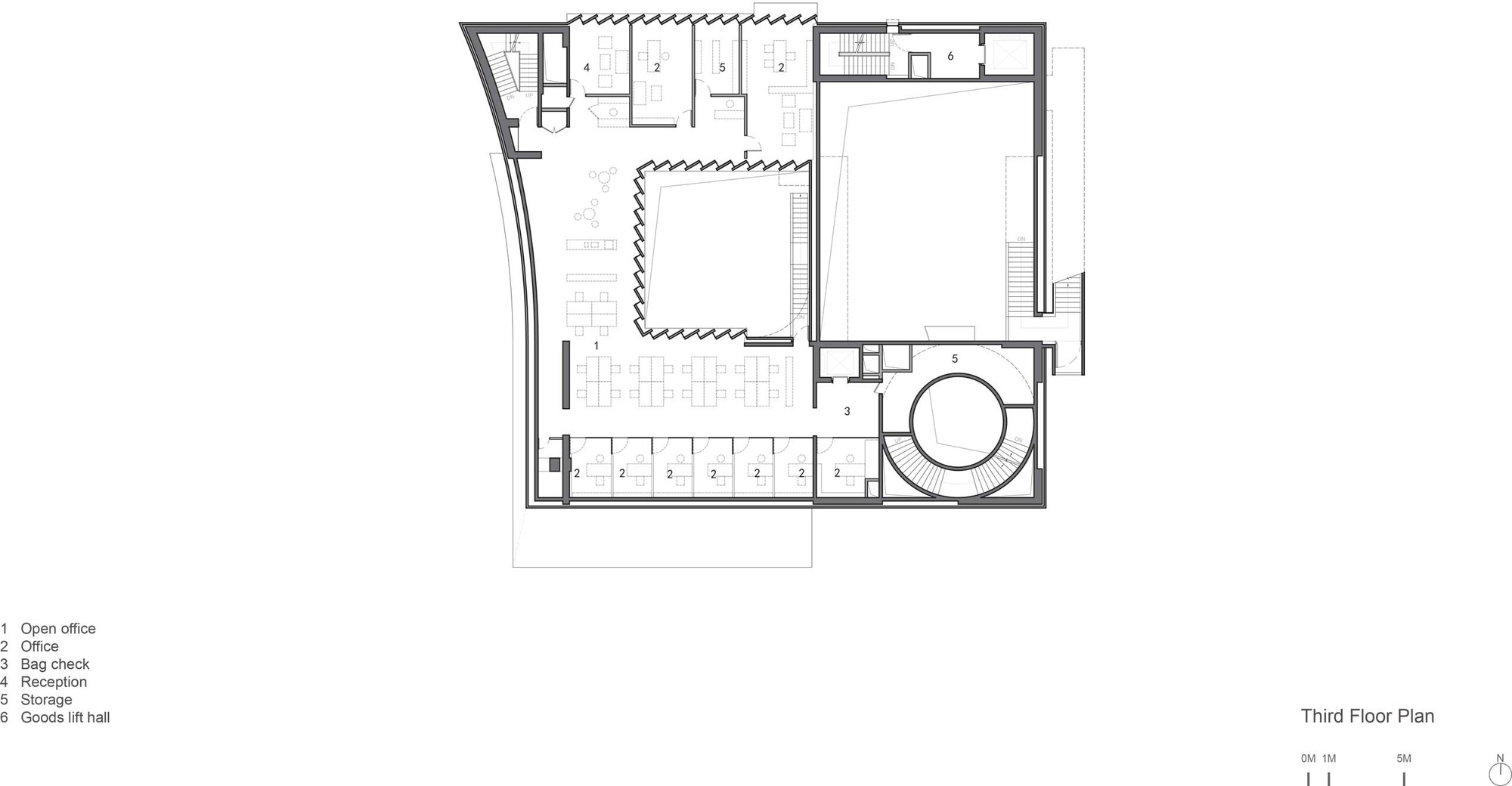
▲ 三层平面图

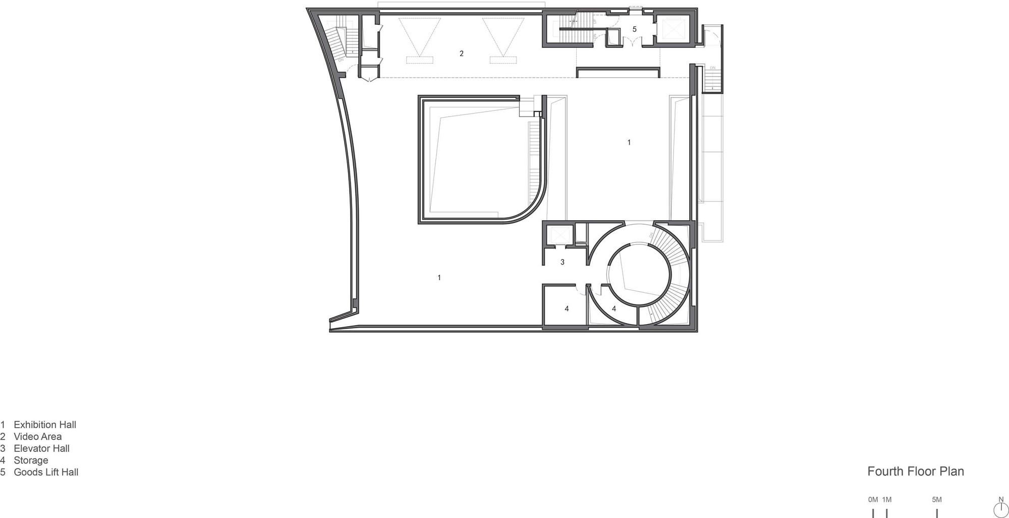
▲ 四层平面图

▲ 屋顶平面图

▲ 剖面图1

▲ 剖面图2

▲ 模型1

▲ 模型2

▲ 外墙高铝耐火砖
项目类型:美术馆
项目面积:3932.0 m2
项目地址:太原, 中国
项目建筑师:直向建筑
主持建筑师:董功
项目建筑师:孙栋平
设计团队:马小凯、陈振强、张恺、蒋昱程、滕晓曈、赵丹
建造管理:赵亮亮
驻场建筑师:郭天舒、陈振强
当地设计院:北京弘石嘉业建筑设计有限公司
合作项目建筑师:张翠珍
合作建筑师:李默
结构设计:薛微、钟志宏、田熙
机电设计:沈隽、郝书妨、张建霞、师科峰、李英平
灯光顾问:清华大学建筑学院张昕工作室
项目年份:2019
摄影师:陈颢
业主:山西千渡房地产开发有限公司
好设计网 www.haoooo.cn 欢迎投稿:infohaoooo@163.com
好设计网 www.haoooo.cn欢迎投稿:infohaoooo@163.com
