伦敦Self Portrait品牌店,女性时尚气质
Casper Mueller Kneer / 英国 伦敦
2019-12-05
Casper Mueller Kneer建筑事务所为伦敦梅菲尔的Self Portrait设计了第一家独立商店,这是该时尚品牌首次在当地单独开业。这一概念也为未来的商店设定了设计方向。

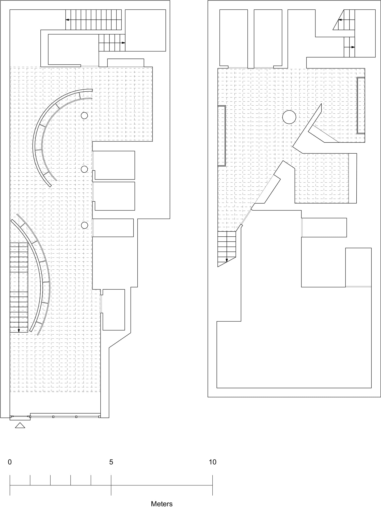
商店内部的地面和底层地面占地223平方米,并用不同的空间和材质定义不同的区域。设计团队使用了三个主要的设计元素来定义空间。


带有粉红色和白色大理石镶嵌的定制水磨石地板为空间增添了质感,图案和微妙的女性气质。由Lichtvision设计的带有照明的开放式网格天花板在车间上方创造了一个连续的、明亮的边界。最后,深色和沉重的康沃尔矿物粘土渲染应用于所有的墙壁和天花板表面。



简单的几何形式被用来创建结构在两个楼层。在地面上,两个带有彩色铝镶嵌物的半圆形金属筛网在开放的线性空间中为衣服提供了悬挂导轨。在较低的地面上,建筑师使用倾斜的墙壁和柱子来形成一个三角形的地板空间,周围是较小的角落和凹室,比如一个有彩色大理石座椅和鞋架的区域。两个楼梯在整个室内创造了一个有趣的环形通道。












▼ 平面图

▼ 爆炸分析图

项目名称:Self Portrait
项目位置:英国伦敦
项目类型:商业空间
设计公司:Casper Mueller Kneer Architects
空间摄影:Paul Riddle
完成时间:2019
好设计网 www.haoooo.cn 欢迎投稿:infohaoooo@163.com
好设计网 www.haoooo.cn欢迎投稿:infohaoooo@163.com
