鼓浪屿聆感酒店,硬朗严谨而现代
聆感酒店原身是德国领事馆,是“聆感SOULTOUCH”品牌旗下的酒店之一。上溯至18世纪鸦片战争时期,厦门成为战争要塞,岛上因此建造了许多欧洲贵族建造的领事馆、领事公馆和税务司的花园式住宅,德国领事馆便是其中的欧派建筑之一。

聆感酒店坐落于厦门海岛鼓浪屿上,距离码头不远,毗邻英国领事馆和日本领事馆,所在位置是繁华的游客集中区。
本着传承、保护、修缮历史的初心,聆感酒店延承了德式建筑一贯的硬朗严谨风格,并在此之上融入现代元素。

聆感酒店外立面是沉稳大气的工业灰色。从围墙外往里看,聆感酒店仿佛一个静静坐落在花园内的盒子,四周的花园做了垫高处理,酒店建筑主体因此隔离开了喧闹,为宾客营造出一个静谧的旅居空间,在旅行间隙,得以真正享受到专属的个人时间。



在盒子般的建筑中,门窗框以利落的黑色钢板描绘,闭合的线条内,随着时间以及视角的变化呈现出一幅幅动态的天然画卷。二楼被扩高的落地窗,将鼓浪屿最美的日光岩收入画中。



一层公共区域是将原相连的房间打通,合并成一间宽敞的大堂,扩大了活动空间,给到宾客更好的住宿体验。



走进直通正门的廊道,一边墙是旧建筑留下的原始红砖墙面,每至日落时分,会有一道光线漏过被切割开的墙顶凿缝,贯穿一二楼空间,直照在砖墙上,将自然带入室内,为建筑带来生机。


室内房顶上保留了原建筑的木梁,为了保持和突出原旧建筑的调性,设计师选择了木饰面、灰布艺、和白墙,这样保持冷静而克制的配色,软装则更多地选择金属材质的摆饰来提升空间的质感。



原建筑留下的储藏室,设计师为了增加其附属空间,和客房做了连接,转变成私人露天庭院和茶室,将属地茶文化结合进整个客房的体验当中。


酒店新和旧的冲突在空间内得到融合,室内外的互动和联系,让整个空间流动起来。“适度与克制”是聆感酒店设计的关键,正是这样的理念让这一切自然而然,顺应了建筑主体的德式风格,也符合了现代审美和生活的需求,使传承不失新意。

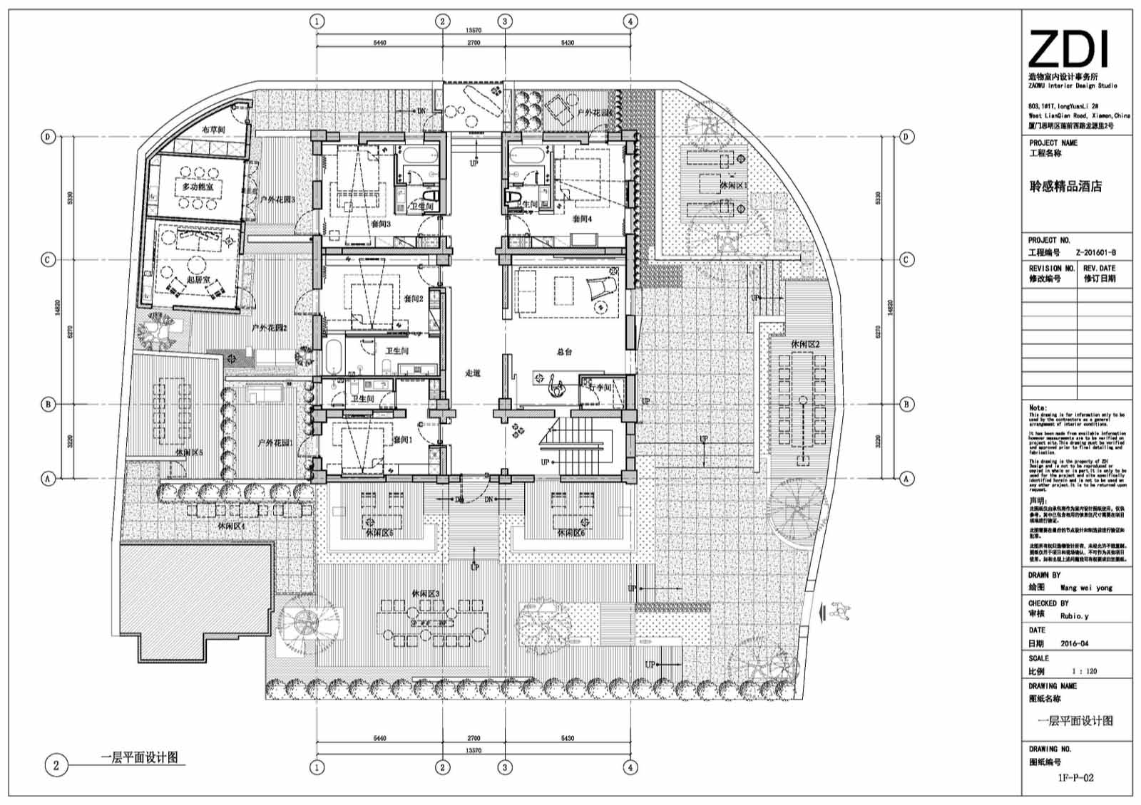
▼ 一层平面图

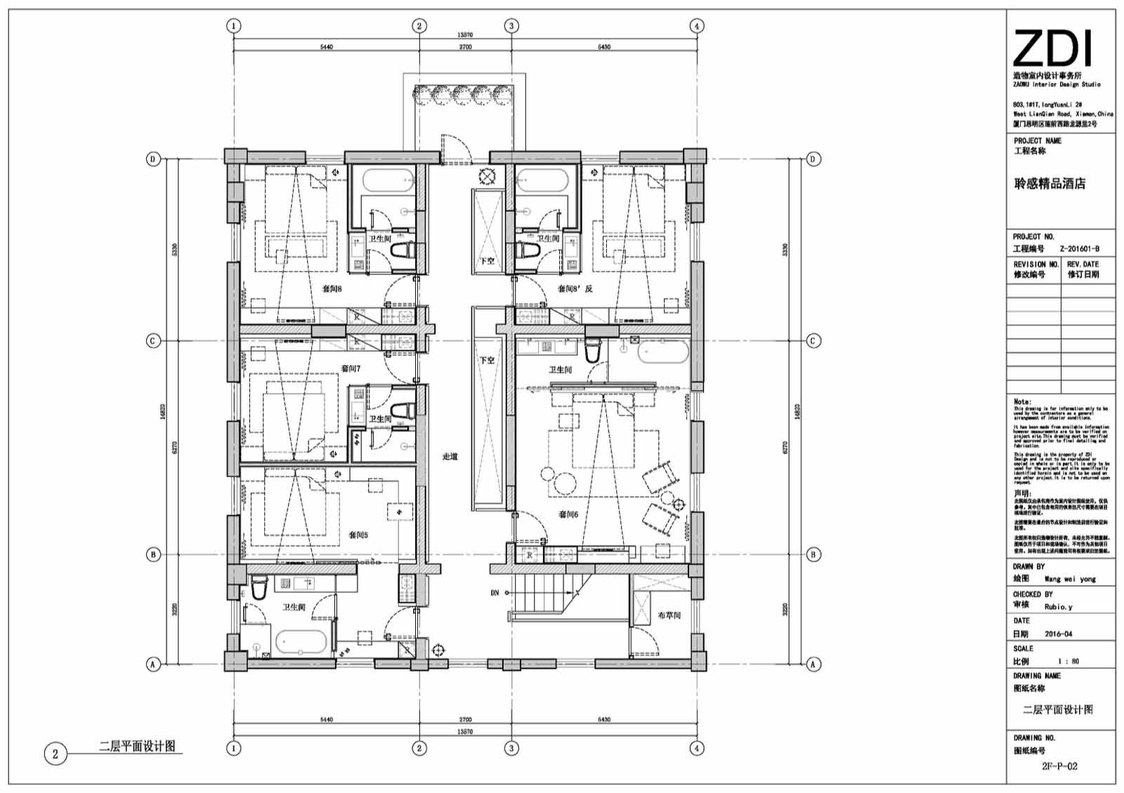
▼ 二层平面图

项目名称:鼓浪屿聆感酒店
项目地址:鼓浪屿鹿礁路8号
设计公司:造物设计事务所
主创建筑师:郑华荣
设计团队:游钰斌、郑元明、余剑颖
建筑面积:1100平方米-所有,500平方米-室内,600平方米-景观
总造价:300W+
好设计网 www.haoooo.cn 欢迎投稿:infohaoooo@163.com
好设计网 www.haoooo.cn欢迎投稿:infohaoooo@163.com
