西安里城柳岸十里售楼处,当代演绎东方美学
时光的诗意
时光的流转更迭,传承历史人文的记忆
触碰当代生活的温度



从千年古城到现代都市
西安沉淀太多的人文记忆
项目落址西安浐灞生态区
穿城而过的浐河、灞河牵动着它的历史脉络

借由当代、内敛的东方美学语言
在新旧糅合与南北文化碰撞中
赋予城市气质和人文底蕴新认知
归觅从容优雅的当代生活

水韵 | 南北文化相融
以水为引
西北民风融入江南的柔美
减去一些附带价值
留下的是水面波澜几微
宁静空明、温馨从容

饱含东方韵味的素墙月门
是空间使者的别有用心
撩拨起到访者一探究竟的兴致




时光 | 新与旧的糅合
艺术之门打开人文之境的时光对话
藤编、案几、挂画等东方元素细细堆叠
以香槟金、赭石红反差点缀
一切关于时间的印记
均在淡雅内敛的木、灰色调中被沟通



古韵木梁、城门旧墙收集古都的旧时光
厚重的椅子与现代麻质沙发碰撞
试图在历史与当代间
探寻到更适合的空间形态体验点





惬意丨空间的参与感
生活不该只有城市的律动
更应有诗文之洗礼
择一处清净,闲读一段时光
唤醒内心深处的依恋与回归

木格栅的光影曳动落地灯的柔雅
隐射于木质屏风围合的沙发椅上
让洽谈和放松更自在舒雅


留白,是给生活留下想象的空间
一株根雕艺术盆景跳脱界限
唤醒人们驻足放空,静思酝酿
再优雅漫步将时光穿梭



窥见 | 藏在时光里的诗意
灞水的水滴化为玻璃艺术灯具
自然光穿过古都印记的建筑空间
斑驳在老砖墙和点点水滴上
喧嚣的生活瞬间回归宁静和初美




用时光印记空间
留下传统与当代并行的痕迹
又不失国际都市气息
在有限空间内,看见生活无限可能

设计所探寻的
远不止是色彩、线条、材质等具象的组合
更是以回归内心的宁静优雅
去突破地域、人文、艺术的界限
探索当代诗意的生活方式
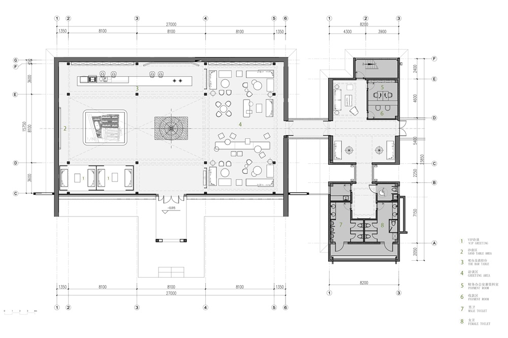
▼ 平面图

项目名称:西安浐灞里城柳岸十里
项目性质:售楼中心
项目面积:600m²
项目地点:西安浐灞生态区
硬/软装设计:柏年印象
项目摄影:张骑麟
甲方单位:深圳市里城投资发展有限公司
好设计网 www.haoooo.cn 欢迎投稿:infohaoooo@163.com
好设计网 www.haoooo.cn欢迎投稿:infohaoooo@163.com
