深圳Voisin Organique 邻舍有机餐厅,在峡谷间野餐的故事

万社设计 / 中国 深圳
2019-12-24

Voisin Organique邻舍有机餐厅是一家主打Contemporary Chinese Cuisine(当代中国料理)的“farm to table”有机餐厅,以古典美学为灵感,结合自家欧盟有机认证农场种植的食材,将古法中国菜与国际化的fine dining 的仪式感相融合。本项目坐落于深圳福田区的深业上城,委托方希望整个空间能同时拥有一个酒吧区、一个高级正餐区,同时亦需要面积110平米的厨房操作间。

3.jpg

2.jpg

外立面是高耸的铜色墙,为室内遮挡了刺眼的户外光线;特制的玻璃凸透镜,让人不禁对店内产生好奇。

4.jpg

5.jpg

高低差、闪光的巨型管道、拐角、黑暗空间,结合品牌本身的理念和对自然环境的追求,构成了一个在峡谷间野餐的故事 :

“ 峡 谷 漫 游 ” 

6.jpg

峡谷漫游的概念,意为在山野中的随心探秘。

7.jpg

进入室内的酒吧区域,仿佛瞬间置身峭壁嶙峋的山谷之间:低矮处很低,而高处又如同悬崖般需要仰视;低矮的天花中间还有一道深邃的沟壑直达顶端,仔细一看,不知从何而来的光影在沟壑的最上方洒下。

8.jpg

如何营造两处就餐空间不同的氛围和体验,并将之顺畅自然地连接起来。这些问题在万社团队第一次考察现场时,得到了灵光一现的巧思。

9.jpg

项目地是一个高度较高且漆黑的L型空间。一进大门,就直面一个挑高的大空间,上方横着一个不可以拆卸的巨型烟道,其防火棉的反光质感在空旷的空间里给人带来了震撼的视觉感受。

10.jpg

打开手电筒一照,只看到管道防火棉的反光质感,局部的反光打亮了一部分空间,有种金属矿石被勘探到的错觉。

11.jpg

12.jpg

整体空间从天花到墙面,大面积使用了银箔,这银色哑面的质感让整个空间里反射散漫着点点光晕、照映着模糊的人影,如身在雾里一般。

13.jpg

“清风徐来,雾气氤氲,映着微红的余晖,我们坐在山谷里喝着小酒野餐。”这便是酒吧区域,银的质感加上微红的色调伴随着顶上洒下柔和的光。

14.jpg

15.jpg

外立面上的圆洞,为室内引入些许阳光,连接着里外两个世界。

16.jpg

17.jpg

炽白的光束顺着孔洞照射进来,映的里面的幽暗那么的不真实,仿佛身处另一个世界。

18.jpg

感到好奇的人们可以从圆洞往里看,客人们也可以从里面往外看,两者的互动为这庄重的立面添加了许多趣味。

19.jpg

过道上充满了仪式和神秘感。沿着有光的通道往更深的地方前进,慢慢步入一个更加深邃隐蔽的另一个空间。

20.jpg

拐角过后的空间一片黑暗,当人拿着手电筒在空间里扫视,仿佛是在原始山体里探险-这便是隐藏在深处的高级正餐区。

21.jpg

22.jpg

缓缓步入,一个转身,透着暗红色的天顶引入眼帘,在极黑的空间里,仿佛是进入一座红彤彤的矿山洞口底下。

23.jpg

高级正餐区内,暗红色的天顶,粗旷的墙面材料,纯黑色的桌椅,透明的杯具,不同的元素交织在一起,形成一个带有仪式感及高级感的空间。

24.jpg

区别于空间里的黑,红色,在一堆烛火和黑色材质的照映下,折射出独特的感官体验。

25.jpg

26.jpg

27.jpg

幽深的暗黑中、皎洁的白光,野性粗犷又奢华,这是高级正餐区营造的更极致的体验。

28.jpg

在棕红色天顶的映射下,远处影影绰绰的冷色光从天顶孔洞或缝隙中落下,显得一切是那么的纯净与美好。

29.jpg

黑暗粗糙的肌理漆强化了原始粗犷的氛围,角落上的冷色光为空间添加了一丝自然的气息。

30.jpg

31.jpg

在这里,极尽抽象化的空间设计,没有丝毫自然气息的前卫材料,却给食客带来了有关峡谷和野餐的无穷想象空间。富有建筑逻辑的务实理性,在概念故事的脉络中穿梭,亦附上了一层浪漫主义的唯美。

32.jpg

33.jpg

34.jpg

35.jpg

36.jpg

37.jpg

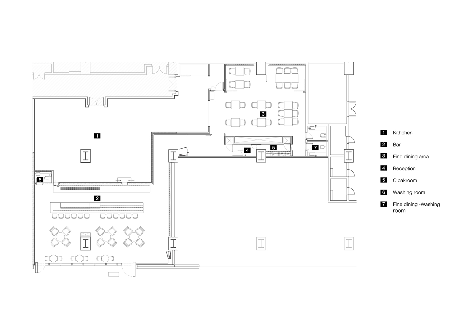
▼ 平面图

38.jpg

客户:Voisin Organique 邻舍有机餐厅+V.O. Lounge

项目地址:中国,深圳,福田区,深业上城L2层S209铺

设计团队:Various Associates | 万社设计(https://various-associates.com/)

项目负责人:林倩怡

主设计师:杨东子

设计师:李诗琪,唐静静

摄影师:邵峰

完工时间:2019.11

好设计网  www.haoooo.cn      欢迎投稿:infohaoooo@163.com

好设计网  www.haoooo.cn
欢迎投稿:infohaoooo@163.com