重庆坐茶TEA-TALES茶饮店,传统与现代相融
“侃天说地,歇脚喝茶”是坐茶TEA-TALES的SLOGAN,也似重庆人豪爽个性的直白表达,无论是阳春白雪还是下里巴人,一间茶馆,一壶好茶,就是江湖。



喝茶固然有传统属性,但绝不是一件陈旧的事情,这是客户与我们的共识。过于现代化的符号介入也和坐茶TEA-TALES的气质相违和。遵循传统结合现代,我们对空间进行“折叠”处理。


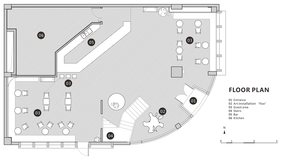
靠近公共平台区域部分,我们从隐私和采光考虑,设计了背窗卡座,外立面以矩形结构组合相互交叉的木架和窗框,让立面造型形成强烈的垂直视觉感受。上下推窗的设置让室内外保持对话,功能上也便于通风。




楼梯作为建筑的组成元素,在空间规划中,我们不愿它只停留在功能性上,更想通过造型设计让楼梯成为空间中承上启下的过渡。折叠的楼梯犹如山城步道的蜿蜒,折叠后形成的两个区域一收一放巧妙的安置艺术装置和商品展示。同时又将上下两层空间交错折叠在一起,形成空间的趣味。


艺术装置“FLOW/流”,以“茶”为灵感,以“竹”为媒介,尊重自然,传承人文。
利用结构柱设计墙体造型,形成双动线增强空间的流动性。虚实结合的形式感,减少其他客人对内座区的干扰。






















▼ 轴测图

▼ 一层平面图

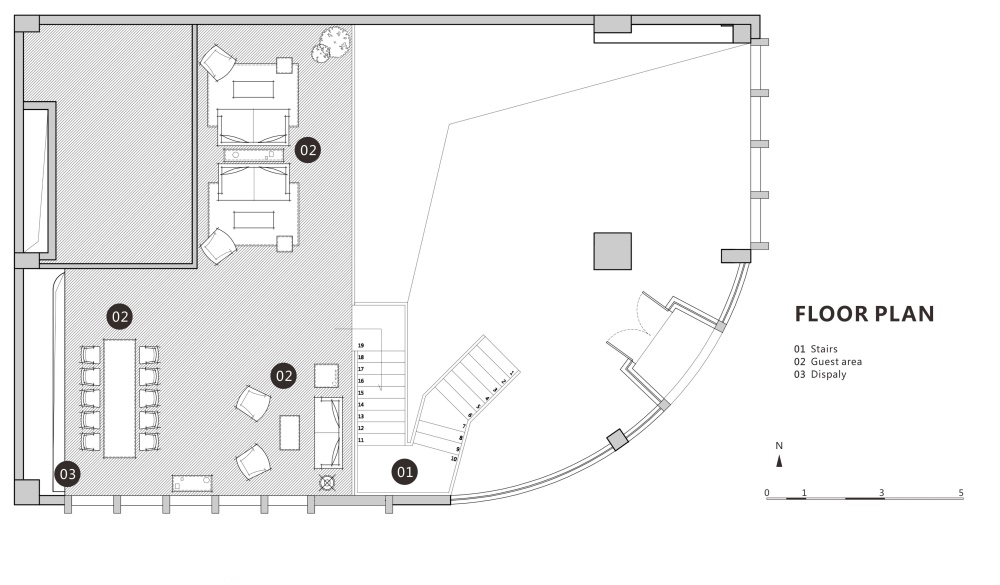
▼ 二层平面图

项目名称:坐茶 TEA-TALS
项目面积:300 平方米
项目地址:中国重庆
设计公司:治木设计 / GeeMo Studio
设计团队:石朝思、易毅、余思静
空间摄影:偏方摄影
施工团队:造式空间
艺术装置:GR ART
主要材料:实木、墙面涂料、混凝土、大理石
完工时间:2019.9
好设计网 www.haoooo.cn 欢迎投稿:infohaoooo@163.com
好设计网 www.haoooo.cn欢迎投稿:infohaoooo@163.com
