杭州“LITTLENAP里奈”民宿,简约个性小屋
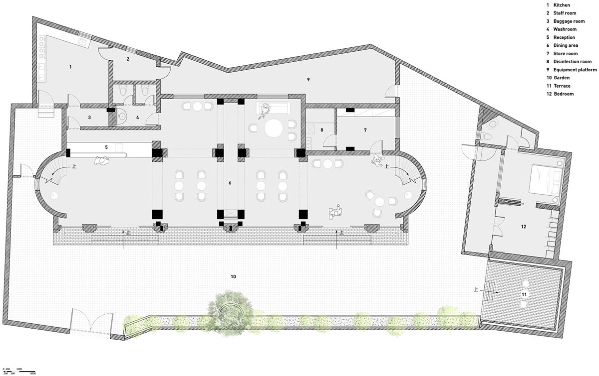
“Littlenap里奈”民宿位于杭州西湖九溪景区,是对景区内原有住宅的改造。原有建筑包括了两栋紧邻的三层建筑以及一个单独的小房间,第一次查看现场,我们就和甲方共同决定,将单独的小房间从功能上与普通民宿区别开,使他成为一个具有多种可能性的空间,同时将原有两栋三层建筑的一层打通,形成一个通畅开放的首层公共空间,这个公共空间与独立的小房间一同赋予了littlenap一种灵活性。


为了达成空间的连贯性和多功能性,我们对整栋房屋进行钢结构加固工作,拿掉了原有墙体,彻底将一层开放。从这一点出发,我们希望将littlenap打造成一个具有文化或艺术属性的场所,而不单纯是一个民宿,首层的公共空间承载了餐厅、礼品、接待、交流等属性。
建筑在景区并且由于原有建筑的结构限制,我们没有对建筑外立面进行彻底的改造,我们使用了三种室外材料来对建筑外立面做了低成本改造。对于室外庭院地面,我们使用了透水石,形成了单色耐久的室外地面效果。建筑室外公共空间使用了红砖,虽然是传统材料,却形成了与景区其他建筑皆然不同的视觉效果和感受。建筑二三层外立面使用建筑外墙肌理涂料,使原本单调的建筑外立面形成了肌理感的光影效果。



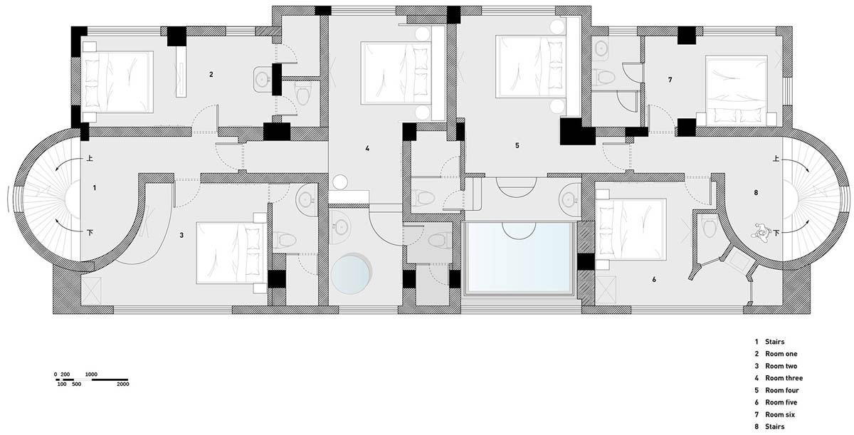
“Littlenap里奈”团队对室内软装进行了设计和选择,与建筑空间结合形成了特有的空间氛围。吧台背景墙11把钥匙对应了11间客房。每一间客房的窗外都是极富绿意的美景,在结构允许的范围内,我们在墙上、屋顶、茶室设置不同大小形状的窗户,让光线、景观通过不同的方式进入到室内。








而独立的小房间在日常作为单独的一个套间使用,定期会转换成为一个小展厅展示独立艺术家的作品,我们为他取名为napnapnap。Napnapnap在硬装和软装设计上与其他房间有着明显的区分,但同时又在风格上形成统一,空间中的家具均可以方便变换位置,床架也是特别设计,将两部分床架上下叠放,可形成一个陈列展台。




▼ 轴测分析图

▼ 平面图



▼ 剖面图

项目名称:“LITTLENAP里奈”老房改造民宿
项目类型:度假民宿
建筑面积:600平方米
项目地址:杭州市西湖区之江路九溪景区徐村56号
设计公司:SAY ARCHITECTS有坪一尺
施工单位:杭州优办装饰有限公司
软装设计:里奈团队
主要材料:肌理涂料、红砖、透水石、钢化玻璃、大理石、瓷砖、水磨石、木材、木地板、白色乳胶漆
空间摄影:汪敏杰、PROJECTION映社
好设计网 www.haoooo.cn 欢迎投稿:infohaoooo@163.com
好设计网 www.haoooo.cn欢迎投稿:infohaoooo@163.com
