清莱Choui Fong,集餐厅咖啡厅零售店于一身
自2015年开业以来,首家Chouifong为种植园吸引了众多游客,使之成为泰国清莱最著名的旅游景点之一。为了满足日益增多的游客需求,Chouifong第二家也开放运营。二期位于一期附近的种植园山丘上。该区域原设有工厂及零售商店,该空间取代了工厂附近的零售店,在那里可以看到种植园美丽的风光。设计师团队建议将空间设置为矩形结构,以使项目内大多数区域都能看到种植园景观。一期为了让游客能在屋顶获得开阔的全景视野,而将建筑深入到土地。但与此不同的是,二期项目因为山丘具有足够的使用面积,且附近的工厂有所限制,建筑被设立于地面上。





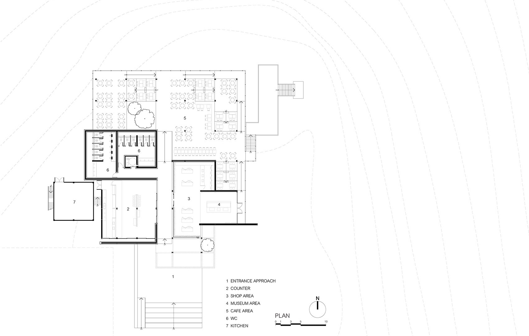
该项目包括一个可供250人使用的用餐区,一个大型纪念品商店及一个展览区,工作人员可以在展览区演示茶的制作方法,并讲述相关历史。在第一家运营多年之后,业主意识到项目的受众主要是包含年长者的家庭游客,因此,本次设计需要着重考虑如何服务更多类型的人群。




项目入口的石墙仅留有较窄的通道,供游客进入。窄道中流通的微风,向过往的游客送去问候。穿行在这条通向用餐区的窄道上,可以感受昏暗的空间逐渐变得明亮。游客可以在用餐区品尝美味的食物,领略种植园优美的风光。这个新项目的选材与一期一致,其中包括松木,钢材,玻璃及山石。这些材料代表了Chouifong一贯的有机种植理念。








设计的主要概念是让游客能够尽可能的欣赏到种植园美景,亲近自然,同时也不会给老年人或残疾人带来行动不便。因此,项目的设计必须综合有效地考虑上述需求。一方面,为了拓宽坡地上的景观视野,就餐区随地形被分为多层。这样一来,游客不论在那张桌子上用餐,都能因高度不同而获得较为完整的视线。此外,屋檐向外延伸形成中间区域,防止就餐区受到暴雨的侵扰。另一方面,在屋檐下,就餐区周围设有坡道,方便残障人士进入餐厅内所有平台。






业主要求为一层的建筑设置尽可能多的可用面积,因而该项目平面拥有惊人的尺度。如此尺度的空间,往往存在采光不足的问题。散射的天窗不仅解决了这一问题,还避免了雨水可能带来的使用及维护困扰。天窗的设计巧妙而独具特色。天窗的开口并没有采用需要大量连接结构的大片玻璃,而是将开口挤压成不同形状的圆锥形。这样一来,小块玻璃就能够覆盖天窗的开口,不仅避免使用了不太美观的连接机构,还降低了天窗的建造成本。圆锥形的天窗有助于将光线充分扩散至整个空间,并随着时间的变化投下不同的光影图案。天窗开口的面积较大,足够养植植物。这些天窗的设计与周围山脉相得益彰。









▼ 平面图



▼ 立面图

项目名称:Choui Fong餐厅+咖啡厅+零售店(二期)
项目类型:餐饮空间
项目面积:1330平方米
项目地址:泰国 清莱 Mae Fah Luang
设计公司:IDIN Architects
主要材料:天然石材、钢材、松木板、混凝土、钢化玻璃
空间摄影:IDIN Architects、Choui Fong
好设计网 www.haoooo.cn 欢迎投稿:infohaoooo@163.com
好设计网 www.haoooo.cn欢迎投稿:infohaoooo@163.com
