上海“酒窝”日料酒吧餐厅,私人奢华体验

red design / 中国 上海
2020-02-10

“酒窝”位于繁华的上海,是一间隐秘性极高的私人奢华餐厅酒吧,提供超星级的服务给予宾客最精致细腻的体验。“酒窝”占地360平方米,位于上海市徐汇区安福路,一栋重新翻修的工业建筑5楼。 室内空间规划为一个宽敞的休闲座位区、私人会议厅及两间座位围绕着U型吧台的私人包间。 空间被巧妙地結合到了现有建筑的结构中,为顾客展示了公共和私人空间的平衡组合。 会所还拥有一个130平方米的大型屋顶露台,通过在露台上搭建了亭子,将私密感延续到室外。

1.jpg

2.jpg

“酒窝”的设计理念源自于“板前”,意指在高级日本厨房中的厨师。可以直译为“在木板前面”,木板指的就是切菜板。“板前”的每个举动和工作态度是被高标准评鉴的,包含如何处理食物和器皿以及如何接待客户。 我们将板前的概念扩展延伸到室内设计:创造了优雅可敬的内部空间,也反映了板前对准备和展示日本料理的崇高精神。

3.jpg

4.jpg

我们也透过对日本三个核心文化的了解,得到了更多的设计灵感。侘寂,描绘的是残缺之美,以接受不完美为核心的日式美学,影响了该项目材料的选择。由天然的石材地板,带有古铜细节的实木装修以及蕉麻纤维地材组成的设计材料板,兼具现代感但却保有传统日式设计的温暖触感及真诚。隐趣,隐藏和揭示的艺术,创造了一种更深层次的幻觉,还产生了超越隐喻背后之美的臆想。 体现在一系列精致的亚麻,木质和金属格子的屏风中, 穿插于整个酒窝,使贵宾可以体验超越空间的视觉感官之旅。

5.jpg

6.jpg

最后,间,处于正负层面的艺术,影响设计元素于空间的安排与构思。反复的环形图案,缔造了墙壁与天花板上的光圈及缝隙;细腻质感则藉由这些特色,犹似主视觉般贯穿整体空间,并且诗意地暗示了充满可能性的虚无。

7.jpg

▼ 餐厅露台

8.jpg

9.jpg

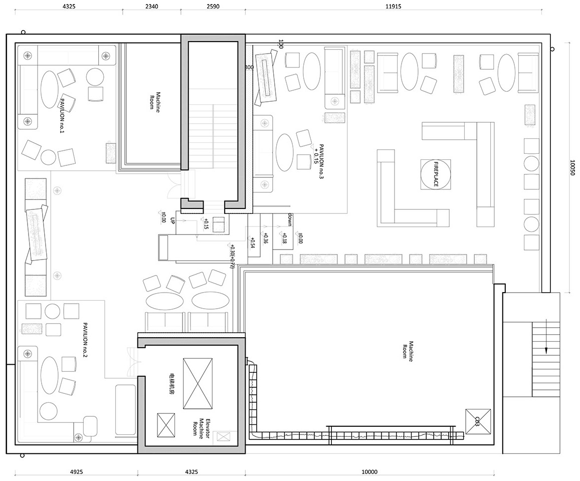
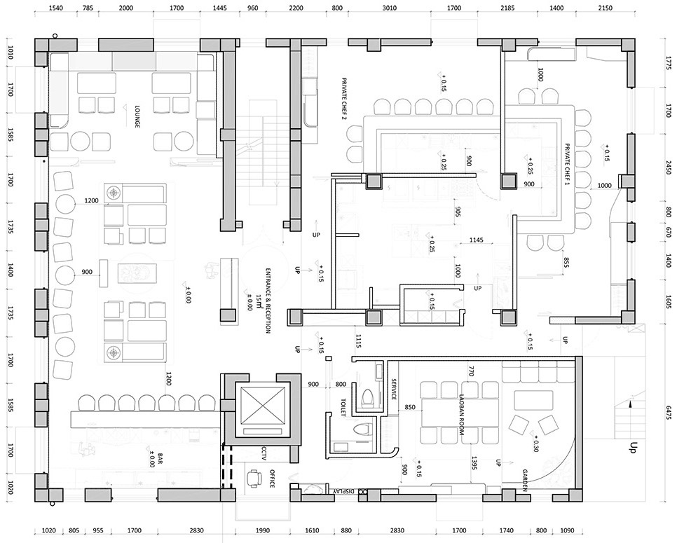
▼ 平面图

10.jpg

11.jpg

项目名称:“酒窝”私人奢华日料酒吧餐厅

项目类型:餐饮空间

项目面积:360平方米+130平方米屋顶露台

项目地址:上海市徐汇区安福路322号6栋5楼

设计公司:red design

主要材料:实木、木饰面、木地板、大理石、和纸、镀铜拉丝不锈钢、人造皮革、长虹玻璃、壁纸、肌理漆

空间摄影:Seth Powers

好设计网  www.haoooo.cn      欢迎投稿:infohaoooo@163.com

好设计网  www.haoooo.cn
欢迎投稿:infohaoooo@163.com