莫干山“栖香记”民宿,朴雅别致

小大建筑 / 中国 湖州
2020-02-25

场地位于德清莫干山高峰村,门前有两棵近百年的的香樟树。人们大部分日常活动都在树下,总能沾染上些许香气,幽韵撩人,因此给这里取名“栖香记”。原有建筑先后建造于不同年代,呈现出不同时期的乡村民居风貌。满足新的使用需求把场地里的建筑风格统一是在这次改造设计的主要任务。

1.jpg

2.jpg

项目改造自当地村民自建房,打破固有的布局结构,留白墙面和双坡屋顶。墙面上开出大面积玻璃窗,朴雅别致,结合四周郁郁葱葱的山景,“问余何意栖碧山,笑而不答心自闲”诠释了对栖香记的理解。围篱之内是2500多平的场地,一片幽蓝的泳池坐落其中,清澈的水面倒映出雪白的建筑体,微风吹过,吹皱了这片涟漪。各类植物巧妙布局在院落的每个角落,以静制动,野趣横生。

3.jpg

4.jpg

5.jpg

6.jpg

7.jpg

8.jpg

9.jpg

10.jpg

11.jpg

12.jpg

设计中将原本的房间全部打通,变成了全开放共享的空间。并将前台、休息区、吧台、厨房、餐厅进行了合理地功能区分,穿梭其中显得更加悠闲自在,并增强了交流。巨大的玻璃将室外别致的景色引入室内,提升了空间的趣味性,充满着生机与活力。

13.jpg

14.jpg

15.jpg

16.jpg

17.jpg

18.jpg

客房的设计配合以白墙与原木装饰,原木家具点缀其中,使空间如家一般温暖。二层有一个独立茶室书吧,伴着后山的涔涔溪流,风轻吹过竹林留下簌簌银铃,阳光穿过房间,光影婆娑。赌书泼茶,快哉快哉。

19.jpg

20.jpg

21.jpg

22.jpg

23.jpg

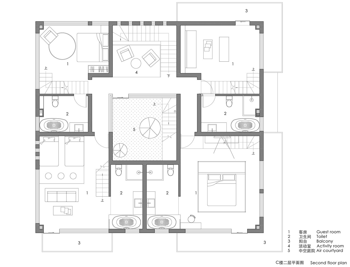
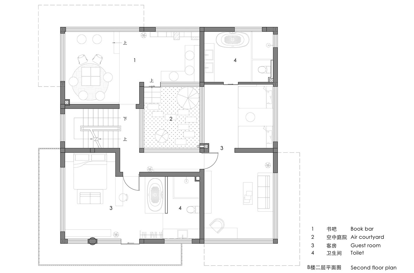
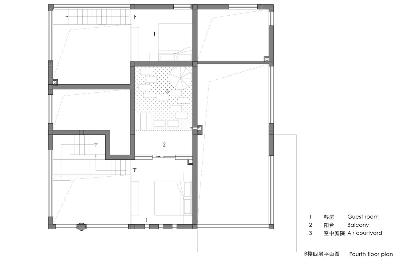
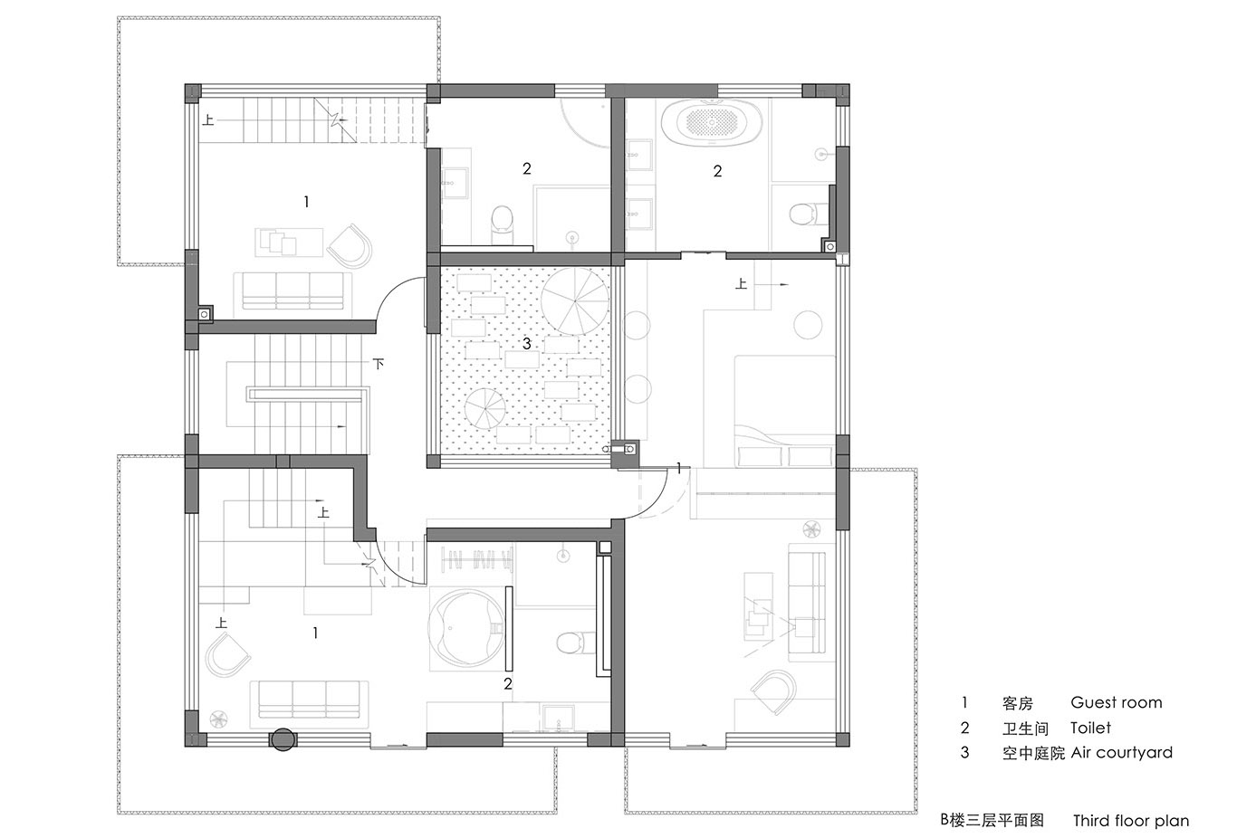
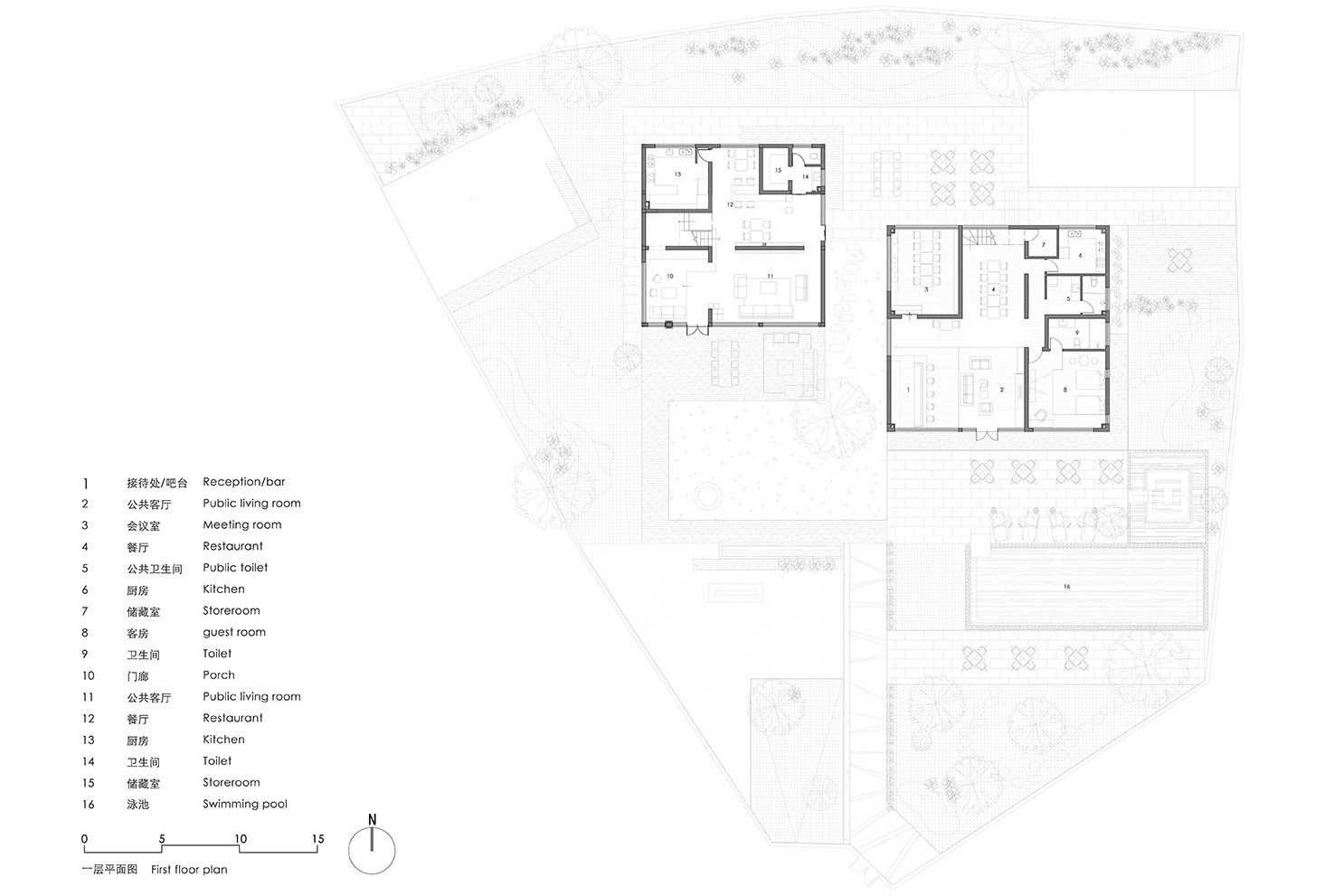
▼ 平面图

24.jpg

25.jpg

26.jpg

27.jpg

28.jpg

29.jpg

▼ 立面图

31.jpg

▼ 剖面图

32.jpg

33.jpg

34.jpg

项目名称:“栖香记”村落民居改造民宿

项目类型:度假民宿

占地面积:2500平方米

建筑面积:1400平方米

项目地址:浙江省湖州市德清县莫干山镇高峰村

设计公司:素建筑

主要材料:混凝土自流平、混凝土涂料、实木、木地板、白色乳胶漆

空间摄影:唐徐国

好设计网  www.haoooo.cn      欢迎投稿:infohaoooo@163.com

好设计网  www.haoooo.cn
欢迎投稿:infohaoooo@163.com