佛山YCC Trend Hub 买手店,力图展现物质之美
介质独立精神的几何表达
迷失 -再定义
项目区位
顺德欢乐海岸位于顺德规划中的顺德东部新城核心位置。
整体档次主要由餐饮、娱乐部分引领, 填补市场空白,领先于可预见的竞争项目;零售定位目前顺德最高端,面向顺德中高端消费人群及部分游客。
▼ 项目区位


品牌分析
YCC作为一个买手的品牌,它诠释一种渴望自由与个性化追求的消费趋势;YCC专为追求精致艺术生活人士而设计,不张扬,不造作;YCC将众多的品牌汇于一店,力图展现物质之美,将所有品牌进行高度的融合。在这里,并不是买卖那么简单,更重要是对生活的一种讲究与执着。

设计思考
在设计中,设计者认为零售商业场所应当是具备物理属性与情感属性。
最终总结出三个主要设计目的:促进消费,提高客户粘着度以及让新客户对品牌产生认知。
对于 Unknown Design来讲,商业设计已经不是只是单纯的追求美学设计手法,而更是一种商业消费升级潮流下的体验设计。因此在开始整体设计之前,便提出了几个问题:
1. 什么是YCC?
2. 使用者消费者与商品/空间产生交互的过程是什么?
3. 途径和介质又是什么?
4. 比起单纯的空间设计手法,Unknown Design认为传统的美学已经是商业设计的刚需,而基于策略的设计才能够更好地指导设计与支持设计。
迷失 - 再定义
看到自己 — 诗意 — 与已知的自己相遇
发现自己 — 梦幻 — 与未知的自己相遇
呈现效果
▼ “stage 边界”由两个金色镜面组群组成,激发消费者“挑战个人感知,引发个人情感反应”。

▼ “Stage”概览 由两个独立试衣间组成独立区域,模糊边界。顶部led屏幕成为沉浸式交流区域。

▼ “Stage”顶部中央设有巨大的Led装置,变幻出丰富光影效果。


当体验者在“舞台”中央穿行时,空间逐渐变为开阔,金属材质通过反射属性将屏幕光影扩充至整个舞台空间,与舞台中央的大卫胸像形成呼应,轻微反射的柔光地面材质,同时让空间的视觉延伸最大化,也与立面材质产生对比。
消费者在体验过程中探索出更高层次的精神需求,服装展架给出了合适的消费行为反馈。
▼“Stage”中岛陈列细部,头像与背面品牌logo产生关联,产生品牌记忆点,提高品牌识别度。




未知设计在本案中选用现代材料来打造氛围,使用多种反射材质进行结合,让陈设空间能够很好地进行不同区域的分割之余又不失成为一个整体。而在服装展示的墙面则使用水泥漆强调出陈列的衣物,避免喧宾夺主。





通过舞台区域游览至Refined区域,在空间尽头的前面产生新的视觉焦点,并提供短暂的停歇与私人咨询服务,变幻的森林图像引导着探索的欲望,在暗示着更深层次自我探求。顶面安置独立镜面是联动空间中的精神交互介质,与滚动播放的屏幕共同赋予静态的空间更多活力。


▼ Refined area,用于展示与体验订制服务。






外立面总览

设计记录
▼ 空间示意图

▼ 爆炸图

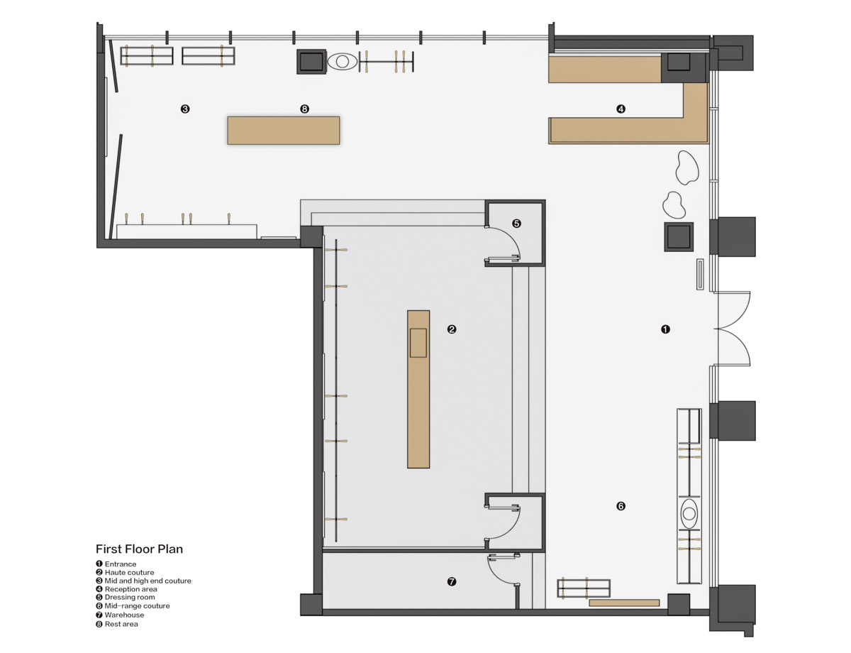
▼ 平面图

未知设计在规划平面布局的时候,考虑到商业场所不应再局限于传统的布局,应该将空间体块打开,动线应该设置得更加自由,因而将传统放置于角落的试衣间单独提取出来作为空间分割的物件,试衣间置于空间中部,从消费者使用角度进行考虑也更加便捷高效,从而释放出更多的空间作为购物区域,使得服装展示面积获得最大化,满足更多的品牌入驻。舞台设置于店铺中央,从沿街的两个立面均可一眼辨识,也增加了进店体验。对产生消费的行为带来积极意义。
项目名称: YCC Trend Hub商业店铺设计
项目地址: 佛山顺德华侨城
设计单位: Unknown Design Studio未知设计事务所
设计时间: 2019.04-2019.06
完工时间: 2019.10
项目面积: 130平米
项目摄影: Muji photographic studio 图片©木吉
主要材料: 不锈钢、特殊艺术涂料、大理石、led屏、瓷砖
家俱合作: 东莞市丽舍木业家具有限公司
道具合作 深圳市萌绿展示道具有限公司
灯光合作 库奥(深圳)照明技术有限公司
施工单位: EVO Studio
项目甲方: YCC
好设计网 www.haoooo.cn 欢迎投稿:infohaoooo@163.com
好设计网 www.haoooo.cn欢迎投稿:infohaoooo@163.com
