Metal hands Coffee制造总局,有趣的“探秘”空间
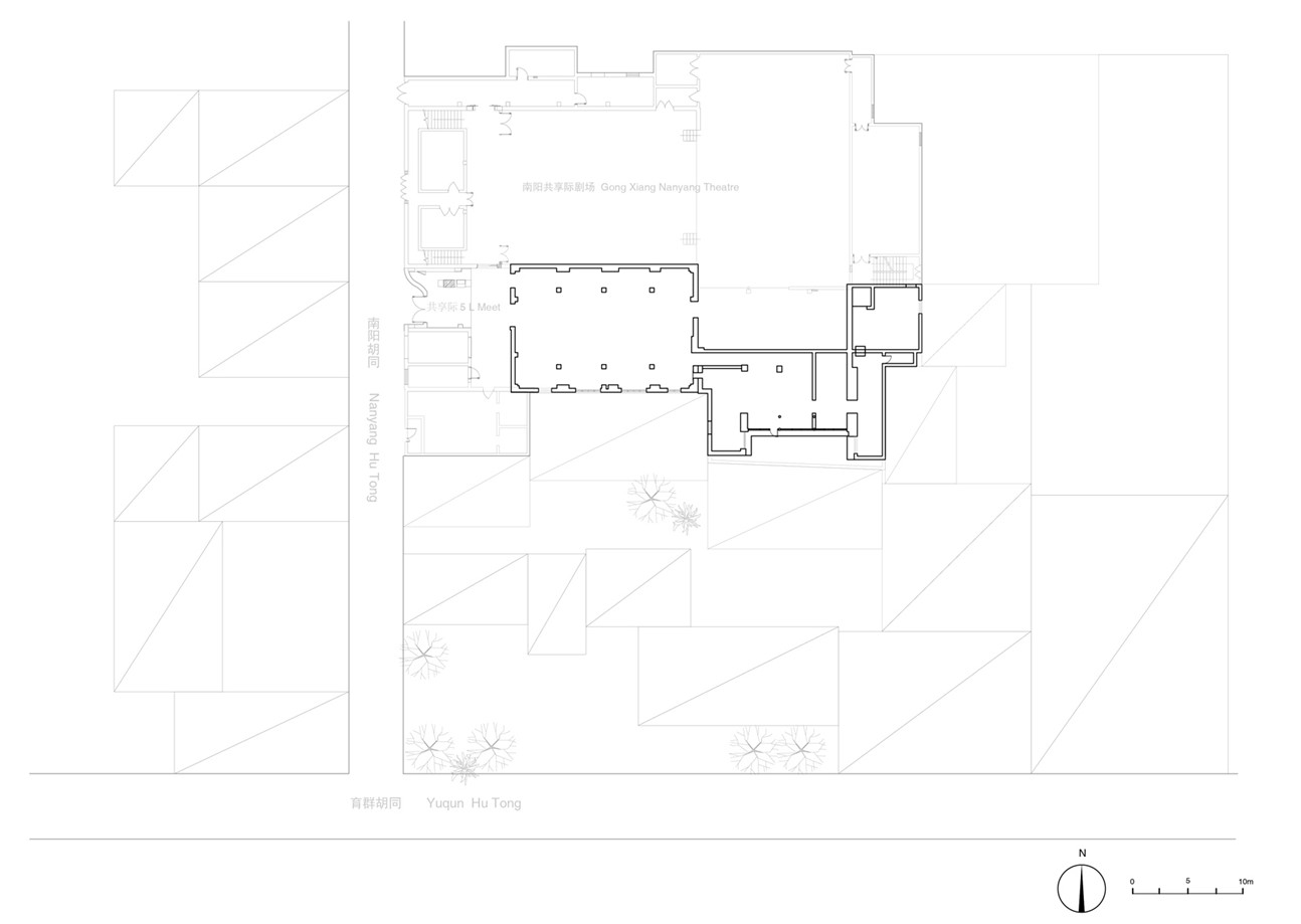
项目位于北京市东城区东四南阳胡同6号,整栋建筑由共享际翻新改造,该建筑是上个世纪六七十年代中演集团北京市舞蹈学院排练场地,内部包含一个剧场,本项目是排练场内部一食堂面积300平米。场地空间结构复杂,主要有三个不同的空间组成,有层高较高的框架结构,也有北京传统四合院木结构瓦房,三个空间的标高不一,空间高低变化形成有趣的“探秘”空间。

▲ 改造后
Metalhands咖啡致力于本土精品咖啡探索,已经在北京、上海共有6家店,店面面积虽小但均以高品质咖啡和精细别致的室内环境而被业界所熟知,本项目是Metalhands在北京的第6家店,将做为总店(工厂店)运营,烘焙间专门配置一台烘焙机将烘焙好咖啡豆分发给其他店面,工厂店是Metalhands coffee 承上启下十分重要的节点,是对前几家店的一个总结,也是对自身未来发展的一次全新探索。

▲ 大厅改造前

▲ 小院改造前
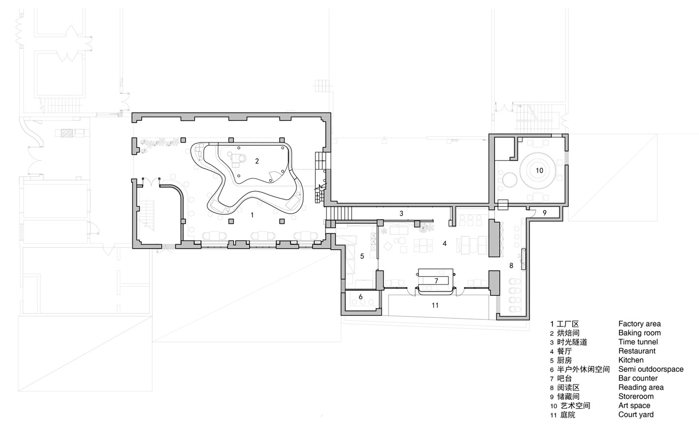
一,空间张力:整体空间是由几个大小不一,建造年代不同的空间串连形成,各空间地面高低起伏变化有趣,有很强的空间塑造潜力。第一个空间是大厅区域,大厅是框架结构,层高4.1米,南侧有三个大的采光窗户,窗台较高采光均好。大厅东侧有个狭长的通道进入到第二个下沉空间,这个空间是传统四合院的主屋,房屋是木结构,斜屋顶瓦房,之前被当做排练场的食堂,该屋正方前有一微小庭院空间,庭院小但采光充足,是整个空间仅有的户外空间。穿过“厨房”区域到“后厨”区,后厨空间层高4.35米,空间可塑性强。


▲ 旧时光区改造前

▲ 旧时光区改造中
二,物质的力、时间的力:大厅旧混凝土模板浇筑的印迹清晰可见,“厨房”区建筑是传统的梁木结构,年久失修亟待被清理,被发现,以重新散发古老魅力。被潮气及蚊虫侵蚀的木头柱、混凝土模板浇筑痕迹、木屋顶、旧瓷砖水泥贴面,清绿色旧窗户、旧水磨石地砖,我们认为所有场地的这些物质之间有很强的联系,彼此之间存在着特殊的力,他们在不同的年代建造,修缮、连接、所用,经过时间的洗练现在呈现出不同的状态及颜色,改造后与新空间巧妙相结合,这些一切由时间做为连接而发生的变化和对话,新设计就是要强化这种连接,强化物质之间因新旧对比而产生的时间感,强调因空间变化而形成人对时间的感知。


▲ 工厂区
如何将不同空间有机串连并形成稳定统一的空间而不显得凌乱,如何打造新型的、有趣的咖啡生活体验社区;技术上如何实现异形曲面混凝土吧台;如何有序引导共享际施工和本项目的交叉施工;如何实现Metal Hands Coffee工厂店“承上启下”的定位,如何提高Metal Hands Coffee工厂店的辨识度。

▲ “工厂区”烘焙间

▲ “工厂区”中岛烘焙间及混凝土曲线吧台

▲ “工厂区”窗户及顶部连通水路的金属管

▲ “工厂区”走廊边界金属帘
大厅改造后为“工厂区”,工厂区是由异形曲面混凝土吧台围绕“透明”烘焙间形成,客人与咖啡师的操作是“看”与“被看”的关系,客人散坐在吧台四周可观看“工厂”运作和咖啡师的日常操作,吧台设计高度低于通常吧台仅800mm,方便顾客与咖啡师近距离交流;大厅保留和修复原混凝土墙面、顶面及柱子;顶部以管为元素设计与吧台同轮廓的水平向金属管装置,其中一根管内接通水路,再由三根竖向管将水供应给吧台;金属银灰色外壳,透明玻璃的烘焙间内含夹层,夹层上方可作为储藏也可以坐咖啡培训空间;烘焙间内有一台烘焙机运转,整个烘焙间从声音、颜色,材料上共同营造咖啡店“当下”的工厂状态。

▲ 时光隧道入口


▲ 时光隧道
“工厂区”与“旧时光区”由“时光隧道”连通,当人进入11米长具有未来感的金属管通道时会对下一空间充满好奇与期待,到达旧时光区后由于空间切换给人强烈的“穿越”之感;


▲ 旧时光区

▲ 阅读区与“旧时光区”之间的洞口

▲ 阅读区入口

▲ 阅读区
“厨房”区域改造后为“旧时光区”,我们对老房子屋顶及窗户更进行更换和翻修,保留原有墙面痕迹及老旧水磨石地面以营造“过去”的时光;我们在主屋窗户中间与户外小院之间又设计了一个副吧台,主要服务于旧时光区和艺术空间,副吧台呈回字形,三分之一在户外,三分之二在室内,吧台两侧开门,夏季人多的时候吧台可做为“中岛”连接室内外,顾客可围绕吧台就坐,咖啡师也可以全角度提供服务。旧时光区家具由咖啡店主理人丁老师从海外淘回来的经典家具,很有年代感,强化了“过去时光”。

▲ 艺术展示空间入口




▲ 艺术展示空间
“后厨”区域改造为集艺术沙龙、展示为一体的艺术空间,顶部圆筒形装置内可不定期邀请艺术家创作,装置、或举办小体量展览等多种形式,这种开放的理念也是Metal Hands咖啡自身对“未来”经营模式的一种探索。

▲ 艺术空间模型

▲ 圆筒装置材质
客人在不同的空间感受与切换、体验不同空间营造的“场”,人们在这个“场”里交流、碰撞产生更多的能量,这个“场”与共享际、共享剧场融合,共同在老旧胡同区域内形成力场,这个力场一定程度激活了胡同日常生活,也是我们对胡同文化生活方式的一次探索实践。

▲ 总平面图

▲ 平面图

▲ 轴测图
项目名称:Metal Hands Coffee 铁手咖啡制造总局
室内面积:300平方米
项目地址:北京,东城区
设计单位:力场(北京)建筑设计 Linkchance Architects
主案设计:安兆学
设计团队:候雪、于文婧、邵琳、张鹤
照明咨询:北京远瞻照明设计有限公司
建造材料:混凝土、穿孔铝板、不锈钢板、竹钢、条纹玻璃、镜面板、水泥艺术漆等
空间摄影:金伟琦、Linkchance Architects
视频制作:刘文彬
工程施工:北京市时代市政工程有限公司
设计撰文:Linkchance Architects
项目业主:Metal h Hands Coffee 铁手咖啡
建造时间:2019年5月-2020年1月
好设计网 www.haoooo.cn 欢迎投稿:infohaoooo@163.com
好设计网 www.haoooo.cn欢迎投稿:infohaoooo@163.com
