加拿大鹅上海办事处,给予空间新的生命
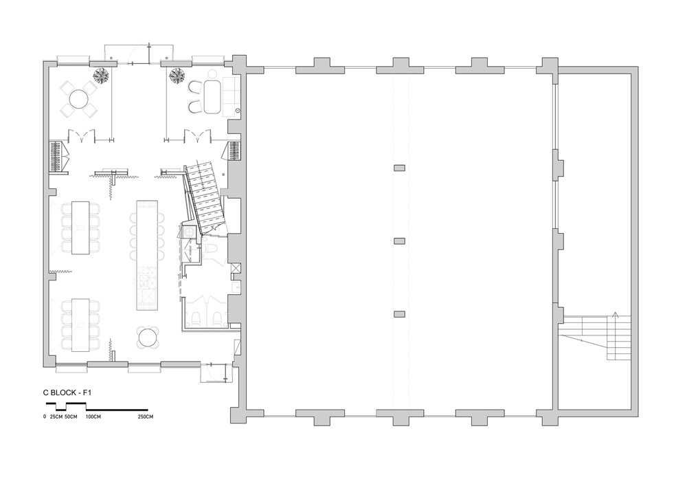
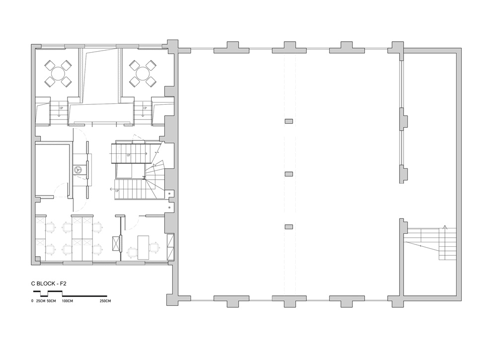
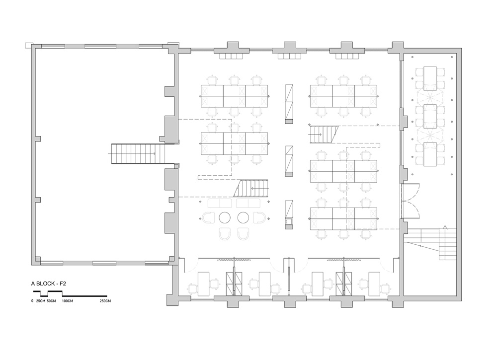
项目位于上海延安中路老上海杂技团的旧址,园区初建于20世纪20-30年代,50年代此处成立了上海人民杂技团(上海杂技团的前身)。此后经过整体改造,园区保留了所有历史性建筑,现在此区域目前已经成为影视戏剧等创造性工作公司的聚集地。此项目是在园区中心的原上海杂技团的排练室,整栋建筑分为左右两栋(A和C)。


两栋建筑虽然连在一起,但在垂直和平行的空间纬度上均没有楼梯和直接的互通关系。在垂直关系上空间相对更为复杂一些。C和A栋均为两层结构,但A栋的二层平台相对于C层的二层平台依然有将近3米的高差,A栋的二层要超过C栋的原始建筑屋顶。目前,加拿大鹅的所在区域为C栋的整栋和A栋的二层加二层的阳台部分。由于A栋建筑的坡屋顶结构,让A栋本身的二层也有增加夹层的可能性。因此整体的办公空间实际上分布在四个不同的高度平台上。

空间改造在尊重已存建筑的基础上希望给予空间新的生命和温暖的现代触感,符合客户整体的品牌形象。


外立面在保留原有建筑立面材料,窗户和涂装的基础上,通过金属板结构勾勒出原本建筑的窗体结构和入口区域。棕色的金属板颜色提取自原有建筑的颜色体系,通过在颜色中加入珠光粉,增加其阳光和灯光下颜色的可变性,跟老建筑外立面的材质形成对比。灯光的处理通过极简的线性灯光体现出老墙面的肌理感,进一步突出材质之间对比。LOGO的双层设计也通过背光的表现方式在勾勒出品牌的LOGO轮廓的同时,照亮原本建筑体上保留的痕迹。


进入C栋,橙色烧结砖形成通高的主体结构构成了空间的主视觉, 形成了空间的第二立面,连接了C栋一层茶歇、会议等功能的同时,并延伸到了C栋的二层平台。并通过新的组合方式致敬空间老砖墙,并提供新的延展性。



进入二层立面内,由相同砖形成的整体视觉感在连接空间不同功能的同时,形成了抽象的烟囱结构形象,连接品牌整体给人的温暖感。茶歇区整体吧台设计为隐藏式,将水槽、垃圾收纳、冰箱、烤箱、会议线槽等功能进行融合,优化整体空间的视觉美感,实现多功能使用情景。






基于对原始建筑室内环境和材质的尊重,室内空间的营造更加强调老材质与新结构和新材质本身的平衡和联系。内部空间将室外金属板的材质延续到室内空间形成空间分割的框架以及楼梯结构,内外连接。门洞形式的结构保证了在空间的每个角度都能同时观察到原始建筑材料和新结构之间的对比。


原始建筑拆除的老木板形成了C栋整体地面和一层至二层的楼梯结构。老木地板通过底层结构的防腐加固,表面的清理打磨和上蜡,赋予了老材料新的使用周期,同时可以唤起人们老的生活记忆当人们听到地板发出的“吱吱”声时。


两个小会议室紧挨主入口,在强化通透的基础上,自然的保证了会议室工作的私密性以及通道的通透性。


通过加固C栋一层主入口的两个会议室顶面,在C栋的二层平台与一层平台之间原本挑空的区域增加了两个小的共享空间。通过伸展状态的楼梯延伸了整体C栋二层平台空间。









A栋区域为CanadaGoose的主体办公区域,空间整体7米的层高被分成上下两个部分,在原始木屋顶结构和白色原始梁体中间,6个新增金属结构框架置于工作位的顶部,提供空间办公照明功能。最大化保留原始结构,减少悬吊装置灯具等结构对原始空间的破坏。新增照明结构的细节是对德国建筑师Mies Van der Rhone的“Christian Column”的致敬。






▼ 平面图



项目类型:办公室
项目面积:480平方米
项目地址:上海
设计公司:ROOMOO
空间摄影: 存在建筑 & Xiao Yun
客户:Canada Goose
好设计网 www.haoooo.cn 欢迎投稿:infohaoooo@163.com
好设计网 www.haoooo.cn欢迎投稿:infohaoooo@163.com
