香港616麦子牛肉火锅酒吧,80年代香港的怀旧味道
616麦子牛肉火锅酒吧专门店位于尖沙咀心脏地带,顾名思义由两个本土品牌616牛肉火锅专门店和麦子啤酒合作开设。以80年代室内设计风格为方向进行餐厅设计,玻璃砖、水磨石和金漆招牌成为不可或缺的代表性元素,它们完美融合技术和手工艺,创造出浓烈的工业风,营造怀旧的香港味道,这成为616麦子的主要特色。

入口处以公牛艺术装置和光晕招牌首先展示目的,踱步至主入口由玻璃砖墙和白色瓷砖墙围合而成的展示墙,两个金色的品牌标识彼此相对,清楚地告知客户店铺由两个不同的品牌集合而成。


运用高低阶梯差设计将酒吧区从整体中稍微区隔开,亮眼的“醉生梦醒”招牌让这里更添享受当下的氛围。等待时坐在水磨石吧台前,享用酿酒师新鲜酿造的季节性手工啤酒,让舒缓的信号传递整个身体。




开放式设计打造主用餐区,利用卡座固定部分座位,再搭配可移动座位,整体达到高效灵活。空间中吊灯和家具的选择均采用质朴的金属、锌水管、木材和皮革定制,近天花处围合一圈玻璃砖,在灯光的照射下发出迷离的光环,融合实际的工业氛围更贴合顾客需求,让用餐成为享受。


用餐区中央放置一面金属网标牌,将金色的公牛部位图摆放其中,昭示店中所供应的不同部分的牛肉,也让顾客深入品味牛肉的各种魅力。同时用灯光照亮整个标牌,让这里成为独特的艺术装置区,吸引过往顾客的视线。食酒趁年华,不负好时光。如果你遇见616麦子牛肉火锅酒吧专门店,那请走进这里,沉浸于旧时的场景记忆中,释放新旧交融的情感和味蕾体验。



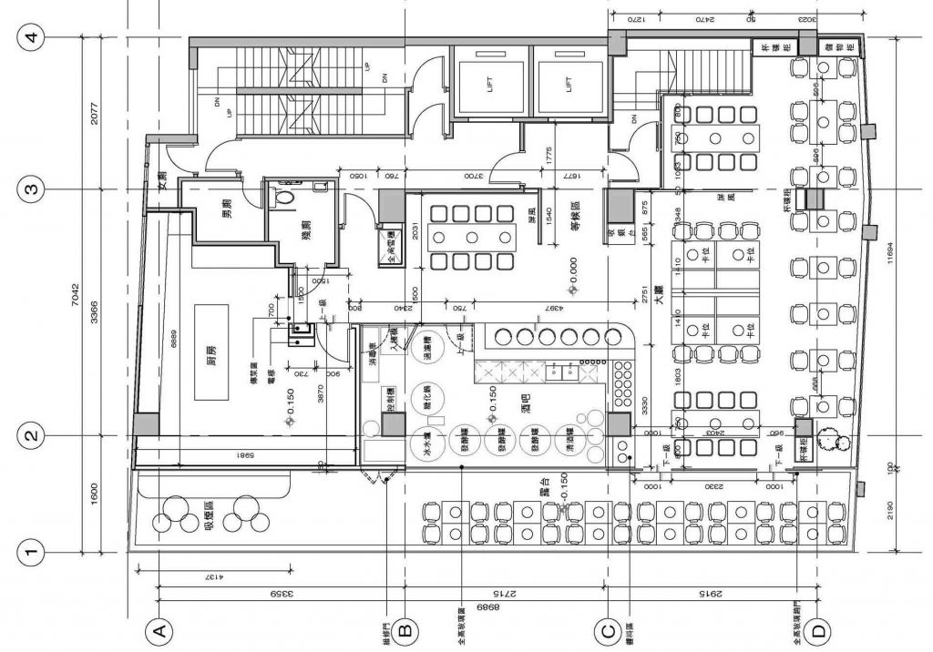
▼ 平面图

项目名称:616麦子牛肉火锅酒吧餐厅
项目类型:餐饮空间
项目面积:380平方米
项目地址:中国香港九龙尖沙咀赫德道4号The Hart 1楼
设计公司:ED Design Limited
主要材料:水泥自流平、耐候钢板、铁艺、钢网、玻璃砖、水磨石、旧木板、锌水管、白色瓷砖、涂料
空间摄影:ED Design Limited
好设计网 www.haoooo.cn 欢迎投稿:infohaoooo@163.com
好设计网 www.haoooo.cn欢迎投稿:infohaoooo@163.com
